這個副教授改造的鄉村土房,用尊重和溫暖擊敗了全球540家專業酒店…
作者:私家庭院 來源:私家庭院
孤獨的時候回望故鄉
那里總有一束溫暖的光
…
	
 
浙江省麗水市松陽縣四都鄉平田村,
一個充滿自然風韻的江南村莊。
霧起時,
水汽氤氳,大地一片朦朧,
風光大好。
	
 
可是這樣的美抵不過現實的殘酷。村里的年輕人不斷外出打工,只留下衰舊的土房和年邁的爹娘,泯然于中國的大部分鄉村,變成了一個只有美景沒有人氣的“空心村”。
	
 
得做些改變了!打工回鄉的平田村村民江斌龍這樣想,請來的建筑設計師何崴也是如此。
	
 
在身為中央美院建筑學院副教授的何崴看來,沒有那么多偉大的情懷,做建筑其實是為了給使用者帶來更好的生活以及更好的經濟回饋。
通過好的設計與經營,把年輕人重新吸引回來,把活力重新賦予這個村莊,這是中國農村目前最需要解決的困境。
所以,在和政府、屋主充分溝通之后,何崴最終決定吧江斌龍提供的房屋改造成一個青年旅社。
	
 
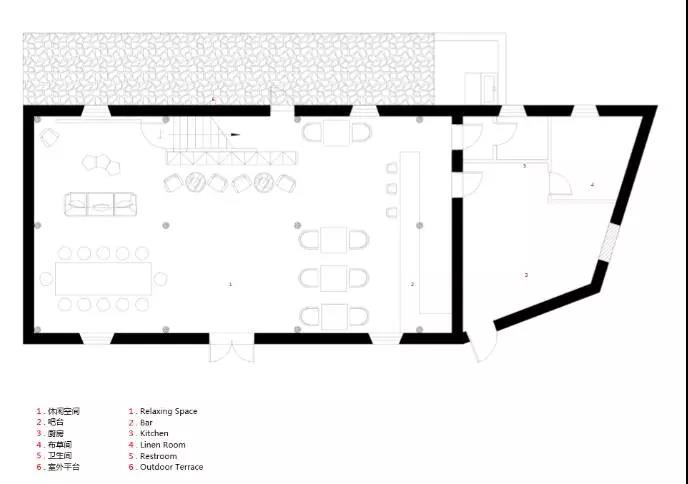
被改造的這棟房屋就是上圖中的這座普通夯土民居,兩層,土木結構,共約270平米。
	
 
一層
	
 
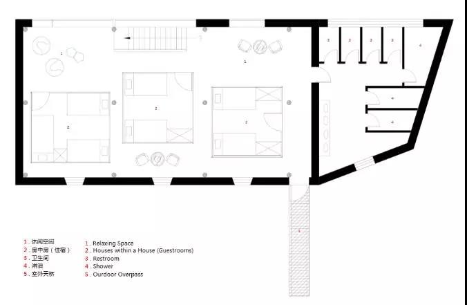
二層
陰暗、空蕩,空氣中仿佛彌漫著腐敗氣味。該如何設計呢?要給老土房裝一顆年輕的心“,何崴如此說道。
	
房屋外部保留了土墻,撤換一些壞掉的木框架。 
	
 
屋頂也開了幾個天窗,陽光從屋頂灑下來,藍天白云也是一種風景。
	
 
一樓打通,作為旅社的大廳和活動場所。房頂的射燈提供充足的照明,吧臺、書架則給顧客提供一定的休閑選擇。
	
 
	
 
一層戶型圖
	
 
二樓則用半透明的陽光板搭建了三個輕質的房中房,每個小房子上下分鋪,可住四人。小房子底部安裝了萬向輪,可以移動和拆卸。將來如果屋主不想經營了,只要把這三個小房子拆除就能恢復到房屋原有的狀態。
	
 
	
 
隨著燈光顏色的變化,整個房間產生不一樣的奇幻色彩。
	
 
	
 
二層戶型圖
	
 
對于很多房友們來說,小房子半透明材質以及墻上的孔洞設計可能難以接受,這畢竟影響到每位顧客的私密性體驗。在何崴看來,之所以這樣設計是基于青年旅社的定位,它對私密性的要求比傳統民宿和旅館要低。
	
 
除此之外,居住在此的年輕人也能夠通過這些孔洞與他人進行交流。就如同二樓屋頂上的天窗一樣,何崴希望通過這些孔洞給年輕人提供了一種看世界的新方式。
	
 
“孔洞的靈感其實來源于外甥女自個兒搭的紙皮房。這個房子很簡單,她會在上面挖很多洞,然后通過這個洞去看外面的世界。在這個青年旅舍里我也希望回到這樣的純真。希望來住的這些年輕人可以通過這些小的空隙看出去,看到外面的世界。我覺得這預示著我們回到了純真年代看待世界的那種關系上。” ——何崴
房屋剖面圖
	
 
盡管引起了一些爭議,屋子還是順順利利地改造完成。因為這是江斌龍爺爺的老宅,所以屋子的名字起得很直白,就叫做“爺爺家青年旅社”。但是細細一想,年老的村民開了一家年輕人居住的青年旅社,有一種莫名的欣喜。
	
 
巴特!何崴設計的“爺爺家青年旅社”還是一舉擊敗全球540個專業酒店,獲得了2016最佳經濟酒店獎,后來還獲得了意大利A’Design Award銀獎。
	
 
	
 
大獎的獲得,讓很多人知道了何崴,也知道了這個有著優美風景的村莊,紛紛慕名來到平田,享受都市生活難以體驗的輕松愜意。
	
 
就像期望的那樣,
年輕的心臟讓老房子在沉寂多時以后
重新蘇醒,煥發新的生機。
小村也因為游客的到來,重新變得熱鬧起來。
	
 
	
怎樣才算的上是好的建筑呢?每個人都會有不同的看法。不過對于村里的老人們來說,已經好久沒有這么熱鬧了……
	
.END.
注:本文轉自私家庭院,感謝小編的悉心編寫。如有版權問題,請及時與我們聯系,我們將第一時間做出處理。

