從建筑的場所體驗到復合與開放的社區生活 — 上海瑞虹新城
作者:天華建筑設計 編輯:建筑學院 來源:建筑學院
內環內高品質社區式商業中心——瑞虹天地二期,作為瑞虹新城實現者之一,天華與Benjamin Wood事務所共同完成了此項目的設計,打造區域文化休閑空間的同時,不斷探索社區式商業新模式。
	
 
	
 
天華主持的瑞虹各地塊設計都以結合居住功能與城市公共空間為目標,努力創造兼具開放性與復合型的新型社區,完成了瑞虹新城從棚戶區到高品質社區的城市轉型。在近十年的時間里,天華慢慢地理解這片城區的再生,以及在它慢慢形成的過程中,城市街道生活的個性是如何被塑造的。在這中間,建筑固然是一個重要的元素,但是生活本身以及生活在這里的人才是最大的魅力所在。
	
 
	
 
瑞虹新城——混合功能開發的開放式社區
瑞虹新城是瑞安集團在上海投資開發的一個舊城改造項目。項目位于虹口老城區一個叫做虹鎮老街的地方,是一處非常擁擠、破敗的棚戶區。作為一家來自香港的發展商,瑞安對待城市的態度頗為謹慎,顯而易見的一個案例是瑞安的著名項目——新天地。
	
 
瑞虹新城總開發面積約為170萬平方米,恰好處于由外灘、北外灘與陸家嘴組成的“黃金三角”核心商圈,其地理位置具有巨大潛力,因此,瑞虹新城是瑞安集團在上海內環范圍內最重要的住區開發項目之一。
瑞虹天地——最大化實施開放式混合功能策略
瑞虹天地是瑞虹新城內55萬方的商業綜合體,是瑞安房地產在上海內環內打造的“第二座新天地”,由太陽宮、月亮灣、星星堂等商業板塊構成,意圖打造“超區域風尚生活圈”。“太陽宮”主要為餐飲主題的大型國際美食商業中心;“月亮灣”為區域文化休閑娛樂中心,為音樂表演等大型活動提供空間;“星星堂”為家庭親子體驗商業區;“商業文化連廊”為國際品牌購物區。
	
 
其中,同為天華設計的瑞虹天地星星堂已于2015年6月對外開業,成為上海首個體驗式親子娛樂街區。
2011年,天華與美國建筑師Benjamin Wood的事務所一起設計了瑞虹天地二期——月亮灣。項目占地面積2.6萬平方米,建筑面積10.3萬平方米。這完全是一個城市級的目的地,業態主要以商業、餐飲及娛樂為主,在地塊的西北設一精品酒店。
	
 
	
 
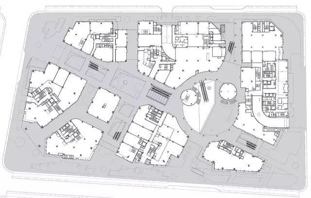
首層平面圖
項目的建筑理念旨在打造綠色休閑的商業空間,人流的主軸線從東北角貫穿至西南角,通過在購物空間中布置樹木景觀,將綠色景觀滲透至各個垂直空間。同時通過北側圓形中心廣場的整合各功能與人流間的關系,人們在豐富的開放空間中穿梭,制造多層次貫穿互望的有趣體驗。
	
 
	
 
	
 
	
 
	
 
細節的全程控制——成就一個公共建筑的關鍵
一個優秀作品從構思至建成,包含創意+執行兩部分,特別是大型復雜的工程項目,需要出色的創意建筑師+技術扎實的執行建筑師來共同完成。對于瑞虹天地這個項目,天華采用“執行建筑師”的合作模式,為瑞安地產提供包括項目設計及管理,施工管理、質保跟蹤的過程總控服務,更值得一提的是,在項目執行以外,天華還充當招商顧問,從運營層面保證項目品質。
	
 
人馬君健身工作室
	
 
英皇UA電影城
在瑞虹天地項目中,共有二十多家專項設計顧問在天華的協調總控下推進工作,在深入的介入下,通過合理的前期配合,保證了項目的實現效果。
	
 
	
 
通透的視覺感受,細節考究的空間體驗
	
 
比如場地中種植大樹,景觀設計需要提前介入,較早配合,以保證結構專業的實現度
	
 
活潑有趣的立面效果
	
 
東立面
	
 
西立面
作為一種社區型商業新模式,瑞虹天地月亮灣將shopping mall和步行街的體驗融為一體,制造親和的業態氛圍。告別乏味的傳統商業,制造優質有趣的空間感,天華試圖營造一種服務瑞虹新城的“小尺度社區商業”的場所體驗,所以細節的把控至關重要。
	
 
瑞虹天地月亮灣_燈光藝術作品《月下扁舟》
月亮灣延續了瑞安“天地系列”低密度、高綠化率的特點,總共8萬平米的商業建筑面積,開放區域及綠化面積占比就達到了40%。為了呈現園林標準的綠化環境,還引進了例如雞爪槭這樣的珍稀樹種。
	
 
	
 
	
 
綠色環保的設計標準也受到美國LEED綠色建筑認證和中國綠色建筑二星的雙重認可。開放式連廊里的木質風扇和噴霧為夏天的室外環境提供舒適性,從細節處制造良好的場所體驗。
	
 
設計細節、細部控制出色,屋頂風機采用遮擋或后退處理,隱藏到視線范圍之外,同時保證周邊高層住宅的景觀需求。
開放式社區——建立社區更新的生態圈
“社區”一詞來源于拉丁語,意為共同的東西與親密的伙伴關系,它應更似城市與社會的縮影。現代主義城市規劃強調功能分區,在促進了城市快速發展的同時,也形成了城市居住、工作、交通、游憩等功能空間的分離。在蔓延擴張的過程中,城市逐漸失去活力,形態相似、功能單一的封閉居住單元鱗次櫛比。以居住為主要功能的社區占用了大量的城市空間卻未能體現更多的城市功能。
	
 
	
 
	
 
開放更像是走向未來的機會——隨著城市發展的加速,功能緊湊復合、資源開放共享的要求也越來越高。而將“社區感”——這種超越住宅的物理性概念而把居民緊密聯系在一起的東西——帶回到街道之中,是我們對目前城市冷漠、社區缺乏活力、居民彼此缺乏人文關懷的一種反思。
	
 
存在各種運營可能的天臺廣場
瑞虹新城的設計也是對開放社區、城市更新的嘗試。在設計中沒有過多保留老的結構和元素,而是從新的生活方式角度引入了和新的生活方式有關的元素,盡可能多地將社區打開,最終打造出了集居住、商業等功能于一體的個性化社區,顯著提高了居住體驗。
項目信息
地址:中國,上海虹口區
總面積:10.3萬平方米
總用地面積:26144平方米
建筑密度:66.8%
容積率:2.43
綠地率:10%
設計時間:2011年-2014年
竣工時間:2015年12月
業主及運營者:上海瑞虹新城有限公司
項目團隊
建筑:宗勁松、吳欣、白小璞、施展、姚海燕、錢雯吉、王飛、楊淑婷、諶濤、陳興、孫儷
結構顧問:李偉興、章靜、謝士華、陳浩迪、劉琛
機電后期招商顧問:覃旭升,董文君,薛琴
要合作單位
建筑合作設計:伍德佳帕塔設計咨詢(上海)有限公司
	 結構設計:奧雅納工程咨詢(上海)有限公司
 機電工程顧問:上海科進咨詢有限公司 
	 景觀設計顧問:WAA International
室內設計:伍德佳帕塔設計咨詢(上海)有限公司 
攝影師:沈忠海
	
 注:文由天華建筑設計投稿授權建筑學院編輯發布,僅供分享不做任何商業用途,版權歸原作者所有。如若有圖文侵犯您權益,請及時與我們聯系,我們將第一時間做出處理。 

