15個大尺度中庭案例! (附剖面圖)
作者: AD中國 ArchDaily 來源:AD中國 ArchDaily
	 
© Tim Van de Velde
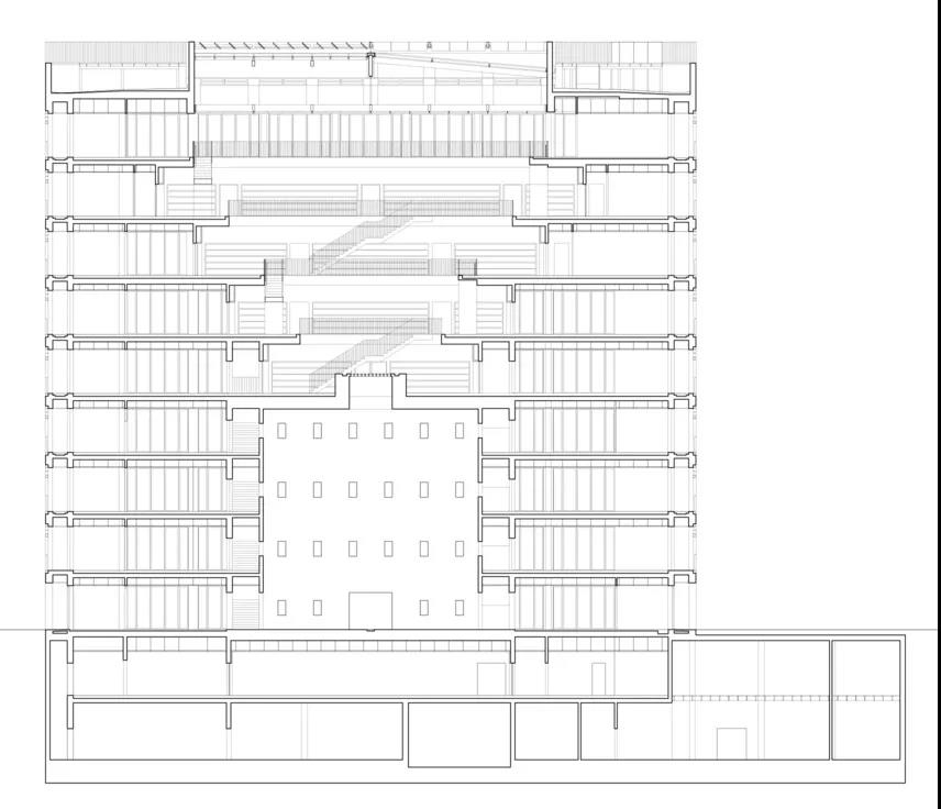
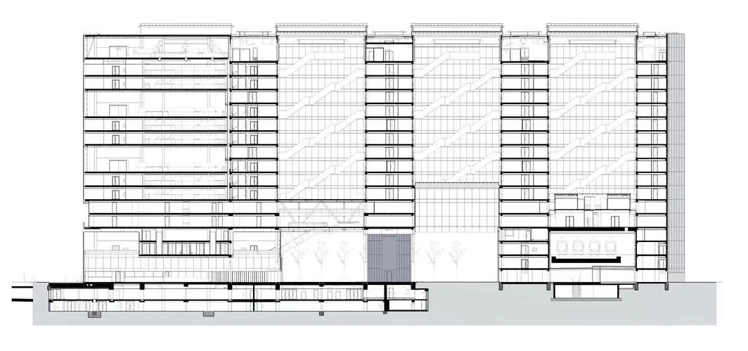
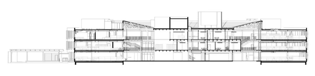
辦公和文化類建筑往往是建筑師夢想中的中庭設計的最佳之選。這些中央空間旨讓使用者偶遇或幫助其對建筑內部空間的定位,寬敞明亮且提供了大量的自由設計空間。 宏偉的尺度,雕塑般的臺階,細致的材料和室內植物等等,使整個空間充滿生機。 為了幫助您理解您的設計理念,下面我們收集了15個著名的中庭及其截面圖。
B30 / KAAN Architecten
	 
© Karin Borghouts
	
圖片來自 KAAN Architecten
荷蘭政府部門大樓 RIJNSTRAAT 8 / Ellen van Loon / OMA
	
© Nick Guttridge
	 
圖片來自 OMA
Macquarie Bank / Clive Wilkinson Architects
	 
© Shannon McGrath
	
Courtesy of Clive Wilkinson Architects
斯圖加特城市圖書館 / Yi Architects
	 
© Stefan Mu?ller
	
Courtesy of Yi Architects
Parque Toreo / Sordo Madaleno Arquitectos
	 
© Rafael Gamo
	
Courtesy of Sordo Madaleno Arquitectos
Rijksmuseum / Cruz y Ortiz Arquitectos
	 
© Pedro Pegenaute
	
© Cruz y Ortiz Arquitectos
聯邦中心南樓1202/ ZGF 設計事務所
	 
© Benjamin Benschneider
	
Courtesy of ZGF Architects
虹橋天地演藝與展覽中心 / 如恩設計研究室
	 
© Dirk Weiblen
	
Courtesy of Neri&Hu Design and Research Office
意大利聯合圣保羅銀行辦公大樓 / 倫佐·皮亞諾建筑工作室
	 
© Enrico Cano
	
Courtesy of Renzo Piano Building Workshop
A?ripa?ev Office / Arhitekt 11
	 
© To?nu Tunnel
	
Courtesy of Arhitekt 11
‘De Petrus’文化中心 / Molenaar&Bol&vanDillen Architects
	 
© Stijn Poelstra
	
Courtesy of Molenaar&Bol&vanDillen Architects
聯合國城 / 3XN
	 
© Adam Mo?rk
	
Courtesy of 3XN
哈佛藝術展覽館的改造和擴建 / Renzo Piano + Payette 建筑事務所
	 
© Michel Denance?
	
Courtesy of Renzo Piano Building Workshop + Payette
加拿大銀行總部建筑更新 / Perkins+Will
	 
© Tim Griffith
	
Courtesy of Perkins+Will
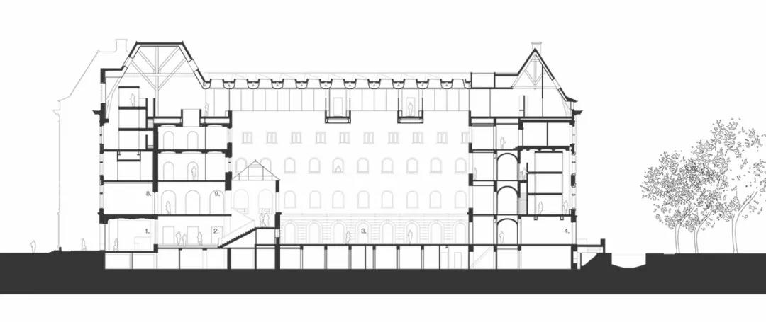
鹿特丹波拉克大廈 / Paul de Ruiter Architects
	 
© Tim Van de Velde
	
Courtesy of Paul de Ruiter Architects
編輯:韓爽 黃馨儀;翻譯:舒岳康
注:本文轉載自 AD中國 ArchDaily ,十分感謝小編的悉心編寫。如若圖文資源侵犯您權益,請及時與我們聯系,我們將第一時間做出處理。

