波蘭綠色生態住宅,在自然中減少人的足跡 / Superhelix Pracownia Projekt
作者:ArchitectureDaily 來源:ArchitectureDaily
© Bartlomiej Drabik
© Bartlomiej Drabik
建筑位于波蘭克拉科夫市郊區一片由10棟獨立住宅組成的居住區內。由于這里地價很高,居住區形成了密集發展的特點。為了保護業主的隱私,建筑隱于其寬大的屋檐下。
© Bartlomiej Drabik
隨著城市的動態發展,越來越多的自然區域被開發用于建設,所以采用生態設計策略是尤為重要的一件事。建筑朝北的屋面采用多肉植物覆蓋,光伏發電板則被置于南面光照充足的地方。
© Bartlomiej Drabik
剖面圖
建筑朝北的綠色屋面傾斜角達到了45度。雖然設計傳統的平頂會更為簡單,但當地的建筑法要求建筑屋面必須是傾斜的。另外屋頂面積雖然顯著超過了建筑的占地面積,采用這樣的設計策略依然是昂貴的。我們就將其視為在攫取大自然后對它的回饋吧。
© Bartlomiej Drabik
建筑的標志性特點是屋面下對角線型膠合板陣列及其邊緣的矩形開口。它們不僅僅暴露于建筑外部,同時也滲入了建筑之內。在兩片屋頂的交接處開設有一系列長窗,它們將主要的光線引入屋內。建筑地面層的開窗的位置很高,以便進行有效通風。
© Bartlomiej Drabik
Superhelix 工作室在設計時特別關注建筑以及使用的材料隨著時間所產生的變化。建筑在立面上選取了紅雪松板材進行覆蓋,這種板材不需要進行額外的氣候或防蟲處理,并且隨著時間的推移,它會逐漸閃現出銀灰色的光澤。綠意盎然的北向屋面也不用進行特殊打理,由于地處背陰并且多肉植物擁有保水能力故而不需要進行澆水,即便是長時間的干旱對它來說也并不是問題。
© Bartlomiej Drabik
© Bartlomiej Drabik
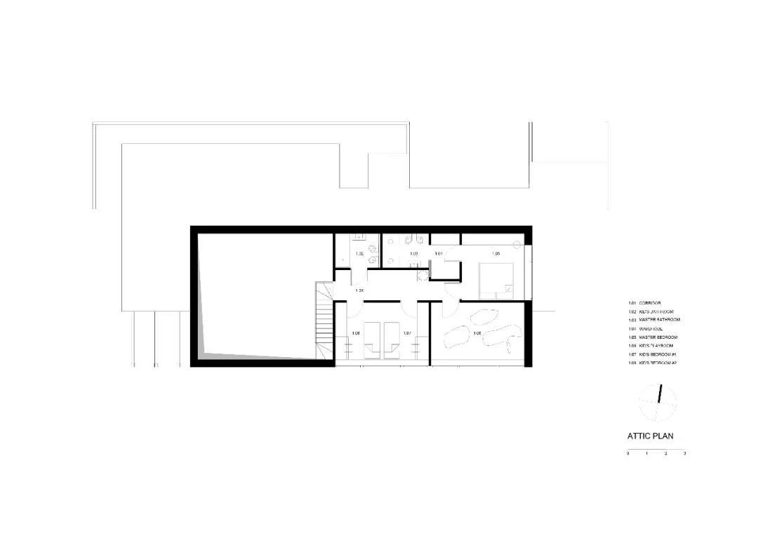
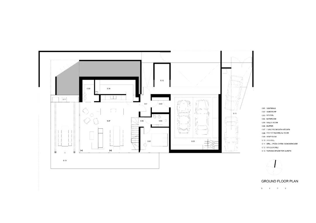
建筑的基址為矩形,高兩層,面積189平方米。由于地處郊區,公共交通建設落后,這里的居民主要使用私家車通勤。這也就是為什么車庫會被設置在建筑底層臨近客廳和廚房的地方。客房、盥洗室以及儲藏室也位于這一層。二層是主臥房、衣帽間和浴室,以及兩間兒童臥室和一間兒童娛樂室,以備將來家庭成員擴張之需。
© Bartlomiej Drabik
© Bartlomiej Drabik
© Bartlomiej Drabik
細部圖
地面平面圖
頂樓平面圖
建筑師: Superhelix Pracownia Projektowa
地址: Maciejkowa Street, Kraków, 波蘭
主創建筑師: Bartlomiej Drabik
建筑面積: 189.0 m2
項目年份: 2018
.END.
注:本文轉載自ArchitectureDaily,版權歸原作者所有。

