杭州富春江畔鄉村酒店 / 中國美術學院風景建筑設計研究總院
作者:ArchitectureDaily 來源:ArchitectureDaily
從湖面看酒店整體 © 施崢(奧觀建筑視覺)
項目位于富春江畔的烏石灘,從梅城古鎮出發,沿著富春江一路北上約6公里。場地為山溪沖積而下形成的河灘地,整體呈三角形,中心匯成一片碧湖,200多畝用地連同地塊外的烏龍山脈,富春江共同構成了一幅絕美的流動畫卷。
局部鳥瞰秋景 © 施崢(奧觀建筑視覺)
酒店區位
這里也是浙江省最美步行綠道的起點。項目要求在這里建設規模約2萬平方米的酒店,以此來帶動當地旅游和鄉村振興,成為杭州三江兩湖黃金旅游線上的一顆明珠。
主樓頂視 © 施崢(奧觀建筑視覺)
道路,建筑與場地邏輯
豐富的自然環境也意味著建設用地的多樣性與復雜性。以溪流、湖面為主軸,周圍的平地、緩坡、陡坡用地伴隨著場地內500多顆的大樹(胸徑20公分以上)。無論置身何處,都能找到其特有的場所感。
局部鳥瞰秋景 © 施崢(奧觀建筑視覺)
我們先在整個用地的平地上設置了一條環形道路,解決酒店的基本交通,然后在坡地上設置支線,支線坡度不超過8%,道路設置盡可能減少土方開挖,同時又能兼顧使用需求,從道路到客房,用小徑和臺階來銜接,到達個別客房可能需要走30米左右野趣十足的步道,也保護了生態環境。
局部鳥瞰秋景 © 施崢(奧觀建筑視覺)
不突兀、不呆板是我們對建筑形態的期望,最終采用了10種以上的客房模塊,以組團為單位,依山就勢,有機的散落在水岸山林,統一的大玻璃,大露臺,將山景,溪景,湖景,江景充分映入,而若隱若現的建筑則融合于山水,形成“酒店中的風景,風景中的酒店”。
山上客房 © 施崢(奧觀建筑視覺)
隱于山林的客房 © 施崢(奧觀建筑視覺)
多樣性的融合
多樣性與復雜性的場地特點,決定了以不變應萬變的理念并不適用,反而促使我們用針對性的方式去對待。
主樓局部 © 施崢(奧觀建筑視覺)
主樓主入口 © 施崢(奧觀建筑視覺)
由于地處深山,大型設備進場非常不便,平地部分采用人工挖孔樁,并采用傳統的鋼筋混凝土建造方式;山地建筑采用獨立基礎,考慮后期材料運輸,上部采用裝配式建造方式,對場地保護起到了積極作用。
主樓藝術展廳外景 © 施崢(奧觀建筑視覺)
主樓局部 © 施崢(奧觀建筑視覺)
建筑風格同樣強調場所感,酒店主樓作為主入口,具有一定的儀式感,體現粉墻黛瓦的地方傳統韻味。臨水客房,則采用茅草屋的親水性,外墻采用仿夯土涂料,與大地協調。山中客房,采用多種色彩的紅雪松木掛板作為外飾面,與山林為伴。木飾面的天然屬性,保持自然界應有的色差,有效避免一眼望去因過于統一而可能產生的與山體的違和感,讓建筑自然的生長在山林里。
主樓局部 © 施崢(奧觀建筑視覺)
主樓主入口 © 施崢(奧觀建筑視覺)
主樓主入口 © 施崢(奧觀建筑視覺)
生態保護與再平衡
在大自然中建設開發,生態保護是永恒的主題。建筑的介入讓整個生態再平衡,而人的介入,讓富春山水走向富春山居。
主樓零點餐廳 © 施崢(奧觀建筑視覺)
山景客房室內 © 施崢(奧觀建筑視覺)
山上客房室內效果 © 施崢(奧觀建筑視覺)
1. 合理設置道路,因地制宜是主旋律,道路順應現狀地形,盡量避免陡坡,還得兼顧各單體建筑,確保人行道結合地形合理設置
主樓旋轉樓梯 © 施崢(奧觀建筑視覺)
躍層客房樓梯 © 施崢(奧觀建筑視覺)
2. 坡地建筑采用吊腳樓做法,做完獨立基礎后,不對場地做其它土方處理,上部建筑用輕鋼現場組裝,大大減少了現場土方工程和濕作業。
主樓弧形室外樓梯 © 施崢(奧觀建筑視覺)
主樓庭院內景 © 施崢(奧觀建筑視覺)
3. 建筑為樹讓路,現場大樹均予保留,有些成為建筑庭院和露臺的一部分,實在困難的,則取消建筑。
主樓庭院內景 © 施崢(奧觀建筑視覺)
主樓里面細節 © 施崢(奧觀建筑視覺)
主樓庭院內景 © 施崢(奧觀建筑視覺)
4. 土方及修路過程中產生的石塊以及現場原有石頭都被重新利用,用于路邊擋墻和鋪地,就地取材,有效利用大大減少了垃圾外運。
山上客房局部 © 施崢(奧觀建筑視覺)
山上客房局部 © 施崢(奧觀建筑視覺)
客房鋼構樓梯細節 © 施崢(奧觀建筑視覺)
5. 微生態濾床源自歐洲,是人工建造的、可控制的和工程化的濕地生態系統,生活污水經過系統處理后,回用于綠化灌溉,道路清洗等用途,形成了生態小循環。
山上客房局部 © 施崢(奧觀建筑視覺)
山上客房局部 © 施崢(奧觀建筑視覺)
茅草屋入口近景 © 施崢(奧觀建筑視覺)
詩意的棲居,美妙的畫卷
通過采取理性的、符合邏輯的手法,重構了場地環境,讓建筑自然的生長,達到人工與天工完美融合。
茅草屋與山水的關系 © 施崢(奧觀建筑視覺)
茅草屋鳥瞰 © 施崢(奧觀建筑視覺)
行到水窮處,坐看云起時。漫步其中,建筑、樹林、江湖,溪流、明月等元素都能在步移景異中輕松構景成畫,而人則在山水中棲居,蛙聲中入眠,鳥鳴中晨醒,體驗大自然,呈現出詩意畫卷中的鄉村度假酒店。
山上客房秋景 © 施崢(奧觀建筑視覺)
主樓秋景 © 施崢(奧觀建筑視覺)
整體鳥瞰 © 施崢(奧觀建筑視覺)
剖面圖
主樓剖面
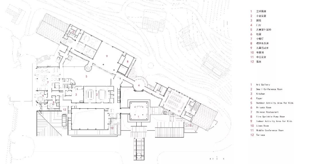
主樓一層平面
主樓二層平面
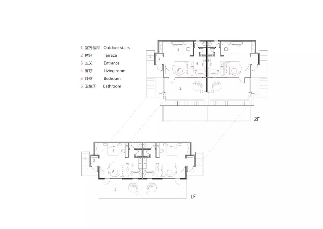
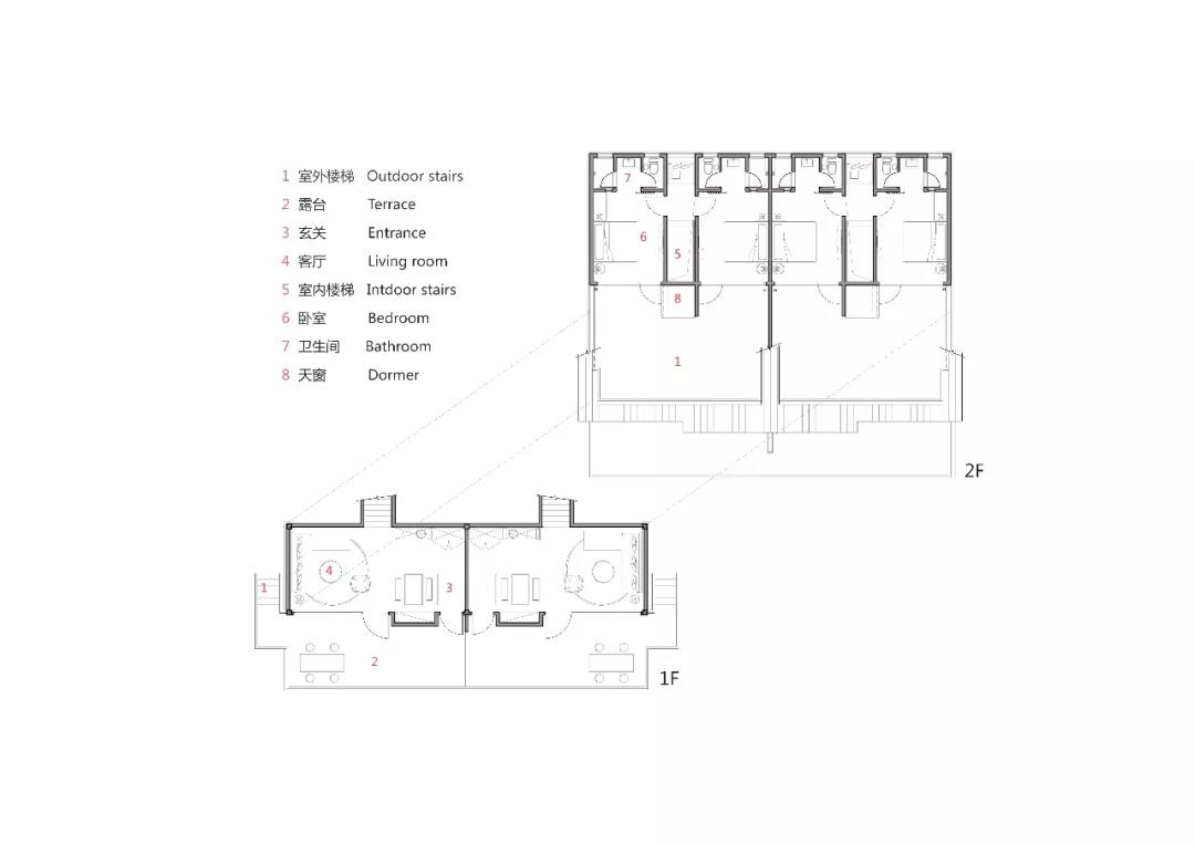
客房平面
客房平面
主樓墻身詳圖
建筑師: 中國美術學院風景建筑設計研究總院
地址: 梅城, 建德, 杭州, 中國
主創建筑師: 陳夏未,柯禮鈞
設計團隊: 金拓,王凱,周建正
項目經理: 虞光潔
建筑面積: 19000.0 平方米
項目年份: 2018
攝影師: 施崢,奧觀建筑視覺
木結構顧問: 郭蘇夷,濟木建筑科技工程有限公司
室內設計: 杭州潘天壽環境藝術設計有限公司
業主: 開元旅業集團
.END.
注:本文轉載自ArchitectureDaily,版權歸原作者所有。

