龍江公路客運北站,黑龍江 / 哈爾濱天宸建筑設計有限公司+唐家駿工作室
作者:gooood谷德設計網 來源:gooood谷德設計網
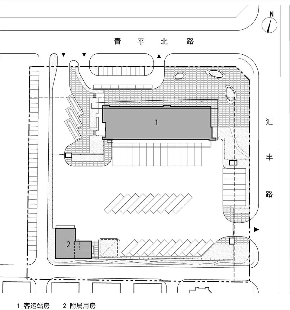
龍江縣公路客運北站位于黑龍江省龍江縣,地處新興發展城區,毗鄰待建主干道,交通便利。客運站總用地2公頃,包括主體站房、附屬用房等建設內容。建筑主體空間布置在一二層,局部三層為設備間,建筑面積2489平方米。本項目2016年設計完成,并于2018年12月竣工驗收。
客運站外觀 ©唐家駿
客運站全景 ©唐家駿
龍江北站是承載公路交通運輸的基礎設施建筑,由于其建筑規模偏小,同時地處東北經濟欠發達的縣城,因此在創作最初呈現了一定的局限性。作為龍江縣少數的公共建筑以及重要的對外窗口,展現出建筑的標識感和時代性是項目設計的重點。
整體建筑造型打破一般公路交通建筑的公共化語言,強化出建筑的地域性和文化性。建筑形體隨著室內公共空間的樓層變化形成高低的互動,同時結合前部雨棚的設置,在體量進行整合和穿插,使雨棚融入整體造型,最終形成具有流動感和方向性的形體特征。雨棚的樹狀支撐和三角形玻璃幕墻豐富了建筑的細節層次,突出了建筑的標識性。
建筑形體根據室內公共空間形成高低變化
雨棚融入整體造型 ©唐家駿
公路客運站的發車空間模式往往呈現一層功能空間布局緊張,二層以上空間相對寬裕甚至浪費的情況。本項目在建筑空間布局上突出設計的復合性和共享性,對傳統的客運空間布局進行相應優化處理,使建筑內的門廳、售票和候車幾大板塊既有專屬空間同時又相互貫通。
整體共享空間貫穿建筑東西并銜接各部分區域,同時通過介入中部功能體量,形成聯系通道,避免售票區和候車區在視線和噪音方面形成干擾。公共空間具有流動性特征,將一部分商業空間布置在曲線形體之中,與共享大廳相互關聯。帶狀共享大廳的空間處理形成豐富的空間變化,同時為未來空間使用提供了可變性的基礎。
入口大廳 ©唐家駿
售票廳 ©唐家駿
候車廳 ©唐家駿
建筑設計團隊在本項目中進行了室內公共空間設計,強調了室內外空間設計的整體性和互動性。建筑外部的三角幕墻表皮成為外立面的特征,也形成了室內空間的主要界面元素。在二層樓板、屋面吊頂的形式處理上強化建筑形體的曲線關系,與外部形體相互一致,同時進行室內外的空間關系互動。
室內天棚與樓板的簡約曲面與復雜的建筑幕墻形成虛實對比,在形體語言和色彩上融合在一起。共享大廳的中部連接區采取了仿木紋鋁板墻體的設置,活躍內部空間色彩并區分兩部分主體功能空間。
純凈色彩的內部空間 ©唐家駿
室內光影變化 ©唐家駿
由于建筑形體的不規則性特征,設計上全部采取了鋼結構處理。H型的鋼梁和鋼柱形成了主體骨骼,鋼結構與復雜的幕墻結構整合設計,相互依托和整體計算。鋼結構結合金屬和玻璃幕墻表皮的包裹,形成了隨著結構變化的完整建筑室內外空間。
建筑模型
H型的鋼梁和鋼柱作為主體結構 ©韋樹祥
樹狀支撐與三角形玻璃幕墻 ©韋樹祥
流光溢彩的玻璃幕墻 ©韋樹祥
車站夜景 ©唐家駿
總平面圖
一層平面圖
二層平面圖
項目名稱:龍江公路客運北站
設計:哈爾濱天宸建筑設計有限公司+唐家駿工作室
項目設計 & 完成年份:2016年4月-2018年12月
主創及設計團隊:唐家駿、張波濤、邸云起
項目地址:黑龍江省龍江縣
建筑面積:2489平方米
攝影版權:唐家駿、韋樹祥
客戶:龍江縣道路運輸管理站
.END.
注:本文轉載自gooood谷德設計網,版權歸原作者。請勿商用。

