C.F. M?ller 新作“挪威醫院 Haraldsplass”,突破固有模式的束縛
作者:AD中國 來源:建日筑聞
© Joergen True
挪威 Haraldsplass 醫院始建于1939年,新病房大樓以公共區域取代了傳統的醫院走廊,為事故和應急部門增加170張病床。 新建筑位于 Ulriken 山腳下,面對 M?llendalselven 河。
© Joergen True
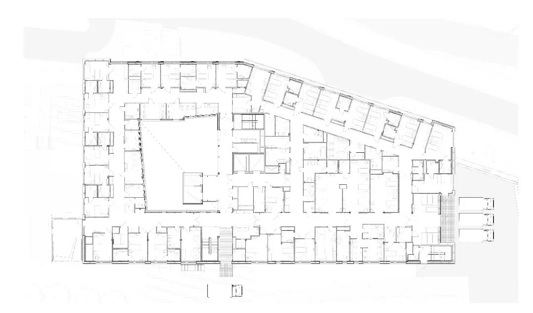
與傳統的醫院建筑不同,這里沒有長長的走廊。病房位于兩個大的有蓋中庭周圍,設置了兩種不同類型的公共區域: 一個是公共到達區,有接待區,咖啡館,商店和座位區,和一個更私人的空間,是能由病人和他們的訪客使用。中庭確保日光引入建筑。
分析圖
© Joergen True
© Joergen True
由于新建筑沿著 M?llendalselven河,有一個有角度的立面,所有患者都能欣賞到山谷或城市的景觀。該項目十分環保,其中一個原因是立面相對于建筑總面積較小。
© Joergen True
© Joergen True
© Joergen True
© Joergen True
項目圖紙
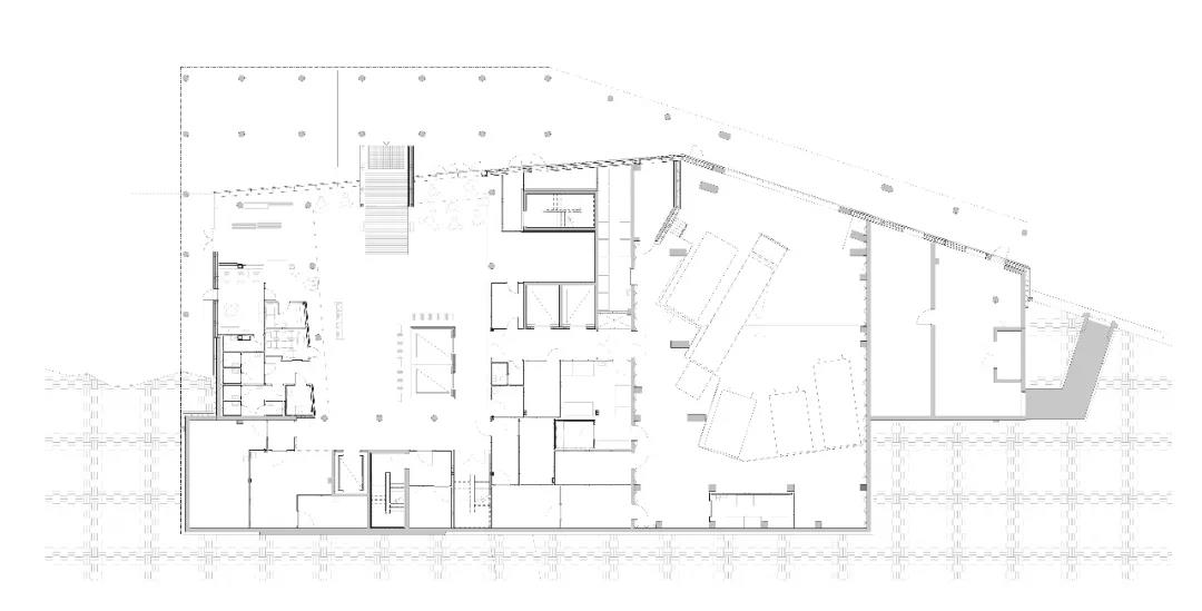
平面圖
平面圖
剖面圖
剖面圖
立面圖
立面圖
項目信息
建筑師: C.F. M?ller Architects
地址: 比爾根,挪威
建筑面積: 14200.0 m2
項目年份: 2018
攝影師: Joergen True
景觀設計: Asplan Viak
合作者: LAB Entrepren?r AS, Ramb?ll Norge, Sweco Norge, Asplan VIAK
獎項: 1st prize in architectural competition, 2012
.END.
注:本文轉載自建日筑聞,版權歸原作者所有。

