臺灣實踐大學B棟建筑改造 / 沈庭增建筑師事務所
作者:建日筑聞 來源:建日筑聞
© Studio Millspace
© Studio Millspace
實踐大學B棟建筑為1975年完工之美工大樓,為受現代主義建筑思潮影響,有清晰的梁柱系統、水平開窗及挑空穿透的大廳之三層樓建筑體,經歷幾次外墻改造及內部裝修后,逐漸削弱建筑體中介于內部與外部的連結作用,且失去原有的水平性。
© Studio Millspace
建筑南側校園空間在這十多年來成為有活力的開放草坪,B棟建筑背面卻仍維持背向與封閉狀態,阻斷了人與草原及三棵大樹連結的可能性。
© Studio Millspace
2017年,校方欲將此棟建筑改造為一處供國際師生交流、教學及辦公的空間。
© Studio Millspace
© Studio Millspace
新功能要求建筑具有開放與包容的性格。在將功能植入既有建筑時,設計打開建筑的背面與側面之墻面,建立一個連續的內外關系。接著,拓展一樓建筑邊界,于外部置入混凝土平臺、黑色鋼構檐帶及金屬網幕,人的活動得以依附此而延伸展開,從建筑內部連接到外面的草坪和大樹,形成一處劇場舞臺般的水平場域。
© Studio Millspace
© Studio Millspace
建筑內部持續創造空間的延伸感,置入適度的墻與天花,構成壓縮的廊道出入口和開放的活動與辦公空間。墻體與天花等新元素依順既有建筑清晰的梁柱構架與水平開窗設置,藉新與舊元素形成的接力或對話關系,重建空間秩序,窗景與光景抵達內部。
© Studio Millspace
© Studio Millspace
B棟建筑的內外關系重整后,內部空間、樹、草原、建筑體共同構成屬于校園的場所,在內部、邊界與角落,注入新的生活。
© Studio Millspace
© Studio Millspace
© Studio Millspace
© Studio Millspace
項目圖紙
項目位置
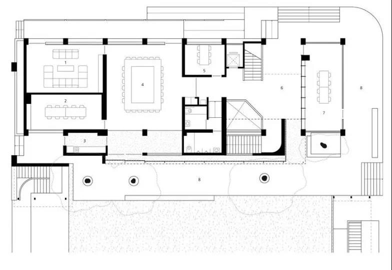
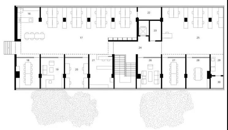
改造前1層平面
改造前2層平面圖
改造前3層平面圖
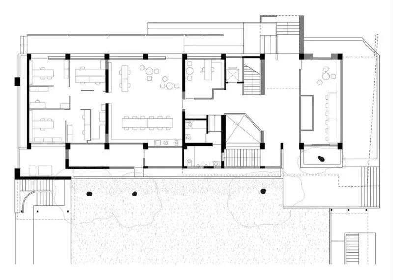
改造后1層平面圖
改造后2層平面圖
改造后3層平面圖
項目信息
建筑師:沈庭增建筑師事務所
地址:臺北,臺灣
主創建筑師:沈庭增
建筑面積:440.0 平方米
項目年份:2018
攝影師:Studio Millspace、沈庭增建筑師事務所
參與者:Wu Pei-Ling, Lu Wei-Ying, Wang Yung-Hsuan
顧問:泛德工程顧問股份有限公司,天信室內裝修工程有限公司,澤榮工程有限公司
客戶:實踐大學
.END.
注:本文轉載自建日筑聞,版權歸原作者所有。

