與城市和景觀對話 - 蒼南體育中心,浙江
作者:gooood谷德設計網 來源:gooood谷德設計網
1
工程概況
區位
蒼南縣位于中國浙江省的最南端,1981年6月建縣,隸屬于浙江溫州,為該市下轄六縣之一。因地處玉蒼山之南,取縣名為蒼南。東與東南瀕臨東海,西南毗連福建省福鼎市,西鄰泰順縣,北與平陽、文成兩縣接壤。蒼南城區距溫州市區81公里,距離省會杭州432公里。
體育中心遠景
規模
本工程總建筑面積30023.88㎡,其中多功能體育館,乙級,建筑面積17179.58㎡,看臺可容納約3870人;游泳館,丙級,建筑面積11164.30㎡,看臺可容納約820人,采用單側看臺,館內包含一個標準泳池和一個訓練池;室外大平臺的架空層建筑面積1680㎡。
體育中心鳥瞰圖,體育中心由一個多功能體育館和一個游泳館組成
2
規劃設計
基地環境
項目選址位于位居蒼南縣新城的中軸線上,毗鄰城市公園,與縣行政中心隔湖對望。位置顯要,是縣城的門戶和絕佳的形象展示面。基地呈不規則四邊形,其中西側邊界為s型曲線,緊鄰縣城中心湖公園,視野開闊,景觀極佳。建筑如何跟景觀對話就成為了本次設計重要的研究課題。
體育中心區位圖,基地呈不規則四邊形,西側邊界為s型曲線,緊鄰縣城中心湖公園
規劃布局
本工程建設用地總面積47431㎡,凈用地面積44871㎡,基地西側毗鄰城市公園和廣場,對于游園的市民而言,體育中心是最重要的形象面;玉蒼路位于基地南側,是城市主干道,也是重要的沿街界面。
體育中心鳥瞰圖,采用“八”字形構圖,八字開口一側朝向中心公園
我們將體育館和游泳館設計為 “八”字形構圖,由北向南,展開于場地上,八字開口一側朝向中心公園,呼應曲線界面,另一側朝向規劃道路,兩館以架空平臺聯系,形成橫貫東西的視覺通廊。南側體育館長軸成東西向,使玉蒼路一側擁有良好的沿街界面。規劃布局良好地回應了周邊環境。
體育中心鳥瞰圖,南側體育館長軸成東西向,使玉蒼路一側擁有良好的沿街界面
3
造型立意
杜鵑花又稱為映山紅,是蒼南縣花。蒼南體育中心包括綜合體育館和游泳館兩部分,形如一大一小兩朵盛開的白色杜鵑花,每朵花各自分為十個花瓣,寓意十全十美。建筑外墻面材料為白色鋁板,溫潤如玉,潔白無暇,每兩個花瓣之間的間隙均為玻璃幕墻,與花瓣形成虛實對比,強化了花朵的意向。
體育中心外觀局部,在兩個建筑體量之間設置室外大平臺
體育中心外觀局部,兩館以架空平臺聯系,形成橫貫東西的視覺通廊
每片花瓣兩側的“花肋”,仿佛花瓣上的經絡,勾勒出花瓣優美的曲線,使花朵看起來更具立體感。在兩朵“杜鵑”的腰部環繞著的室外大平臺,像一條玉帶聯系著兩個場館,大平臺的設計結合了建筑造型一并考慮,被包裹在建筑結構構架中,營造出一個半室外的“灰空間”,實現兩館之間的無雨通行,做到了建筑外部空間與建筑結構的完美結合。
體育中心外觀局部,外墻面材料為白色鋁板,每兩組白色鋁板之間設玻璃幕墻
體育中心外觀局部,首層設有人行景觀步道
4
結構設計
本工程兩座場館主體均采用型鋼桁架結構結合鋼筋混凝土混凝土框架結構,屋面采用的是曲面網殼結構。花瓣邊緣的“花肋”與落地的直柱、斜柱、斜撐梁共同構成一品“R字形”桁架,每兩品桁架組成一個穩定的巨構柱,再結合型鋼橫梁將十個R型柱拉結成為一個完整的外圍護結構體系。內部結構為8mx8m的鋼筋混凝土框架結構體系,在外維護結構交界處均以混凝土澆筑為一體,增強了結構整體剛度。
體育中心外觀局部,鋁板“花瓣”邊緣的“花肋”與落地的直柱、斜柱、斜撐梁共同構成一品“R字形”桁架
巨大的“花瓣”構件懸挑距離達到了六米左右,產生了向外側的傾覆力矩,同時場館的穹頂也產生了向外的水平推力,這樣一來,兩股合力形成了更加不利的傾覆力,但能夠提供穩定作用的垂直柱子又只有一圈,加劇了整體結構的不穩定性。設計中為了解決傾覆問題,一方面增加了垂直大柱子的自重,一方面在屋頂上增加了連續的環梁和樓板,起到“緊箍”的作用,抵消傾覆力。
“R字形”桁架細節
5
室內空間
體育館空間
體育館比賽大廳凈高約20m,陽光通過頂部“花蕊”中的透明部分,可照射進室內,再經過反光板的漫反射,使室內獲得充分的自然光。籃球訓練場位于主看臺下,最低一側凈高可滿足7m凈高要求。
體育館空間,充滿自然光線
體育館空間的籃球訓練場
游泳館空間
游泳館比賽廳凈高約15m,頂部和兩側均可以獲得自然采光,具有開敞明亮的比賽環境。訓練池位于輔助用房一側,保證比賽池一側界面完整,使觀眾區具有良好的觀賽體驗。
游泳館空間,屋面采用曲面網殼結構
游泳館空間,頂部和兩側均可以獲得自然采光
6
功能
體育建筑有間歇性使用的特點,比賽時使用人數多,而平時卻存在大量閑置空間,而這些閑置的空間也會產生很多的維護費用,這是現代的體育建筑發展的一個非常重要的弊端。賽后問題也對體育建筑的可持續性提出了挑戰。兩館首層主要設計為體育用品商店、健身房等可供出租的體育相關產業用房,便于市民平時參與體育鍛煉,形成“以商養體”的運營模式。
游泳館入口大廳
7
交通流線
車行流線
兩個橢圓形的場館成八字形布置,開口正對基地西側的春暉路,八字形開口環抱前廣場,作為主要的人行廣場,在廣場兩側是次要車型入口,作為消防與應急所用。
東面廣場是次要的人行廣場,沿其兩側是主要車行入口,連接基地東北角和東南角的停車場,東北角、西南角的停車場主要服務觀眾,東南角的停車場主要服務運動員和工作人員,做到流線分離,人車分流。環繞建筑主體是硬質廣場,可兼做應急車道和消防車道所用。
體育中心夜景,首層設有停車場空間
步行流線
本案設計中引入“立體交通”概念,兩個場館的觀眾人流均從場館內部直接疏散到大平臺上,再由坡道和大臺階定向疏散到東西廣場,再由東西廣場分別疏散到東西兩條城市道路,最終疏散到玉蒼路,這種人流的疏散方式避免了大量人流在短時間內對主干道的沖擊。大平臺的定向疏散也避免了大量無序人流對建筑底部商業的沖擊。
體育中心夜景,項目引入“立體交通”概念
8
結語
在項目設計過程中,我們也留下了一些遺憾。比如為了將雙館明確定義為24m以下的多層建筑而增設的屋頂檐口的天溝,破壞了建筑花瓣造型的流暢感。再比如“花瓣”內部的傾斜空間,原本考慮作為特色的室內空間,但由于結構不利因素沒有實現,削弱了空間的獨特性。
這些遺憾也激勵著我們在以后的設計創作中,發揚精益求精的“大國工匠”精神,將建筑的每一處空間品質,每個細部處理都考慮得更加周到合理,打造優質的精品工程。
項目圖紙
總平面圖
體育館二層平面
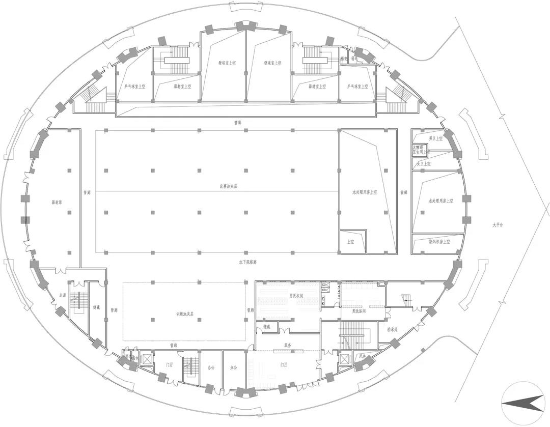
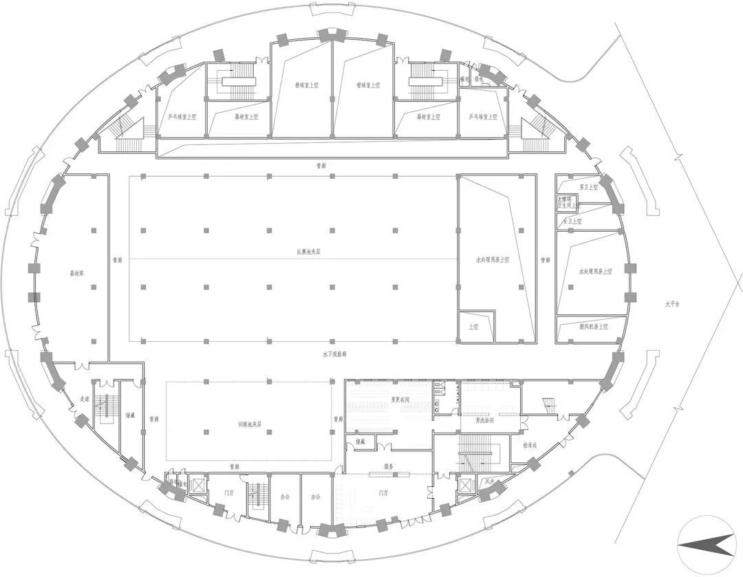
游泳館二層平面
游泳館三層平面
通用屋面
游泳館剖面圖
體育館剖面圖
通用墻身大樣
項目名稱:蒼南體育中心
設計方:中南建筑設計院(海南華筑國際工程設計咨詢管理公司)
設計年份:2010-2011
完成年份:2015
主創:黎鷹
設計團隊:高潔,楊光,毋安晨煒等
項目地址:浙江蒼南
基地面積:44871㎡
建筑面積:30023.88㎡
結構形式:鋼筋混凝土、鋼混合結構
攝影版權:丁爍
客戶:蒼南縣體育局
.END.
注:本文轉載自gooood 谷德設計網,版權歸原作者所有。

