華盛頓大學生命科學樓 / Perkins+Will
作者:建日筑聞 來源:建日筑聞
© Kevin Scott
© Kevin Scott
華盛頓大學西雅圖校區最近迎來了一座為生命科學系服務的新教學樓,這是該校面向新一代科研、教學與公共拓展活動而創建的國際一流建筑。這座由Perkins+Will設計完成的建筑含有1858平方米的溫室,建筑形象極富創新力與可持續性,建成后迅速成為生物學院的門戶擔當與核心亮點。華盛頓大學生物學院是全校本科生主修人數最多的專業,培養的STEM人才數量超過全州任何其他的學科計劃。
© Kevin Scott
設計注重以團隊為導向的溝通協作,辦公室、實驗室和共用空間均緊鄰設置。設計還提供了開放靈活的模塊化科研教學空間,目的是響應需要新方法和新工具來攻克的新科研課題。為增加偶遇的可能,室內的空中樓梯配有超大平臺,室外庭院配有層疊樓梯與回收木料制成的座椅,屋面露臺與咖啡廳相鄰,還設有休息座椅。
© Kevin Scott
© Kevin Scott
Perkins+Will資深助理董事和項目建筑師 Devin Kleiner表示:“生物學運用整合化方式讓人們來了解自然界。深受這種理念的啟發,設計將多種自然元素與創新永續的設計特征相結合,并通過自然元素構建視覺焦點。”
© Kevin Scott
© Kevin Scott
設計最獨特的元素之一是電梯核心筒,它是由約60米高的花旗松經過量身加工的板材覆面而成的。設計著意效仿樹木在森林里的天然狀態,建筑一層的寬大樹樁隨著樓層的上升而逐漸變細變窄。作為覆面原材料的九根樹木都來自于奧林匹克半島,是由利奧波德·弗里曼林業公司捐贈的,意在響應《拯救塔波溪》一書中談及的斯科特與蘇珊·弗里曼夫婦發起的流域修復治理行動。
© Kevin Scott
© Kevin Scott
這座建筑以獲得LEED金級認證作為綠色目標,極具創意的可持續設計方案是設計團隊與華盛頓大學太陽能應用計劃(UW Solar)的學生群體共同合作的結晶,學生們協助項目分析節能特征、申請補貼及匯報演示等。建成后的生命科學樓率先運用創新太陽能技術,在室外安裝了同類首批豎向玻璃肋板太陽能光伏裝置,預計由此生成的電能足以滿足1150平方米以上辦公場所的全年照明需求。其他可持續特征包括為自然通風制冷提供可開啟窗、冷梁空調、利用水回收系統進行溫室灌溉、輻射地板及屋頂太陽能板等。學生和訪客既能了解到建筑內部開展的科研活動,還能通過一層的觸摸顯示屏實時了解建筑本身消耗水電能源的情況。
BIPV Fins Illustrative Design
這座建筑以獲得LEED金級認證作為綠色目標,極具創意的可持續設計方案是設計團隊與華盛頓大學太陽能應用計劃(UW Solar)的學生群體共同合作的結晶,學生們協助項目分析節能特征、申請補貼及匯報演示等。建成后的生命科學樓率先運用創新太陽能技術,在室外安裝了同類首批豎向玻璃肋板太陽能光伏裝置,預計由此生成的電能足以滿足1150平方米以上辦公場所的全年照明需求。其他可持續特征包括為自然通風制冷提供可開啟窗、冷梁空調、利用水回收系統進行溫室灌溉、輻射地板及屋頂太陽能板等。學生和訪客既能了解到建筑內部開展的科研活動,還能通過一層的觸摸顯示屏實時了解建筑本身消耗水電能源的情況。
© Kevin Scott
© Kevin Scott
© Kevin Scott
© Kevin Scott
項目圖紙
功能分區圖
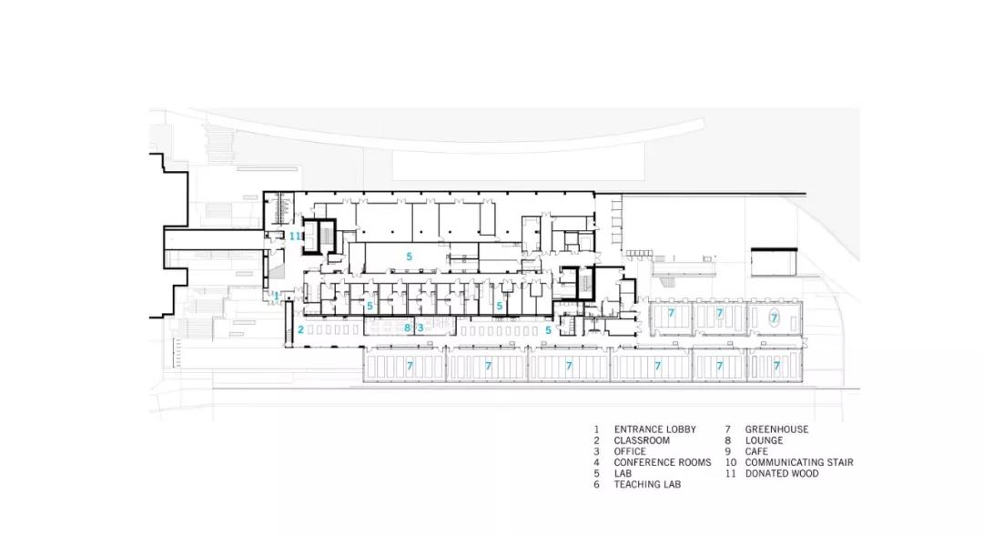
地下室平面圖
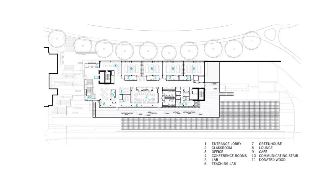
首層平面圖
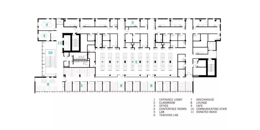
二層平面圖
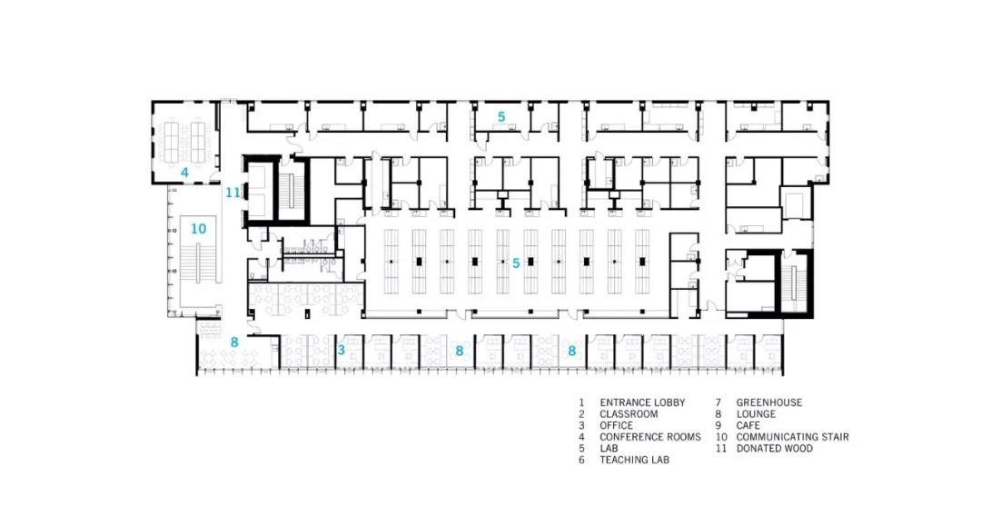
五層平面圖
剖面圖
示意圖
循環示意圖
剖透視圖
草圖
示意圖
項目信息
建筑師:Perkins+Will
地址:斯蒂芬斯西街3745號,西雅圖,華盛頓州,美國
建筑面積:19230.0 平方米
項目年份:2018
.END.
注:本文轉載自建日筑聞,版權歸原作者所有。

