零能耗 - 新加坡國立大學設計與環境學院新樓
作者:gooood谷德設計網 來源:gooood谷德設計網
新加坡國立大學建筑與設計學院的院系建筑,除了滿足使用者的功能需求外,還致力于展示學院的教學抱負。這一理念在一些建筑中非常明顯,如采用了工業化生產邏輯的德紹(Dessau)包豪斯建筑;哈佛GSD的跨學科合作模式的開放工作室;或者AA Georgian Terrace學院內擁有條形立柱和前梁的聚集空間。
學院建筑外觀 ©Rory Gardiner
建筑位于東南亞熱帶地區 ©Rory Gardiner
溫暖燈光中的建筑 ©Rory Gardiner
SDE(設計與環境學院)意圖將設計完工的建筑作為應對熱帶變化氣候的教學工具。建筑師的目的是設計一個零能耗建筑,換句話說,建筑產生的能源與內部消耗的能源數量一致。
建筑作為應對熱帶氣候的教學工具,實現了零能耗 ©Rory Gardiner
建筑南側立面 ©Rory Gardiner
第二個目的是將建筑作為一個現實中的實驗室,用來學習、測試各種技術和應對嚴酷熱帶氣候的建筑措施。
出挑屋檐下的景觀 ©Rory Gardiner
進入室內的過渡空間 ©Rory Gardiner
松散的空間布局方便空氣流通 ©Rory Gardiner
車道入口 ©Rory Gardiner
室外樓梯入口 ©Rory Gardiner
東西兩側立面采用遮陽板 ©Rory Gardiner
建筑師的設計重新驗證了東南亞本土熱帶建筑的基本原理,建筑師發現馬來西亞房屋具有巨大的出挑屋頂、松散的房間布局引導交叉通風、采用平臺將建筑抬離地面等特征。
因此,建筑師的回應策略是采用巨大的出挑屋頂為內部房間遮陽,同時在大面積區域內安裝1225個光伏電池用來發電。
屋頂使用1225塊光伏電池板 ©Rory Gardiner
建筑采用出挑屋頂作為遮陽設施 ©Rory Gardiner
開放的社交廣場和貫穿不同工作室、教室的交通系統創造偶遇機會和促進社交互動。隨著學習和工作越來越具有協作性,社交就會自然而然發生,這些空間與學校四個主要學習空間相得益彰。
貫穿不同工作室、教室的交通系統 ©Rory Gardiner
交通空間創造偶遇機會和促進社交互動 ©Rory Gardiner
可以用做公共空間的論壇空間 ©Rory Gardiner
第一個學習空間是大面積連續的開放工作室空間,設計目的是促進學生之間的合作和對他人的工作的好奇心。第二個空間更具思考性,研究人員和研究生使用的一系列小房間環繞著景觀空間,第三個空間是中央展示區,它向下延伸到社交廣場,在通向建筑和設計工作室的不同路徑上都能夠看到這里,使得設計對話成為學習的核心活動。
開放工作室和教室空間 ©Rory Gardiner
第四個空間位于東、西兩側幕墻的后方,用于樣品和模型制作。波紋穿孔鋁板緩和了東部和西部的強烈陽光,同時也具有可拆卸性,允許學生和研究人員測試建筑本身的各種立面系統。
波紋穿孔鋁板的可拆卸性允許學生和研究人員測試建筑本身的各種立面系統 ©Rory Gardiner
光影效果 ©Rory Gardiner
零能耗建筑一個關鍵性和技術性的轉變是利用最少能量降低建筑溫度,這一模式通過復合冷卻系統與自然通風實現。復合冷卻系統采用了預冷空氣系統(與傳統的交流冷卻系統相比能耗更低)和吊扇。建筑通透、開放、舒適,同時耗能很低。
總體而言,該項目是熱帶建筑設計原理的驗證實例,融合了熱帶地區的節能新技術與思考。
細節 ©Rory Gardiner
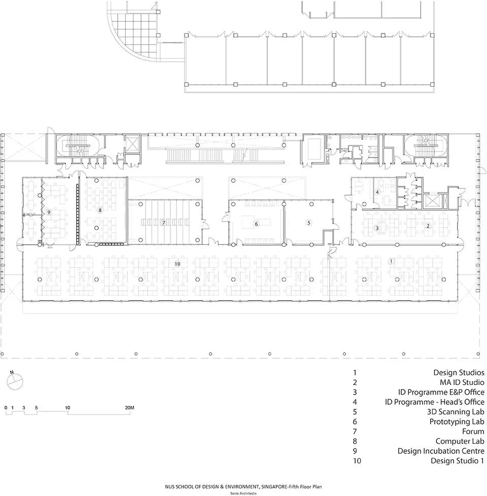
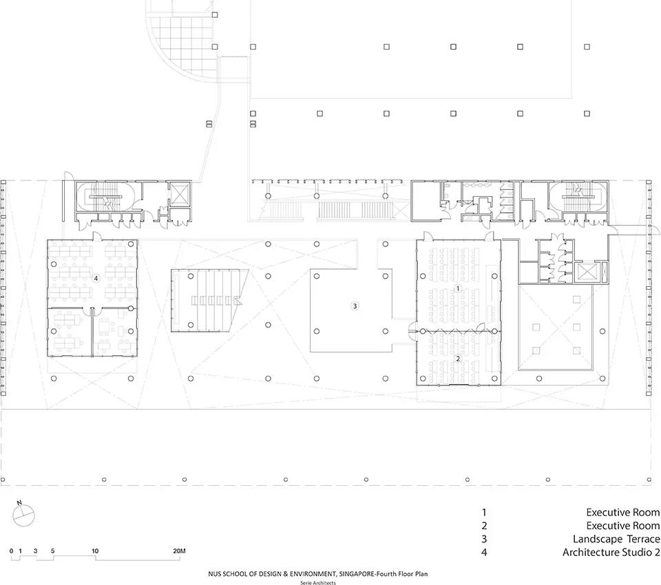
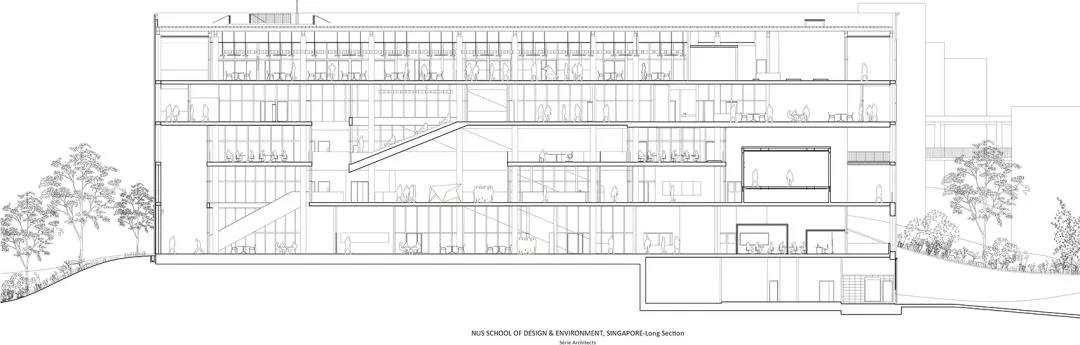
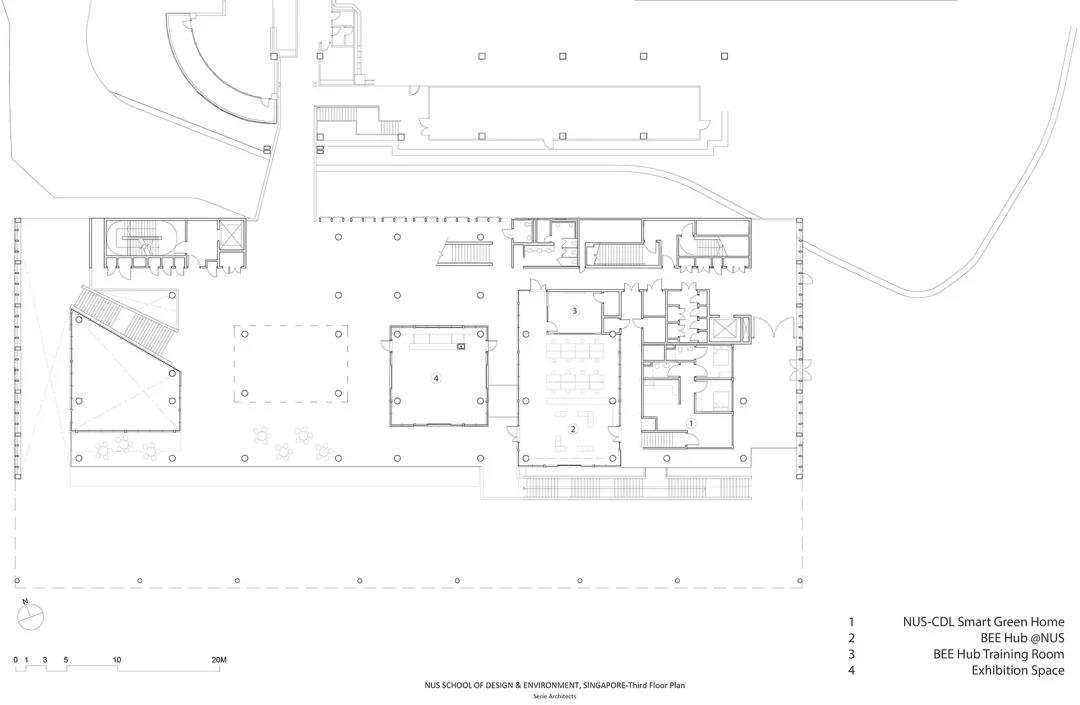
項目圖紙
二層平面
三層平面
四層平面
五層平面
六層平面
剖面
.END.
注:本文轉載自gooood谷德設計網,版權歸原作者所有。

