巴洛克碰撞現代,多利亞?潘菲利美術館改造
作者:建日筑聞 來源:建日筑聞
© Giorgio De Vecchi - Gerda Studio
© Giorgio De Vecchi - Gerda Studio
我們今天所知道的多利亞·潘菲利美術館是至少歷經四個世紀的五次不同的建設階段的結果。經過一系列的建設發展過程,這個復雜的建筑群最終成為一個神性的城市街區。基地上的建設開始于1505年到1507年,沿著 Via Lata(現在是Via del Corso),從紅衣主教 Fazio Santorio 的講壇開始,在 bramat 風格庭院附近建造。這也就形成了整個建筑群的第一個核心。這個門廊,之后就成為了美術館,它仍然大部分保持著當時 Bramanta 為 Palazzo Riario 設計的風格。因為這個原因,后人大多錯誤地將其歸為后者。
© Giorgio De Vecchi - Gerda Studio
© Giorgio De Vecchi - Gerda Studio
這座宮殿在16世紀是Della Rovere家族所擁有的。之后在1601年由紅衣主教Pietro Aldobrandini購得,顯然一直持續到1647年的第二次建設階段深受其影響。他將宮殿的擴建工程委托給羅馬學院(Collegio Romano),并加建了兩翼與Pietro Moraldi設計的Giardino dei Melangoli形成圍合的空間。這些加建本身并無特別之處,但是為接下來眾多建筑師的加改建提供了基礎,包括Antonio del Grande, Valvassori, Ameli 以及AndreaBusiri Vici。
© Giorgio De Vecchi - Gerda Studio
在1644年,GiovanBattista Pamphilj成為教皇英諾森十世(Pope Innocent X),他的家族與Aldobrandini家族相交甚密,因此就給這座房子帶來了巨大的財富。英諾森(Innocent)的著名肖像畫是由Diego Velázquez為其繪制的,至今仍收藏在這個美術館。英諾森交給Antoniodel Grande一個任務,讓他把異質性的加建轉變成一個有機的合理的結構。這是通過在羅馬學院設計的廣場中插入一個紀念性的門廳來實現的,它通過一個巨大的樓梯將Santorio庭院與新建成的公寓連接起來。
© Giorgio De Vecchi - Gerda Studio
當時的宮殿已經有了較大的規模,并且具備能容納羅馬的巴洛克藝術最重要藏品的能力。AndreaBusiri Vici在19世紀掌管著這座建筑,是最后一階段加建的設計者。沿著Via della Gatta的建筑的側廳就是當時加建的。然后城市街區就以同樣的方式完成了。這種操作形式影響著之后的建筑師們:給一個沒有過總體規劃的復雜建筑提供一個有機的限定的形式。
© Giorgio De Vecchi - Gerda Studio
© Giorgio De Vecchi - Gerda Studio
在18-19世紀之間,PalazzoDoria Pamphil的西翼被加建到出租公寓的建筑體量之上,至今這仍是它的主要功能。這個項目的意圖是:在宮殿的巨大公共空間之間建立一個清晰而有意義的空間序列,比如通向公寓的寬敞樓梯以及內部空間。這是通過創造一個迎接客人的拱形空間來實現的,同時提供柔和的漫射光。
© Giorgio De Vecchi - Gerda Studio
© Giorgio De Vecchi - Gerda Studio
宮殿的巴洛克風格表現和這個項目之間的關系僅僅是空間上的,因為加建是相當輕巧的,幾乎沒有任何風格或瑣碎的意義。由抽象的白色表面和柔和的漫射燈光組合而成的懸掛式背景,為也只的收藏品和畫作提供了一個無聲的背景。通過使用反射拱頂的鏡子,使觀者改變了對砌體承重墻的感知,進一步清晰地表達了空間。這就沿著采光井向規則的空間中引入了一種張力。
© Giorgio De Vecchi - Gerda Studio
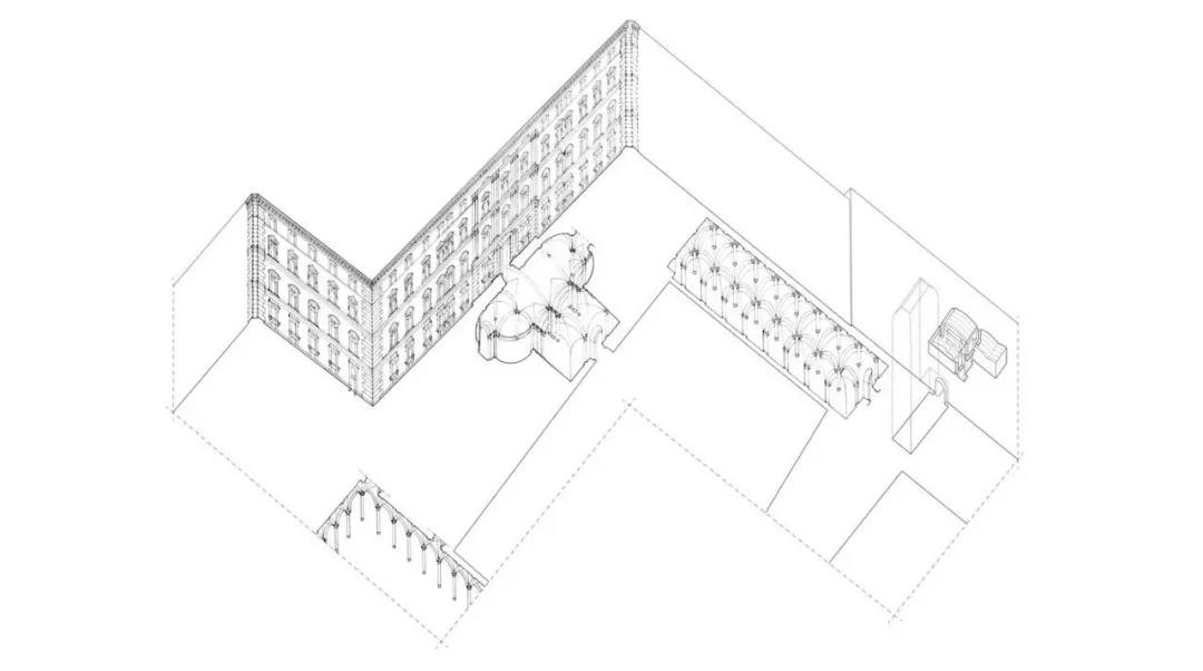
項目圖紙
平面圖
軸測圖
軸測圖
分析圖
模型
項目信息
建筑師:SUPERVOID
地址:羅馬,意大利
主創建筑師:Benjamin Gallegos Gabilondo, Marco Provinciali
建筑面積:190.0 平方米
項目年份:2017
攝影師:Giorgio De Vecchi - Gerda Studio
.END.
注:本文轉載自建日筑聞,版權歸原作者所有。

