境工作室新作‘三亞鳳凰國際機場東擴停車樓’,短工期內的交通整合
作者:建日筑聞 來源:建日筑聞
西立面 ©張超
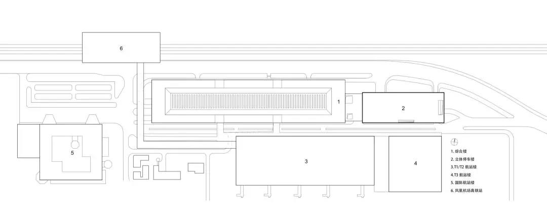
項目用地位于機場片區場地最東端,西側為新建綜合樓,北側鄰鳳凰路,南側鄰機場內部路,并與T3航站樓隔路相望。機場現狀不僅停車位數量緊張,由于原車輛流線單一,下落客空間不足,道路經常擁堵,對新建的綜合體及停車樓需求迫切。
西北人視 ©張超
交通 | 綜合考慮機場未來客運量、現行規范要求及停車效率,停車樓規劃為6層體量。將建筑體量抬升,底層架空,二層與綜合樓接駁,釋放出首層場地,對出租車、巴士、社會車輛、后勤車輛等不同功能車流進行組織和疏導;在南側退讓機場路,對車道邊長度進行擴容,滿足下落客界面需求,有效緩解交通擁堵問題。
東南軸測圖
西北人視 ©張超
策略 | 停車樓從開始施工到土建封頂僅用時四個月,并在兩個月后正式投入使用。工期與造價的限制,促成了停車樓的整體設計策略:不做地下室,立面與結構整合,建筑與景觀整合。
立面******圖
場地土質主要為粗砂及砂質黏土,有較好的承載能力,可作為天然地基。建筑樓層全部位于地上,結構選用獨立柱下基礎,減免了地下室的開挖。對樓板邊緣進行加厚,結合邊梁形成花池,形成建筑立面。對花池進行排列,形成虛實穿插的表皮和錯落有致的垂直綠化,使樓體本身成為其他樓棟的對景。
西立面局部 ©張超
項目選用成熟的建造工藝,在較低的造價下達較好的建成效果。建筑內部為裸露的混凝土,外部為涂料涂刷。由于停車樓在綜合樓之后施工,施工團隊已磨合出一定的技術熟練度,使現澆混凝土能達到一定的表面平整度,經由簡單的涂刷,即能展現較好的立面效果。
停車樓看向綜合樓 ©麥田
氣候 | 上下兩層花池,抵擋日曬的同時保持良好的空氣流通,帶來涼爽的遮陰空間;充裕的覆土深度搭配簡易灌溉系統,即可滿足植物的日常的圍護需求,為單調的停車空間帶來持續的美化。將自然引入到建筑中,形成適合三亞熱帶海洋性氣候的半室外功能空間。
局部剖切軸測圖
項目圖紙
總平面圖
立面圖
節點剖面圖
項目信息
建筑師: 境工作室
地址: 中國、海南省、三亞鳳凰國際機場
項目年份: 2017
建筑面積: 44906 平方米
主創建筑師: 胡錚
設計團隊:楊杰清、夏云龍、張鑫
攝影師: 張超
業主:海南三亞鳳凰國際機場有限公司
合作設計:CCDI筑地城市空間設計中心
.END.
注:本文轉載自建日筑聞,版權歸原作者所有。

