鄉愁設計 – 低成本回遷社區生態景觀營造,北京
作者:gooood谷德設計網 來源:gooood谷德設計網
項目背景
大規模的城市建設已蔓延到城鄉結合地區,原住居民的居住環境和生活方式均發生改變,世代相連的空間記憶遭到沖擊和破壞。
項目地處北京西南五環外的長辛店老鎮,豐臺河西區北宮山腳下,屬于淺山區地貌的“河西生態發展區”。該區域自然優勢顯著,歷史悠久,文化底蘊深厚。近年來,隨著城市化進程加快,當地人民的生活方式發生改變。
舊時自然安靜的村落、愉悅愜意的鄉村生活已不復存在,取而代之的是鋼筋水泥林立、歷史文脈缺失、鄰里關系斷裂、基礎設施落后、安全隱患突出等現狀,該項目的建設正是在這種背景下開展的。
項目概覽
項目地處北京西南五環外的長辛店老鎮,豐臺河西區北宮山腳下,屬于淺山區地貌的“河西生態發展區”。該區域自然優勢顯著,歷史悠久,文化底蘊深厚。
近年來,隨著城市化進程加快,當地人民的生活方式發生改變,舊時自然安靜的村落、愉悅愜意的鄉村生活已不復存在,取而代之的是鋼筋水泥林立、歷史文脈缺失、鄰里關系斷裂、基礎設施落后、安全隱患突出等現狀,該項目的建設正是在這種背景下開展的。
區位分析
設計師提出5L理念來延續并提升場地內的人文及自然優勢,它們分別是:低維護(Low maintenance),低成本(Low cost),當地文化(Local culture), 就地取材(Local material),和場地記憶(Local memory)。
通過這5L理念,該項目一方面希望能作為一個有力媒介,巧妙的將人與自然和人與人的關系再度緊密編織在一起,另一方面成為當地生態海綿設計的先行者。
設計旨在延續并提升場地內的人文及自然優勢
本地植物和材料降低了建造和維護成本
研究先行
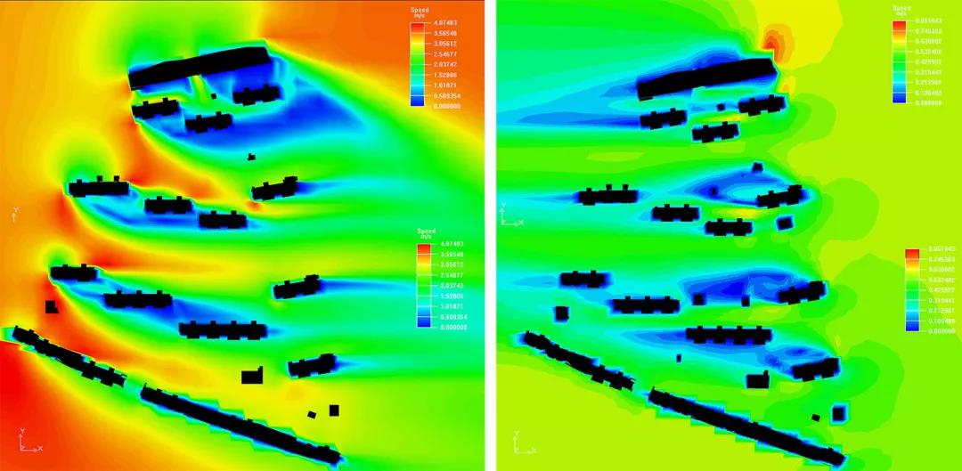
為了更加科學地提高場地利用率及其布局的合理性,設計師在對其風環境、光環境進行分析的基礎上,結合當地氣候特點和場地條件,優化景觀功能布局。
社區以板式為主,采用板塔結合的布局模式,有利于夏季通風以及冬季形成較為宜人的靜風小環境。但南面建筑總面寬較大,加之地形南高北低,對從東南方向吹來的涼風有一定程度的遮擋。
冬季(左)和夏季風向
冬季(左)和夏季風速
景觀設計采用淺丘布置方式,既有利于在冬季形成相對溫暖小環境,又有利于夏季在東西向風口偏高處納涼。
涼廊和水池景觀
竹屏帶來虛實相間的空間體驗
設計師通過對場地內光照情況的分析,選擇適宜的區域設置鄰里交往空間、兒童活動空間、體育健身空間等,以滿足不同人群在不同季節對光照的需求。
涼廊下的公共活動空間
鄉土理念
“外師造化,中得心源,山川渾厚,草木華滋”——設計師運用現代景觀設計手法,力圖營造鄉土意境,創造復合共生的“新山境”。以望山、依山、居山、樂山為設計主線貫穿全園,喚起居民對自然的向往、對場地的追憶、對聚居的渴望,喚回丟失已久的一抹鄉愁。
依山——尊重地形,由北而南,依山布置;
聚落——打造淺山聚落,構建不同尺度的竹廊,喚起場地記憶、重構鄰里空間;
取景——設置不同“取景框”,將外圍山景收于園內;
賞境——散點布局,駐足賞景,觀山聽水。
設計思路
駐足賞景
不同尺度的竹廊,喚起場地記憶
場地記憶
古廟——在場地范圍內,有一處古廟遺址。古廟在宗教心理、社會關系、村落起源、村落的景觀格局等方面均體現出與人的密切關系。設計時對其進行保護及修繕,并在其周邊設計綠化緩沖區。
古樹——場地內原有的古樹得到了良好保護,其余原生樹木基本保留或移栽成功。每逢秋季,大棗樹的樹上便結滿了果實,成為居住區里特別的景觀,承載著回遷居民對自然生活滿滿回憶。
雨水花園
基于北京地區夏季暴雨且常年地下水補給不足的情況,設計師利用低影響開發理念,將海綿城市的理念融入社區景觀中,打造了北京最大的社區雨水花園。
設計師利用雨水花園、下凹式綠地、生物滯留帶、植被淺溝等方式減緩地表雨水下滲速度、控制徑流污染、降低雨洪發生概率,實現可持續水循環,并利用雨水營造濕地花園、溪流疊水等景觀。
雨水花園設計示意
該項目以關注低成本社區景觀的可持續發展為出發點,同時,重構早已破裂的人地關系,喚醒人們對自然、對生活的美好回憶與向往,以環境景觀為媒體拉近人與人的距離,喚起那美好的鄉愁。
場地原貌
項目信息
項目名稱:鄉愁設計——低成本回遷社區生態景觀營造
設計方:中國建筑設計研究院有限公司
公司網站:http://www.cadri.cn/cn
設計年份:2013年-2015年
竣工年份:2016年
主創及設計團隊
主創:關午軍
團隊:李秋晨、朱燕輝、管婕婭、李和謙、常琳、戴敏、張宛嵐、楊賀明、申韜、劉宇婷
項目地址:北京市豐臺區長辛店鎮辛莊村東北部
建筑面積:15公頃
客戶:北京中長和源置業有限公司
.END.
注:本文轉載自gooood谷德設計網,版權歸原作者所有。

