町屋的新生 - MOGANA酒店,日本京都
作者:gooood谷德設計網 來源:gooood谷德設計網
在京都的舊城常常可以看到那種又深又窄的住所,它們被稱為“鰻魚之床”(Unagi no Nedoko)。這種房子通常具有形式對稱的室內外空間,并通過縱向的中庭來提供線性的連接(對于“虛空”的意識和設計在東方的哲學中有著重要意義)。
酒店外觀
建筑后退于街道,在自身和城市環境之間形成了一個花園空間。入口序列的設計受到了傳統町屋的狹長走廊的啟發。町屋傳統的柵格立面被轉譯為一個高科技的長廊,以充滿現代感的光影和音樂迎接著剛剛到達酒店的客人。
酒店內部充滿現代感的長廊
一層和二層空間有著截然不同的體驗。首先是與前方花園相連的迎賓室,這是一個水平的空間,客人們可在此辦理入住,同時感受日式庭院的美景:花園中的山茶花、箭竹與產自熊野市的黑色板巖共同構成優美和諧的畫面。
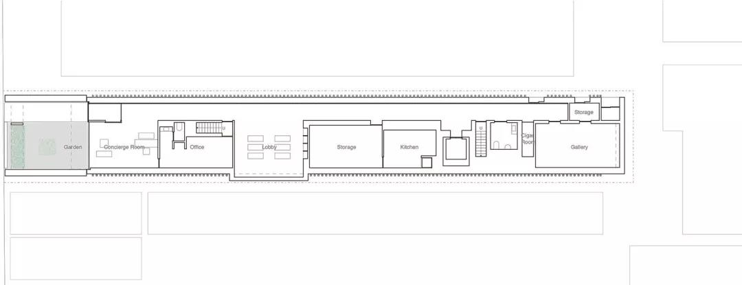
首層平面圖
迎賓室,客人可在此欣賞日式庭院的美景
在辦理入住之后,客人將穿過柵格墻圍合的走廊,然后進入大廳兼圖書室,屏幕上展示著日本的四季景色,帶來沉浸式的體驗。
大廳的屏幕上展示著日本的四季景色
町屋中通常設有名為“坪庭”(Tsuboniwa)的小型庭院,它能夠為狹長的空間帶來適宜的采光和氣候。該項目對這一充滿智慧的方法進行了重新詮釋和運用。
“坪庭”被設計為一個縱向的、充滿綠植的空間
傳統的花園一般受限于水平樓層,但在該方案中,“坪庭”被設計為一個縱向的、充滿綠植的空間,為每間客房帶來清新的空氣和自然光照。6至8層設有酒店最豪華的“Ozashiki”客房,每個房間均直接朝向坪庭綠地,并擁有定制的裝飾物,墻壁、地板和天花板選用了不同的材料,為客人營造出獨一無二的專屬氛圍。
從酒店客房望向綠意盎然的坪庭
坪庭的地面以巖石鋪設,煙霧繚繞在其間,形成一個富有日本特色的微氣候環境。在冬夏之間,霧氣不斷發生變化,與夜晚的照明共同營造出迷人的氛圍。
坪庭在夜晚呈現出迷人的氛圍
設計師期望通過這些努力來加深客人們對京都文化的認知,通過歷史與未來感并存的體驗去真正地感受和了解日本。
浴室
空間細部
項目圖紙
軸測圖
首層平面圖
2層平面圖
客房層平面圖
西立面和南立面圖
北立面和東立面
.END.
注:本文轉載自gooood谷德設計網,版權歸原作者所有。

