旅游小鎮新標桿,商住綜合樓Sandis
作者:建日筑聞 來源:建日筑聞
© Renè Riller
© Renè Riller
新商住綜合樓“ Sandis ”位于 Sand in Taufers 市最近的村鎮中心邊緣地帶。南邊坐落著被稱為“ Postbauten ”的郵政大樓。這些涌現于世紀之交的建筑群直到上世紀七十年代一直都是當地的旅游產業的中心,自此之后就被閑置。兩座新建筑就位于它們后方。緊鄰場地北部邊緣的兩座建筑略轉角度面向彼此,沿東南面的 Otthental street 在空間上劃分出了北部公共綠地。
© Renè Riller
© Renè Riller
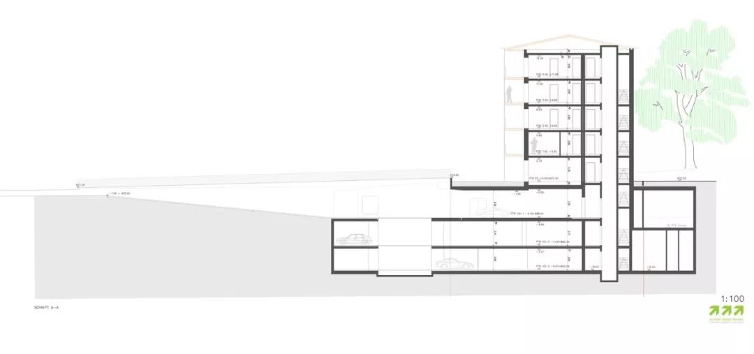
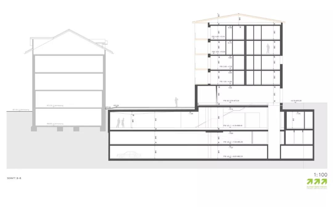
建筑高度五層接近于周邊建筑群,體量上參考塑造 Sand 鎮中心的大型建筑。在與國家建筑文化景觀咨詢委員會、古跡保護單位和空間規劃部門的代表進行商討后,我們選擇將建筑總體量在地面以上分成兩個體塊,并形成一層和其上四層相對的高差。
© Renè Riller
© Renè Riller
目標:
我們的目標是在 Sand in Taufers 市中心建造一座商住綜合樓。建筑西側的一層和負一層是五間大小不同的商用樓,入口位于建筑北面。建筑一層和面向村鎮中心的地上部分包含34套大小不同的公寓,設有兩間樓梯井及一間殘障人士專用電梯。豎向交通系統同樣貫穿負二層和負三層的停車場和地下室。商店所需的停車位在負二層同樣有提供。
© Renè Riller
© Renè Riller
建造方式:
這座新建筑被設計為與周邊大型建筑類似的“大塊體”建筑。立面擁有兩種不同表情。東北和西立面被設計為擁有不同尺寸窗洞圖案的“石膏硬立面”。根據房間類型形成的三種窗組合出不規則的立面節奏。反之,南立面則是“柔軟”的,石膏立面上凹入或突出了玻璃和木質的涼廊。
© Renè Rille
© Renè Rille
© Renè Rille
項目圖紙
平面圖
平面圖
剖面圖
剖面圖
模型
項目信息
建筑師:EM2、Stefan Hitthaler
地址:Via Ottenthal 2/C, 39032 Campo Tures BZ, 意大利
建筑面積:1500.0 平方米
項目年份:2015
攝影師:Renè Riller
.END.
注:本文轉載自建日筑聞,版權歸原作者所有。

