為倉庫賦予新的秩序和透明感 - 交通物資倉庫改造,上海
作者:gooood谷德設計網 來源:gooood谷德設計網
項目位于上海市區,緊貼輕軌,高架線路的弧線限定出了地塊的南部邊界。整個地塊都暴露在周期明確的鐵軌聲中。地塊北界也是一道弧線,圍墻外就是公園,園內大樹繁茂。從上面看,整個園區呈梭形,東邊是唯一的入口。
弧形軌道和公園之間的場地
一期改造完成之后的4號樓和5號樓
場地北側公園中的大樹
園區總體及一期改造的4號樓與5號樓模型
地塊中分布著不同時期多種類型的建筑,有辦公樓也有倉庫,體量與結構類型差異很大。場地內部缺乏秩序,一直被當做一個大停車場,供周邊的辦公區使用。現狀的外部場地和建筑都沒有被有效的利用,業主希望我們重新規劃整個園區,并改造每個建筑。由于工程復雜,需要分三期進行,第一期的任務就是將4號樓和5號樓改造成辦公樓,業主想把自己的辦公從離鐵路最近的1號樓遷移至其中。
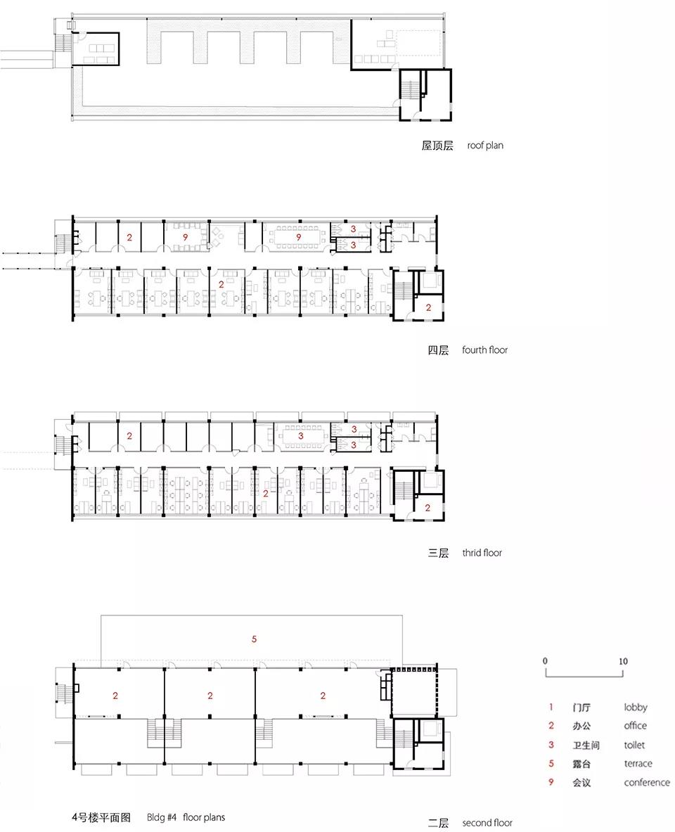
4號樓和5號樓是混凝土預制框架結構,雖然從立面看起來都有五層樓那么高,但實際上4號樓是三層建筑,5號樓只有兩層。業主原打算直接在里面加上隔斷,形成一間間小辦公室,但這意味著有些辦公室有6米的層高,卻只有3米的面寬。我們建議做插層,把兩個庫房都變成了四層建筑。這帶來了一些結構上的挑戰,有很多問題需要解決。
改造前的4號樓與5號樓
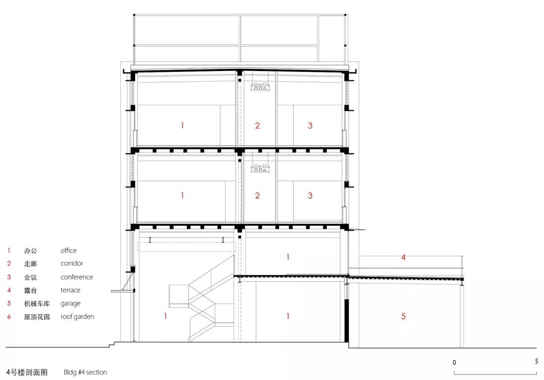
4號樓原為三層,底層層高7米,上面兩層分別是4.5米,我們將底層變成了躍層,對外出租,上面兩層隔成獨立辦公室。為了讓內廊明亮,走廊兩側的隔斷用了壓花玻璃,同時,所有隔墻在2.2米高度以上都用透明玻璃,使每個房間能感受到更多的空間。我們希望暴露原有的廠房結構,不做吊頂,設備只能露明,所以一開始就要控制所有管線的排布及穿過玻璃的方式。
基于相關規定,設計任務書對每間辦公室面積和位置都有明確要求,這使得辦公室隔墻與原有的建筑結構無法對應。所以在立面上,我們保留了原來的橫條窗,并用了深褐色的窗框,讓錯位的豎向分隔能消隱在橫向條窗的檐口下。窗過梁以上的實墻全部替換為玻璃磚,讓室內明亮起來,從立面上也能看到原有結構的秩序。原來的結構偏弱,我們做了局部加固,包括加粗柱子和增加斜撐。
保持上部連續的4號樓辦公單元
4號樓辦公單元,窗過梁以上的實墻全部替換為玻璃磚,讓室內明亮起來
自然光照亮的4號樓辦公室走廊
5號樓原為兩層,底層層高9.9米,第二層層高5.7米。我們將底層分割成5.3米和4.6米兩層,供租賃使用。二層東邊的6跨,在局部做了插層,下層層高2.3米,用作資料檔案庫,上面用作辦公室。西邊4跨保持原來的層高,作為一個完整的大空間,供會議和活動使用。為了達到任務書規定的獨立小間辦公的面積要求,插層的樓板做了出挑,立面上呈現為一個個突出的盒子。站在插層高度,離原來的大梁很近,為了減輕大梁的壓抑感,我們把內廊向上延伸,并把頂部做成天窗,所有需要在樓內環通的設備管線也整合進了這個天窗的側壁。
建筑的立面變動明顯,一是源于內部空間的巨大變化,二是結構加固的需要,原來的倉庫為單跨結構,不滿足現行的結構規范要求,通過跟結構師反復討論,評估了性能、造價和使用功能之后,確定了最終的加固方案和新加斜撐的具體位置。由于內部功能的劇變,原有的建筑外墻都不可用,新的外墻對應著新的內部空間劃分,我們使用了一種輕盈的語言,強調了建筑的舊框架,在里面添補新的秩序,如同Eames夫婦設計的組合柜,在一個簡單框架里容納了多種語匯,實的、透明的、空的、孔洞、斜線、反射的……好像在零敲碎打的回應問題,但最后也呈現出了一種輕松明了的整體感。
最后,我們用廊橋把兩個庫房頂層辦公空間連接在了一起。
5號樓公共大廳外陽臺
5號樓南立面
5號樓一層南立面
從5號樓公共大廳看向城市
從公共大廳看向公園
5號樓公共活動室
5號樓公共活動室北側通道
5號樓辦公區走廊天窗
用于指導施工的大比例結構與設備管線實體模型
5號樓新加樓板及結構補強
5號樓一層擴展部分
5號樓新加二層樓板及結構補強
結構補強斜撐
站在5號樓露臺看北立面
5號樓通向平臺的樓梯
4號樓加建平臺
5號樓辦公入口
4號樓與5號樓之間的廊橋
項目圖紙
總平面圖
一層平面圖
4號樓平面圖
5號樓平面圖
4號樓剖面圖(場地)
5號樓剖面圖(場地)
4號樓剖面圖
5號樓剖面圖
5號樓詳圖
項目名稱:交通物資倉庫改造
設計單位:亙建筑事務所
主持建筑師:薛喆、范蓓蕾、孔銳
項目地點:上海靜安
設計時間:2017.05-2018.01
建造時間:2017.11-2018.09
類型:改造
功能:辦公
建筑面積:4500平方米
項目建筑師:劉洋
設計團隊:陶舒婷、王詩羽、冼浩輝、郭正浩
結構顧問:張準
機電顧問:萬華軍、潘珅、劉劍平
攝影:陳顥
.END.
注:本文轉載自gooood谷德設計網,版權歸原作者所有。

