群眾體育建筑 - 揚州南部新城體育園
作者:gooood谷德設計網 來源:gooood谷德設計網
中國的快速城市化充滿挑戰,也提供了前所未有的機遇。經歷了2008年國家競技體育場館建設的狂歡后,中國的體育建設重點逐漸回歸體育運動的本源,為普通群眾創造活動和交流的場所。
這些新的城市成分不再是過去城市迅猛發展潮流下巨型住宅區和商業區的錦上添花元素,而開始成為引領城區發展的催化劑。揚州規劃以老城保護為核心,建立綠化緩沖帶,向外發展新區。南部新城開發區希望充分發揮后發優勢,利用新區體育園作為啟動點,創造與老城區有聯系但又有自身特色的片區,帶動城市的南向發展動力。
項目鳥瞰
項目基地位于揚州市南面經濟技術開發區內,恰好處于以瘦西湖景區為核心的揚州傳統城市中心的中軸線上。
鳥瞰平面圖
體育園區景觀
體育園主體建筑
策略
在相對緊張的用地,如何創造出富有吸引力的公共空間,鼓勵人與人的交流?如何提升建筑與景觀的互動,創造有歷史根源并能代表新城發展的形象?如何定義適合中國未來生活方式的群眾體育建筑類型?我們提出了以下策略:
方案生成
南部體育園
入口臺階
01.聚——集中節地的規劃策略
基地用地呈三角形狀,四面臨路。用地坐擁便利的交通資源,可達性強。且北邊緊靠生態廊道,擁有較好的生態環境。在總體布局上,本設計采用大開大合的手法,集中布置場館體量,節約建設用地,以讓出開闊的綠地給城市展示廣場及戶外活動用地。
規劃策略
集中布置場館體量,讓出更多綠地和戶外用地
02.連——景園一體的景觀策略
北側的“運動森林”為主要的戶外活動場地。作為主體建筑與北側公園的過渡,跑道形成的空間紐帶串聯起了整個空間。圍繞中庭在二層有一條空中跑道,跑道同時通過外部的臺階與室外的跑道互相串聯,沿著室內跑道可以觀賞室內的體育活動,中庭表演,沿臺階到達室外又可以享受綠化景色,新鮮空氣。
創意地景
“運動森林”
林中棧橋
03.圍——主輔分離的建筑策略
建筑輔助功能如設備疏散等空間安排于體量外沿,圍繞主要功能體量布置,從而使場館內部活動空間更為靈活自由,滿足運營中功能變動的需求。這種原型可以追溯到路易斯康的服務空間和被服務空間的分離,以及皮亞諾和羅杰斯的蓬皮杜中心的設備外置。
輔助空間和功能空間布局
體育場外圍走道
04.透——延續傳統的文化策略
傳統手工藝剪紙為著名的揚州特色裝飾語匯。我們將其進行抽象化的表現,并通過參數化手段在建筑立面上實現傳統文化與現代技術的完美融合。
抽象化的窗花概念
“窗花”燈光效果
立面細部
05.折——體現時代的修辭策略
路易斯·康的服務空間和被服務空間原型在方案中得到進一步發展,服務空間的形象展現不再是次要的和輔助的表達,而是得到了清晰表現自我的機會。這些形式引入了中國文化的要素,提取了古典園林中折廊的意象,將主體功能與輔助功能,室內活動與室外活動,建筑形態和文化內涵融合成一個有機的整體。在材料上我們選擇了深灰色鋁板,硬朗的現代感充分展現現代體育建筑的性格:動感的能量盒子。
設計概念:“折”
折廊的意象在立面上通過深灰色鋁板表達出來
建筑外觀細部
06.匯——靈活互動的功能策略
相對于競技體育建筑,群眾體育建筑在中國是一種相對新的建筑類型,對于體育功能的定義,理解和空間配置方式提出了新的要求。
我們提出了泛體育功能的概念,特點是自由空間,交流空間和復合空間:主要活動如多功能廳,泳池,羽毛球籃球等功能圍繞共享中庭布置,最大限度地鼓勵不同功能在視覺上和行為上的交流和互動,充分體現群眾體育活動的行為特征。中庭為公共復合空間,可以組織社區活動,小型演出等活動,平時可以作為攀巖場地和輪滑場地使用。
功能策略
多功能中庭
室內場館
可持續的設計
1.城市發展的可持續性:設計一方面延續歷史文脈的符號,另一方面成為帶動新城區發展的節點。
2.社會生活的可持續性,設計強調社區優先的體育活動。中國的體育建筑從競技功能擴展到群眾活動功能后模糊了建筑類型的界限,這種新的類型需要同時具有傳統競技體育建筑的大跨空間,臨時坐席和集中人流集散的特點,同時滿足多樣化的群眾參與和泛體育休閑文化等新生活方式的要求。多功能混搭,復合轉換功能,這些將產生新的建筑空間和建筑形式,甚至新的類型.
3.文化思想的可持續性:建筑學的發展離不開建筑原型的總結和沉淀。本項目繼續了對服務空間和被服務空間的原型思考,經過功能化和藝術化,服務空間與建筑表皮巧妙結合。
4.經濟運營的可持續性:運營上以市場運作代替政府補貼.
5.審美體現的可持續性:立面用現代美學表現傳統窗花意象。
6.環境能源的可持續性:設計結合了光伏太陽能屋面系統和被動式通風等技術,減少能耗,集中規劃布局,節約用地。
園區景觀
從廣場望向建筑
建筑夜景
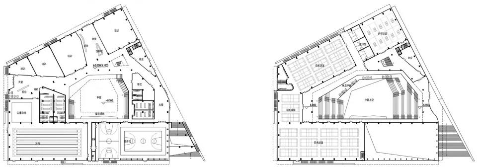
項目圖紙
景觀平面圖
建筑平面圖
剖面圖
項目名稱:揚州南部新城體育園
設計方:柏濤建筑設計(深圳)有限公司
項目設計 & 完成年份:2016 & 2018
主創及設計團隊:施旭東 展洶濤 孫維 林大平 闕曉鋒 徐功祥 林菁
顧問:王漓峰 趙國興 趙曉東 呂學軍 李明
項目地址:中國江蘇省揚州市邗江區
建筑面積:33270㎡
.END.
注:本文轉載自gooood谷德設計網,版權歸原作者所有。

