美西大陸上的一顆紅寶石 - Ruby City美術館,美國
作者:gooood谷德設計網 來源:gooood谷德設計網
Ruby City是德克薩斯州圣安東尼奧市一座占地2萬平方英尺的美術館,設計靈感來源于已故的Linda Pace根據夢境所創作的一幅理想城市繪畫。建筑坐落于Camp街,是Pace基金會的產業之一,形成了從South Flores街到San Pedro河的一片活動區域。
美術館是一組畫廊體量構成的集合體,展出藏品并向世人傳達Linda的生平和作品所蘊含的精神。混凝土與玻璃構成的深紅色建筑外殼在陽光下熠熠生輝,建筑內部展覽之旅借助一系列雕塑和拱券畫廊來完成。
South Flores街與San Pedro河畔的美術館
混凝土與玻璃構成的深紅色建筑外殼在陽光下熠熠生輝
設計靈感來源于已故的Linda Pace根據夢境所創作的一幅理想城市繪畫
室內外設計文脈參考
值得注意的是,Ruby City使用的材料色調豐富而協調。外表皮由墨西哥城生產的紅色預制混凝土構成。從地面起10英尺高的混凝土進行了細致地拋光處理,保證與行人接觸的部分觸感光滑;在這之上的混凝土粗糙、銳利,鑲嵌著兩種紅色玻璃。整體效果讓建筑看起來像是一塊切掉與人們接觸部分的棱角分明、粗糙、閃閃發光的巖石。
這種光滑與粗糙構成了Ruby City標志性的特征?!焙裰亍暗恼劬€形斜屋面賦予了建筑別具一格的外觀造型,同時強調了向上的態勢。屋頂的兩扇天窗抑或叫做采光塔,形成了動態的屋頂輪廓線。
混凝土與行人接觸部分進行拋光,上部保留粗糙感
立面細節
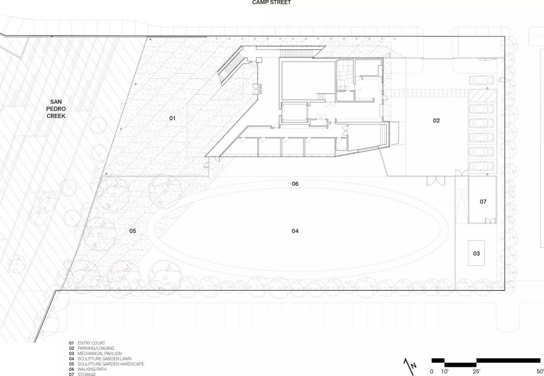
雕塑花園由一條橢圓形風化花崗巖步行道圍合而成,步行道界定出內部寬闊而蒼翠的草坪,西側邊界采用玄武巖鋪裝(兩種都是當地石材)。橢圓形的區域借助Nancy Rubins 和Marina Abramovic的兩件作品為空間帶來了一種儀式感,強調花園自身存在的價值而不是建筑的一個附屬物。東西兩側紅色酸洗預制混凝土墻包裹著花園的邊界。
雕塑花園以一條花崗巖構成的橢圓形步行道圍合而成
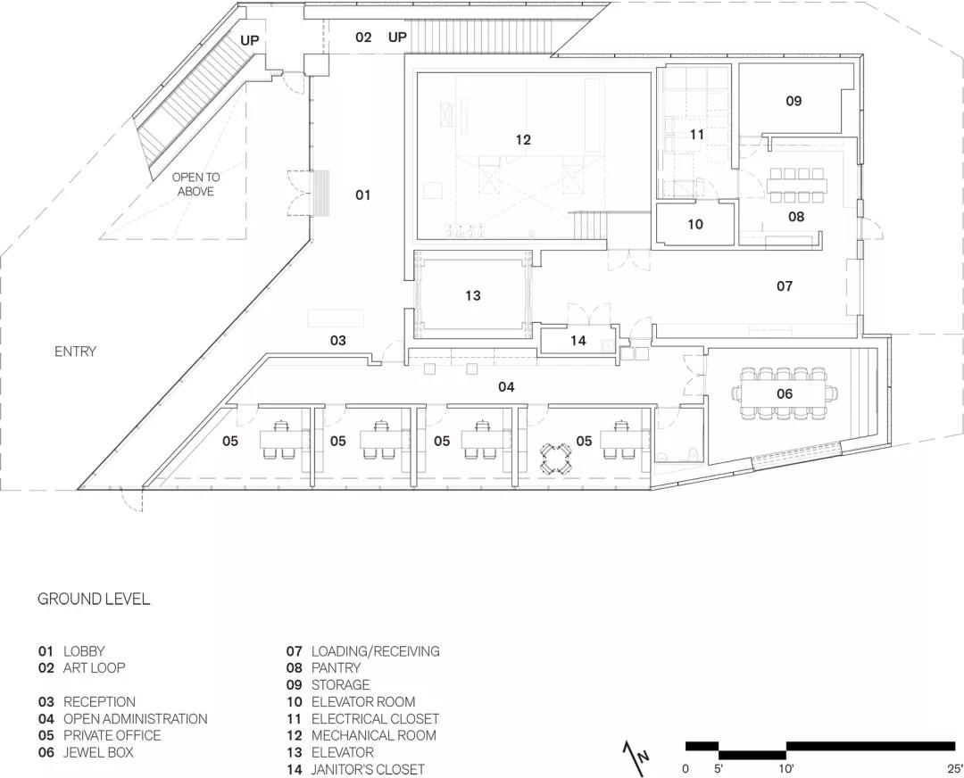
建筑內部與外部采用同樣的設計理念。兩層樓高的新建筑內包括藝術展覽空間和輔助支持空間如辦公室、后勤區和名為Jewel Box的獨特會議室,還包括入口廣場和戶外雕塑花園。為了模糊內外界線,入口廣場和大廳采用相同的建筑語言:深紅色調。
紅色的廣場延伸入大廳,以歡迎的姿態將參觀者引入建筑內部。大廳地板采用其標志性的紅色混凝土并展露出構成混凝土的骨料。相對比之下,接待臺采用當地的Lueders石灰巖構成,切割簡單并以黑色金屬裝飾。前文提到的Jewel Box是這座獨特建筑內一個重要的空間。
私密會客室隱藏在Jorge Pardo設計的門后,當地Longleaf松木增添內部柔和而溫暖的肌理。在Jewel Box內部,由紅色預制混凝土墻圍合成的一扇大窗戶提供了朝向雕塑花園的獨特視角,從內部任何地方都能清晰地看到外部所使用的材料。
一層平面圖:大廳與入口廣場相結合以歡迎的姿態將參觀者引入建筑內部
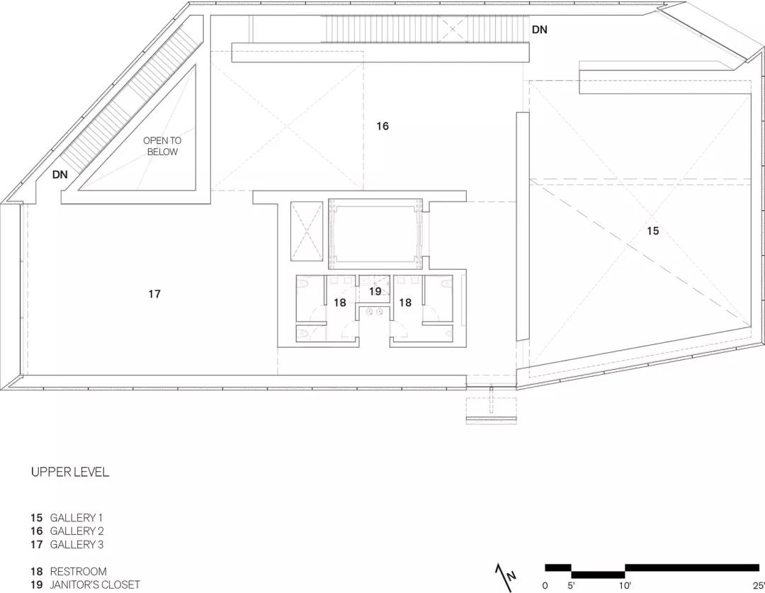
美術館內部空間設計為環形結構——一部樓梯從大廳緩緩升起,抵達二層俯瞰Chris公園的窗邊。離開大廳步入環形流線,參觀者進入了用于展示Linda Pace Foundation的藝術收藏品的純粹空間。
二層空間采用光滑混凝土地板、白色墻面和流線型的燈具,在這里,人們可以通過朝向北部、西部寬闊的窗戶和帶有折疊式天窗的高聳采光屋頂欣賞整個Ruby City園區的景色。
參觀者從俯瞰Chris公園的窗邊穿過三個展覽空間,每個空間內部都有一個朝向不同的采光塔,將圣安東尼奧耀眼的陽光調整過濾為內部柔和的光線。在經過最后一間展室向下回到大廳之前,參觀者能夠在這個區域看到整個入口廣場和San Pedro河,從大廳可以到達建筑南側的室外雕塑花園。
二層平面圖:內部空間設計為環形結構,大廳樓梯引導人們抵達二層俯瞰Chris公園的窗邊
縱觀整個建筑,建筑師對肌理與特色進行了充分的考慮。門和扶手使用深色鋼材,打破金屬使用的統一感并帶來視覺上的識別性。辦公室設計簡潔優雅,讓藝術品和大量的藏書來為空間增添色彩,地面鋪設天然纖維地毯。洗手間的地板采用帶有紋理的粗糙瓷磚,與光亮的鉻金屬部件形成對比。
借助這種令人驚嘆的材料雙重性,Ruby City、雕塑花園和入口廣場形成了Linda Pace基金會在Camp街道上的獨特所在,它建立了一個讓圣安東尼奧地區藝術與社區積極參與進來的新公共區域。
建筑材料分析
效果圖
項目圖紙
模型
草圖
場地平面圖
北立面
南立面
東立面
西立面
.END.
注:本文轉載自gooood谷德設計網,版權歸原作者所有。

