濮家小學濮家校區整體改造
作者:建日筑聞 來源:建日筑聞
© 形而下+杭州橡地建筑
© 形而下+杭州橡地建筑
在社會進步和活動空間品質需求提高的雙重推動,和傳統的灌輸式教學逐漸發展為開放式教學的教育背景下,當下的教學不僅需要完善的使用空間,更需要自由開放的環境品質來給予學生和教師更多的空間品質感和自我認同,如何塑造符合時代需求的學校形象在設計初期成為我們討論的核心。
© 形而下+杭州橡地建筑
© 形而下+杭州橡地建筑
杭州濮家小學創辦于1988年9月,原有機場路、閘弄口兩所小學合并而成。機場路小學最早創建于清朝末年,原是個私塾學校,校址在聞王廟。到1912年改為下菩薩國民公立小學。解放初改為聞王廟小學,隸屬下城區流水橋小學輔導區。
改造前 ©形而下+杭州橡地建筑
濮家校區是濮家小學教育集團歷史最久的一個校區,最老的一幢樓是在上世紀80年代建成的。該學校有30年的歷史了,濮家校區是濮家教育集團最老的校區,校方希望能通過翻修給校區新的生命力。濮家校區是體育傳統名校,所以我們和學校都想把運動的元素融入操場當中,在其后的方案中出現了高飽和度的顏色和不同形式的線條和幾何圖形。
© 形而下+杭州橡地建筑
© 形而下+杭州橡地建筑
濮家校區是體育傳統名校,所以我們和學校都想把運動的元素融入操場當中,在建筑和運動場地設計中出現了高飽和度的顏色和不同形式的線條和幾何圖形。因時而興,乘勢而變,隨時代而行。90年代的校園建設對美學設計要求普遍不高,伴隨懷舊聲,眾多的校園逐漸老化,孩子們將童年大部分時光留在了校園,如何帶給孩子們一份童趣和天真用來溫存逝去的回憶是校方和設計者都在思考的一個問題。
© 形而下+杭州橡地建筑
濮家小學具有傳統優良的體育文化氛圍,促進校園文化創新,對于教育空間的特定屬性不是僅僅停留在翻新與涂色,考慮到校園空間孩子們的需求及心理特征,在設計上通過七彩,營造出校園空間設計語言基調,建立校園氣氛,突顯以七彩陽光為主題的濮家小學校園文化。
© 形而下+杭州橡地建筑
從建筑立面到學校操場地面,從暖色逐漸往冷色沉淀,通過建筑外墻構架形成建筑機理,一個個彩色的“糖果球”被賦予到空間中去,各種組合與搭配產生不同的色彩變化,營造出層次豐富細節生動的趣味。使整體立面設計輕盈透亮,色彩在遠處自然暈染散開。
© 形而下+杭州橡地建筑
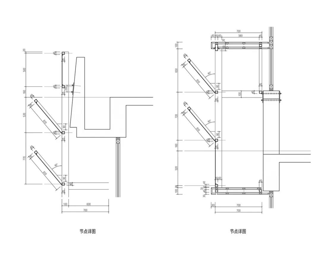
球體所附屬的網狀構筑物與建筑立面呈四十五度夾角關系,既不對教室的光亮造成影響,在視覺層面上又會呈現色彩的交織、融合、疊加、分解的動態視覺感受,使人在空間運動過程中感受色彩的變化流動。這些球體相互連接又相互不同,好比全球互聯下的今天人們交織鏈接在一起。
© 形而下+杭州橡地建筑
© 形而下+杭州橡地建筑
運動場地上改變了普遍單調的操場的涂裝規則,保持操場標線功能的同時提取其中固有的規律性元素進行圖形化延展處理,將對比的色彩植入其中形成強烈的“碰撞”,讓孩子們在運動中感受競技體育的樂趣。
© 形而下+杭州橡地建筑
© 形而下+杭州橡地建筑
關注童真,營造人文美學是濮家教育集團的目標,以校園空間的創新,表達與時俱進的辦學理念,帶給教育環境新的感受,讓校園充滿孩子成長中的幸福感,使童年記憶中的校園生活增添了一份生命的意義。
© 形而下+杭州橡地建筑
© 形而下+杭州橡地建筑
作為一次預算極為有限并且要在暑假期間完工的改造項目,我們也是采取最低成本的改造方式和材料,對于原有建筑結構完全保留不做改動,僅在外部懸掛裝飾結構。
© 形而下+杭州橡地建筑
項目圖紙
細節圖
項目信息
建筑師:杭州形而下景觀建筑、杭州橡地建筑設計
地址:杭州,中國
設計團隊:張赫,李姜芨,郭丁凡,王淑劍,黃飛 曙光
建筑面積:4000.0 平方米
項目年份:2018
.END.
注:本文轉載自建日筑聞,版權歸原作者所有。

