湘江河畔的白色迷宮 - 謝子龍影像藝術館,長沙
作者:gooood谷德設計網 來源:gooood谷德設計網
謝子龍影像藝術館建在湘江河畔,長沙洋湖濕地公園之內。所在基地恰好處于濕地公園連接湘江風光帶的視覺廊道上,是政府重點打造的市民文化藝術高地。影像館同我們之前已經完成的湘江新區規劃展示館(2009年)、李自健美術館(2016年)共同構成了洋湖市民的文化客廳。
鳥瞰圖 ©姚力
南向全景 ©姚力
北立面 ©姚力
西北向全景鳥瞰 ©姚力
外部坡道 ©姚力
東北向****** ©姚力
空間與指向 ©姚力
覆蓋 ©姚力
在順應建筑“自治性”的價值認知體系基礎上,通過對地域類型學的持續研究與實踐,探求建筑本體中的“原型”,并發現其背后的“心理圖式”,加之受契里柯形而上繪畫的影響,我們在當下追求浮華、表象化的社會圖景下,試圖尋找到形式語言背后的內在邏輯——“類型原型-深層結構-心理圖式”,并將其融入到“謝子龍影像藝術館”設計中。
空間結構示意
“神諭之迷”——契里柯 ©姚力
“空”的舞臺 ©姚力
空間的滲透 ©姚力
契里柯形而上的繪畫是對永恒的思考,畫面透過“光與影”彌散出一種神秘曠奧、安靜深遠的靜寂感,影像館借助日常生活中熟悉的物來隱喻和建構一個時間停滯的迷宮,引導觀者密切關注疏離化之后的陌生感。
設計手稿:光的三角 ©魏春雨
直指天空巨大的錐塔,懸于半空的被截斷的街道以及不知通向何處的岔路洞口,循環往復、穿插對望的神秘坡道……部分元素以相似但異化的形式多次出現,它們共同制造充滿著時間停滯感的奇異感受,讓人迷失。
白色溫潤的清水混凝土墻面使建筑的空間結構呈現出最本質的中性狀態,凸顯著質料的神秘,空間的縱深通過光影逐漸呈現出來,與記憶交織在一起。迷宮是一個多義的隱喻,既指迷失的地方,又是讓人著迷、沉醉其中的處所。
主入口 ©姚力
光的三角 ©姚力
坡道 ©姚力
中庭 ©姚力
駐與行 ©姚力
影像駐留 ©姚力
錐塔與街區 ©姚力
揭示 ©姚力
光的神性 ©姚力
有天光的地方 ©姚力
誤入 ©姚力
主展廳局部 ©張光
建筑主體由白色清水混凝土一次性現澆而成,無論墻體,頂棚、地面或室外廣場、平臺、棧道都只使用清水混凝土一種材料,做法本身就是超越性的。
為追求清水混凝土質感與性能,施工前期做了大量樣塊、樣板墻及白色混凝土的級配試驗:采用優質白水泥代替傳統硅酸鹽水泥做為主要膠凝材料,精選白色或淺色砂石為骨料,同時剔除粉煤灰和礦粉等對混凝土白度影響較大的活性礦物摻合料。
西立面 ©姚力
路徑交匯處 ©姚力
碼頭的記憶 ©姚力
壓低的水平長窗 ©姚力
一系列的改良試驗使混凝土白度達到、甚至超過了88%的國際標準,是國內最白的清水混凝土建筑。
影像館材料刻意追求白,白色作為一種觀念,能最大程度降低材料本身固有色對空間中其它成分的干擾且不喪失其清水砼本身的質感;白某種程度還是對“空”的表達,既是對館內藝術品的強調,又為藝術品的選擇預留更多思考空間與可能性。
西南向****** ©姚力
建筑主體只使用清水混凝土一種材料 ©姚力
東南向****** ©姚力
不安之旅 ©姚力
并置與偏轉 ©姚力
三個向度 ©姚力
三片弧的對話 ©姚力
項目圖紙
場地平面圖
交通路徑示意
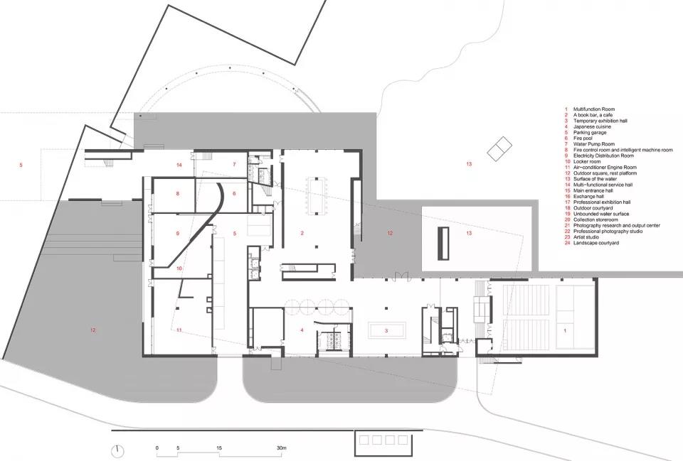
首層平面圖
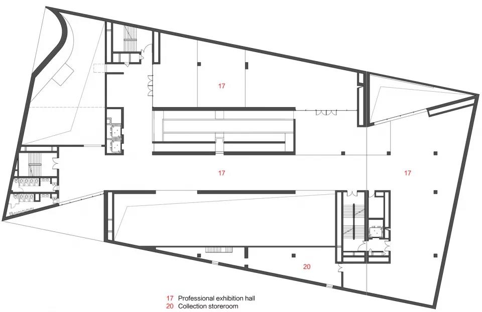
2層平面圖
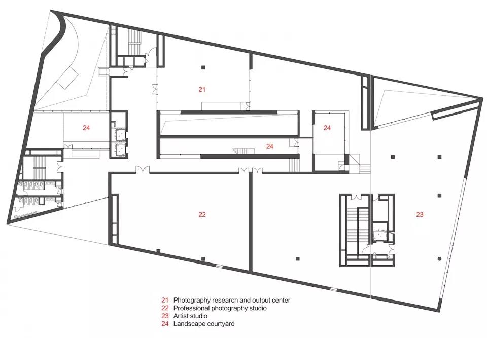
3層平面圖
4層平面圖
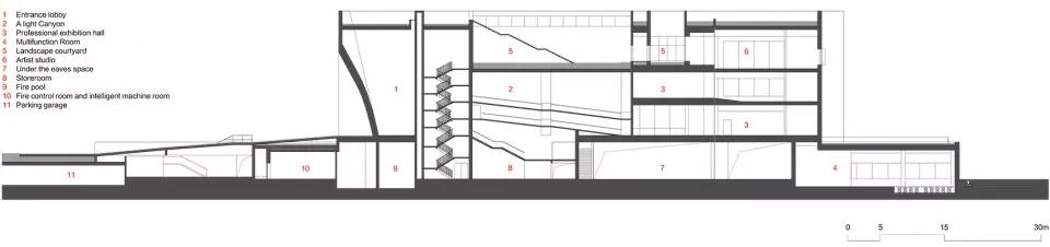
剖面圖
項目名稱:謝子龍影像藝術館主創建筑師:魏春雨 張光
設計團隊:沈昕,劉海力,陳赟,文躍茗,佟琛,陳榮融,肖敏(節能),朱建華(結構)
項目詳細地址:湖南省長沙市岳麓區瀟湘南路387號
項目完成年份:2017年9月
建筑面積:10622平方米
攝影師:姚力 張光
.END.
注:本文轉載自gooood谷德設計網,版權歸原作者所有。

