一代人的記憶修復 - 宋家溝鄉村改造項目,山西
作者:gooood谷德設計網 來源:gooood谷德設計網
郵局鎖著村莊的秘密
雪中打量工人
掐滅煙,在新舊村之間的橋上張望
目送夕陽的馬蹄掠過街道
聽見兒童們的笑聲抱在一起
—— 一位設計師在村里設計時寫下的感受
前言
在鄉村振興異地扶貧搬遷的浪潮下,許多移民新村拔地而起,幾乎全部是推倒重來亦或是另辟新地,無論如何模仿和研究鄉土秩序,設計幾乎很難回應自然而然的傳統村落的肌理,同時多個自然村的村民的集中安置,是對其村民生產生活的行為秩序的打散與重組,若有所不當,就會造成新的隔閡與矛盾。
由此,我們希望能否以植入和空間換置等手法進行移民搬遷的工作,通過公共空間的秩序恢復和散點的分布規劃來化解新舊隔閡,恢復鄉土文化的自信。
宋家溝村全景圖
宋家溝鄉位于岢嵐縣東南部,其鄉政府所在地宋家溝村是一個背靠山脈,臥于嵐漪河畔的中心集鎮。村莊緊鄰高速路,是本地宋長城溝域旅游的重要入口。
村莊從東向西,新舊村依次排開,村內村民邊界意識明顯,公共活動空間缺乏,在2017年時面臨著周邊自然村村民移民安置的重要任務,同時也難以承擔旅游集散和入口節點的重要功能。在一系列問題交織的情況下,整村的系統規劃和全面介入改造迫在眉睫。
新舊村邊界明顯
策略介入
一河之隔,兩側村民的交流和融合極少,傳統舊村空間變成“羞澀”空間,公共活動和場所被分割。面對這種空間語言的紛雜、村民的精神對抗以及新搬遷村民的潛性抵觸,我們通過空間的重新梳理,對邊界進行了場所植入、柔化與過渡。
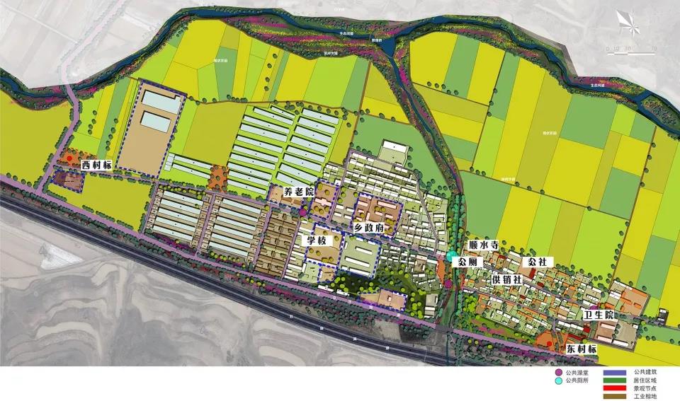
村莊總平面圖
沿河岸吸納周邊空余場地形成開放的活動空間,同時植入廟宇、浴室等公共建筑,將原來起單一帶狀的分割線,變成了有機多元的鏈接帶。
河道變成隔閡兩側的帶狀邊界
公共建筑和綠地
我們希望搬遷而來的村民可以無論從空間還是生產生活都融入本村。為了使在更多的公共區域有村民的融合,最終我們建議政府對安置房進行碎片化分布,新建和改造收儲等多種方式結合,通過規劃布局,和深入村莊的居住調研,將安置房“溶解”在了舊村之中。
多種戶型有機植入于舊村
公共節點設計
村莊毗鄰高速和省道,在山腳下平平無奇,一個尺度適當的村莊標識能夠營造起充分場地進入感,同時對宋家溝村歷史文脈及本地宋長城文化進行糅合提煉。利用向村民舊磚瓦材料的收集過程,使村標的設計自然而然的從村莊內部滲出,與整個地域互相回應。
村標現狀
村標實景位置圖(建設前)
村標場地平面圖
村標夜間概覽
村標及其廣場
村標結構及分析圖
村標立面圖
利用本地材料的融合感和親近感形成公共場所的空間,同時也產生了人與互動的關系。簡單統一的處理,更為直接也更加凸顯了村標的作用。
村標成為了兒童的樂園
公共空間的記憶修復
人民公社
從1960年人民公社運動開始至今已近50年,這個院落見證了村莊的歷史記憶和現在老人們的青春,村莊的公社廢棄后為村民居住使用,設計介入后,村民主動將其還給了村委,作為見證著村莊歷史變遷和及村內老一代人的記憶,我們將其改成了村史館和村委會。
人民公社改造前
人民公社的歷史沿革
遵照村民的意愿,維持它原本的風貌,我們保留了其木結構,保證其原來的尺度,通過現代建造技術對其進行了加固,在拆除屋頂墻體的過程中,我們邀請了村民前來圍觀和參與。
村民參與房體的拆除留下的木結構
公社平面圖
正房改建分解
修復后的公社街景
修復后的公社鳥瞰
改造后的公社庭院
正房內景
場所由封閉轉為開放,互相關聯的空間使公共場地變得流動
供銷社
供銷社改造完成后,被本村人承包為了客棧,同時他也承諾為村莊老人提供食堂服務,其原本偌大的院子變成了公共戲臺,為村莊不斷注入活力。
被荒棄的供銷社
院內的戲臺
戲臺平時坐滿老人,平靜地度過午后
廣場上游戲的孩子
熱鬧的戲臺與村民
長達一年多的在地陪伴,建設的過程發生了許多有趣的故事,村民比我們想象中的更加關心自己的村莊。更多的時候,變成理性和非理性的對抗,拒絕和接受的對抗,設計師的身份開始轉換和變化,建筑或者場地的落地也發生微妙的變化。
如今看來,這種變化讓我們的方案變得柔和,設計似乎和村莊展開了一場辯論,這讓我們更加理解了鄉村,在鄉村建設中,接受和參與變成了核心,鄉土的感覺也不再依附于形式和風貌,如何完成,比設計呈現更為關鍵。
村民主動參與拆房(左),并拿出了自己設計的“施工圖”(右)
村莊的巨大改變
舊村主街改造之前
舊村主街改造之后
主街改造之前
主街改造之后
村莊內部街景
傍晚的宋家溝
結語
當設計面臨整村區域地介入村莊的時候,傳統的手法或者新式等語言的選擇已經不再重要,曾經的村落可謂是一個用溫情,傳統,鄰里,秩序,邊界所搭建的巨大“建筑”,我們對這龐大復雜的建筑嘗試進行了一次修復。
村民的第一參與,空間的故事和記憶性的回應在村莊建設中更為關鍵。如今的宋家溝已經變成了人流絡繹不絕的景區,商業與生活交融,新舊村民,兒童,青年,老人在橋頭,廣場,河畔,展開了新的生活。
西村標
西村標入口
客運中心
項目負責人:彭濤
主創設計師:彭自新
團隊:白嚴嚴、王俊堡、高璐璐、趙文華、嚴景業、賈海鵬、陳菲菲、楊建飛
設計單位:中國鄉建院
建造時間:2017.04-2017.07
項目位置:山西省忻州市岢嵐縣宋家溝村
.END.
注:本文轉載自gooood谷德設計網,版權歸原作者所有。

