吉首美術館:一座橫跨江面, 兼做步行橋的美術館 / 非常建筑
作者:建日筑聞 來源:建日筑聞
黃昏中的吉首美術館 ©田方方
社會工程
美術館所在的吉首市是湘西土家族苗族自治州的州府。起初地方政府考慮在城外的開發區內選擇建設用地,然而我們作為建筑師則建議將美術館設立在人口密集的乾州古城的中心區,因為我們認為文化設施應該盡可能地方便居民使用。
鳥瞰 ©田方方
吉首美術館嵌入現有城市肌理 ©田方方
穿城而過的萬溶江流經吉首的核心地帶,因此我們構想了一座橫跨江面、兼做步行橋的美術館。我們希望人們不僅會專程去欣賞藝術,也可以在上班、上學、或者購物的途中與藝術邂逅。
萬溶江上的吉首美術館 ©田方方
橋身立面筒瓦遮陽系統 ©田方方
插入肌理
如今,許多諸如博物館和劇院的當代文化設施都被當作獨立的紀念物而遠離社區。我們認為美術館不應該從區位上脫離受眾,因此將其嵌入到現有的城市肌理中,兩岸的橋頭部分與萬溶江畔的排屋緊密相連在一起。這些排屋包含了店鋪、餐館、小旅館,樓上通常便是屋主的居所。因此,吉首美術館位于河兩岸的入口都可以被視作混合功能街道界面的一部分,從而融入當地人的日常生活。
從相鄰街道看吉首美術館 ©田方方
東側入口 ©田方方
西側入口 ©田方方
轉釋傳統
被稱作風雨橋的廊橋在我國山區里有著悠久的歷史。除了跨越河流或山谷的功能,它們也是供旅人休憩、商販擺攤售賣的公共空間。作為對這一古老建筑類型的當代詮釋,我們的設計在保持傳統廊橋的交通與歇腳功能的同時引入新的藝術內容,并將風雨橋的形式語言加以現代化。
風雨橋 圖片來自網絡
鋼結構橋局部 ©田方方
透過步行橋天窗仰望大展廳 ©田方方
步行橋層 ©田方方
橋梁建筑
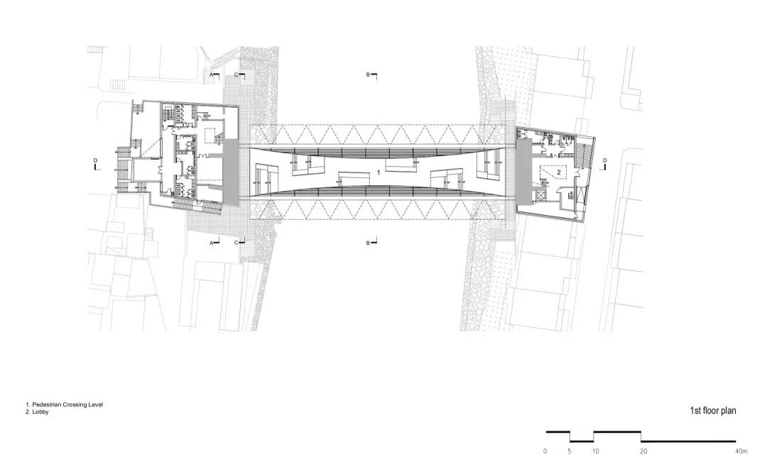
美術館以橋上橋的形式構成。下層的鋼橋是開放的桁架結構,為行人通過提供了一個帶頂的街道,同時也助于疏導洪流;上層的現澆混凝土拱橋內部設有畫廊。
雙層橋設計分析圖:鋼橋上的混凝土橋
由三樓平臺看大展廳 ©田方方
大展廳內混凝土拱橋下方 ©田方方
三樓混凝土拱橋內部畫廊 ©田方方
過渡空間左墻上的混凝土預應力錨索緊固件 ©田方方
兩橋之間是一個由玻璃幕墻和筒瓦遮陽系統圍合而成的大展廳,用于舉辦臨時展覽。美術館的服務空間如門廳、行政辦公、商店和茶室則被安置在兩端的橋頭建筑內。人們可以從任意一側河岸進入美術館。
東側大廳樓梯間 ©田方
東側入口大廳 ©田方方
大展廳 ©田方方
大展廳末端玻璃幕墻 ©田方方
吉首美術館是藝術家黃永玉先生倡議并捐贈的成果,于2019年4月完工,首展將于夏季開幕。
西立面局部 ©田方方
項目圖紙
總平面圖
首層平面圖
二層平面圖
三層平面圖
立面圖
剖面圖
項目信息
地點:湖南省吉首市乾州古城
建筑面積:3535.4 平方米
設計周期:2013-2016
項目年份:2019
主持建筑師:張永和,魯力佳
項目團隊:梁小寧,楊普,劉昆朋,粟思齊,饒崗
攝影師:田方方
結構咨詢:常鏹
結構材料:鋼桁架結構,鋼筋混凝土拱結構
客戶:吉首市德夯風景名勝區管理處
.END.
注:本文轉載自建日筑聞,版權歸原作者所有。

