東莞新基白房子民宿群,密集村莊的共生策略
作者:建日筑聞 來源:建日筑聞
月夜星空 ©吳嗣銘
新基白房子民宿群項目位于東莞市麻涌鎮新基村,一個十分典型的珠三角城郊密集型農村。在新基村,我們采取一種散點式的更新方式,通過對散落在整個村落中的荒廢破敗、有文化價值的老房子進行改造,打造出一個開放式的,與當地村民共生共存的民宿集群。
新基礎村鳥瞰圖 ©吳嗣銘
天臺共享空間與祠堂公共空間的共生 ©吳嗣銘
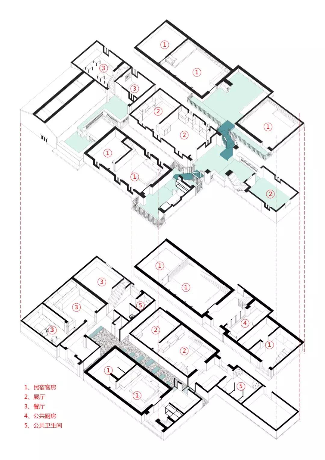
中國農村原本是一個嚴格尊重土地所有權的社會,這使得設計原本共享的概念難以實現。因此在整個社區的核心組團的設計中,我們利用相鄰四棟被租賃下來的房子,打破房子間的圍墻、眾籌一個公共空間——將四棟房子的院子,附屬空間,過道空間,露臺空間等原屬于單個房子內部的公共空間全部集合到一起,梳理出一個屬于大家的能適應新的使用功能的公共空間體系,以解決整個白房子民宿社區缺乏公共活動空間的難題,眾籌一個社區活動中心。
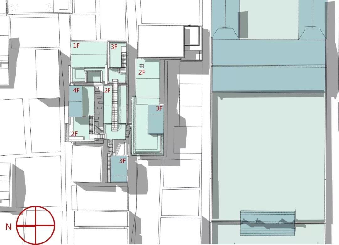
分析圖
分析圖
新宅與舊宅的共生 ©吳嗣銘
©吳嗣銘
眾籌院子 ©吳嗣銘
項目建成之后,核心組團很自然地成為了輻射整個白房子社區的公共空間,白房子團隊在這里舉辦了多場天臺音樂會,多次天臺燒烤派對,這些活動的參與者,除了運營方和民宿住客,還有村子里的老人小孩等。
©吳嗣銘
長在屋頂上的白房子 ©吳嗣銘
音樂會活動 ©吳嗣銘
建筑與植物的共生 ©吳嗣銘
由于這個天臺公共空間的存在,本地村民與外來住客有了更多的交集,彼此之間的交往更加融洽,設計師原本設想的散點式、共生式的舊村更新和民宿生活態度得到了很好的實現。
分析圖
室內空間的光影與細節 ©吳嗣銘
現代建筑與傳統水鄉文化的共生 ©吳嗣銘
項目圖紙
項目信息
建筑師:豎梁社建筑
地址:麻涌鎮新基村, 東莞市, 廣東, 中國
主創建筑師:鐘冠球,宋剛,朱志遠
設計團隊:林海銳、趙海博、金鑫、田濤、肖明慧、阮潔瑩、梅琬菲、肖欣、葛鳳姣(實習) 、王子軒(實習)
建筑面積:6000.0 平方米
項目年份:2017
攝影師:吳嗣銘
.END.
注:本文轉載自建日筑聞,版權歸原作者所有。

