山內之山 - 華潤集團檔案館,廣東
作者:gooood谷德設計網 來源:gooood谷德設計網
項目選址在惠州小徑灣的山體上,東側是華潤小徑灣的住宅區,南側與福斯特的華潤大學毗鄰而居,隔著大學,可以見海。檔案館的最基本功能其實就是“檔案庫存”與“企業展示”。我們將7,590平米的檔案庫房與辦公用房藏在山體中,而露在山體之上的兩層,則用作企業展覽(1,390平米)。
建筑外觀 ©蘇圣亮
檔案館選址 ©Link-Arc
場地剖面研究 ©Link-Arc
參照
設計一開始,檔案館就有兩個參照物:一個是基地所座落的山體,并不高,所以露在山上的建筑尺度也要收斂,通過對山體的切削和平整,讓山體與建筑“長”在一起;另一個參照物就是華潤大學,檔案館既要一定的獨立性,同時又要和規模更大的華潤大學和諧共處。建筑的高度被刻意地控制在比平整后的山體略高,但比華潤大學略低的高度。
檔案館與小徑灣山體 ©蘇圣亮
依山
植入山體中的檔案館其實擁有兩個“主立面”:在西側是山頂連接華潤大學的低調入口,觀者在山頂所見到的體量,只是建筑露在山上的二層展廳;山頂的主入口被有意識地切割為一個相較獨立的建筑體量,入口藏于體量下方,含而不露,唯有一條弧面轉角引出的陰影,暗示其內部空間的重要性;內部的公共空間也被設計成了規整合宜的方形比例。
山頂展廳入口 ©蘇圣亮
展廳入口門廳 ©蘇圣亮
在山體東側,依山而建的建筑主體則以層層退臺的形式把檔案庫房隱入山體,一系列的折向坡道將山腳下的訪客引向山頂;6層的檔案庫房采用了防潮的雙層墻體,內部應用了先進的恒溫恒濕和防光防磁設備,可供企業未來50年的檔案存儲管理需求。在東北角,建筑形體以一個充滿力量的角度被切開,在擴展視覺張力的同時,也使得室內空間更多地對外打開。
檔案館西側退臺 ©蘇圣亮
對應山勢,檔案館的路線組織,從西側入口,進入門廳,由低而高地遍游三個展廳是一種路線;由東側山腳沿曲折山道慢慢拾級而上,從7層平臺進入展廳,是另一種流線;從山腳從管理入口,通過電梯進入管理層,再去頂部的展廳又是一種。
功能空間示意 ©Link-Arc
起承
檔案館其實是背山面海,但建筑師卻覺得檔案館的特性對于“看海”這件事要有自己的態度。進入檔案館,向左,穿過首層門廳,盡端的展廳向著東北側打開,斜向的屋面把視線控制在那里,空間很靜,看的是山,完全感覺不到咫尺之外小徑灣的車馬喧囂;只有步出室外,在平臺上南望,才能釋放看海的行為。與一般的海景建筑動不動就去“看海”不同,檔案館先聽海、聞海,再望海,觀覽的情緒也是在一系列欲揚先抑的動線之后才被“釋放”——有限的海景這樣便更顯得珍貴。
公共展廳空間 ©蘇圣亮
室外觀海平臺 ©蘇圣亮
內山
一條線性、精巧的“天光通廊”將首層空間與將二層的永久展廳、三層天臺聯系在了一起;天光通廊面向門廳的墻體被切開兩個開洞,一個占角,一個占邊;上部的天光照射在內側的釉面磚上,通過開洞折射進門廳空間,成為這個沉穩的室內基調中唯一跳脫的亮色;在與空間里不同層次的灰產生色相與純度的對比的同時,也暗示著通向二層的重要流線。通過它,直上三層天臺,回頭一望,空間的經驗就在意識中被建立起來。
門廳空間 ©蘇圣亮
天光通廊 ©蘇圣亮
檔案館建筑是在山體里挖出的空,而檔案館自己內部的空間是第二個層級的空。如果說,山是自然造物的產物,需要腳步去丈量才能體驗;那么外表節制的檔案館內部就是一座向內打開的豐富山體,要理解它的內部邏輯,只用用身體在其中穿越才能實現。
內部空間構成草圖 ©Link-Arc
首層展覽空間 ©蘇圣亮
重量
項目一開始就決定了用磚。一方面磚是一種樸素的自然材料,較為符合檔案館的氣質;另一方面也與基地南側的華潤大學有關。福斯特所設計的后者采用了燒制的紅色陶磚,加長的半磚(580 x 42 x 60 mm,燒制后稍有彎拱);以此為參照,我們考慮用更樸素的灰磚,相對更標準的尺寸(253.5 x 50 x 90 mm)。
建筑西南轉角 ©蘇圣亮
傳統的磚與磚之間的砌筑方式,暗示了一種基本的受力關系,可以表達“重”;磚幕墻更符合現代建筑的大尺度要求,在一定的高度背后需要背后加筋來受力,避免下部受壓后的變形,并不是體現了真正的磚的特性,但也因為如此,建筑看起來略輕。
建筑西側立面 ©蘇圣亮
檔案館面積不大,里里外外也就8,980平米,我們卻希望它是一個有重量的房子。磚體現重量的關鍵在于體量,而體量往往表現在轉角角部的處理。通常一個靈動的房子,各個界面與場地的關系都是很靈動的——往往在一個立面上看起來很“重”,另一個立面又會很“輕”,起承轉合之間,靠的就是轉角角部處理。
從華潤大學北望檔案館 ©蘇圣亮
磚喜歡陽角和鈍角,所以一個大磚房子可以是由許許多多的小磚盒子組成。室內空間所出現陽角或者“正形”,其實是一種把內部空間“外翻”的行為,模糊了內與外的概念;或者也可以說是在一個“大磚塊”里挖走許多小盒子,隨之產生一系列的空腔,強烈的自然光沿著各自的通道在建筑中穿行徜徉,給建筑內部帶來生機,并不斷提示著室外的自然存在。
大廳內部 ©蘇圣亮
自然光沿著各自的通道在建筑中穿行徜徉 ©蘇圣亮
工藝
檔案館的基本材料很簡單:灰磚、石材、玻璃、黑鋼、和木頭。外墻灰磚,樸素而敏感。我們可以在每塊磚上讀出它燒制成型的微妙過程;它從土地轉化而來,與山體之間帶著天然的血緣——我們在其他材料上找不到這個親密聯系。在設計的過程中,砌筑方式的變化,也使得“墻”的概念變得更為豐富,空間得以相互滲透。
轉角磚、鋼、玻璃 ©蘇圣亮
磚幕墻研究模型 ©Link-Arc
外立面上,除了平磚幕墻,兩種其他的磚墻肌理也出現在外立面上。突出磚的立面部分展現出更強烈的光影效果和立體感;鏤空磚幕墻使陽光投入室內,保持建筑的平整的外觀的同時,也讓室內擁有向外的視野。
六層辦公戶外平臺 ©蘇圣亮
六層辦公室內空間 ©蘇圣亮
天光樓梯一側的釉面磚采用了在火山巖上布置釉面,在景德鎮燒結而成,流淌在火山巖孔洞中的釉面每塊都有不同的肌理,而燒制的過程引入的手工痕跡,也更好地記錄了陽光在建筑外墻上的流動。這一切都讓建筑更好地與土地,與歷史,與工藝對話。
樓梯細部和室內釉面磚 ©蘇圣亮
手工釉面磚材料細部 ©蘇圣亮
項目圖紙
場地平面圖 ©Link-Arc
首層平面圖 ©Link-Arc
二層平面圖 ©Link-Arc
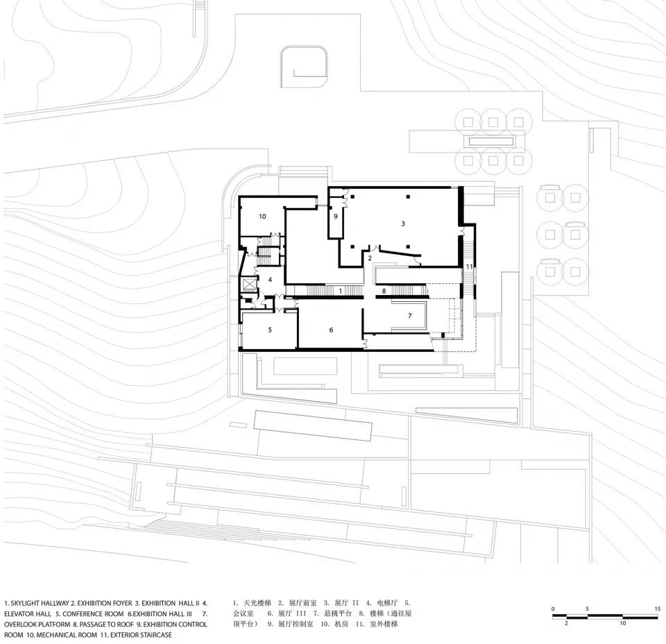
7層平面圖 ©Link-Arc
8層平面圖 ©Link-Arc
剖面圖 ©Link-Arc
項目名稱:華潤集團檔案館
設計方:紐約Link-Arc建筑事務所
項目設計 & 完成年份:2018
項目負責人:朱雯、黃敬驄
項目團隊:Hyunjoo Lee、 范抒寧、 Dongyul Kim、 李詩琪、 Alban Denic、 Yoko Fujita、 王笑石、Jean-Baptiste Simon、 胡辰、施苡竹
項目地址:惠州小徑灣,中國
建筑面積:9000 平方米
攝影版權:蘇圣亮
客戶:華潤集團
.END.
注:本文轉載自gooood谷德設計網,版權歸原作者所有。

