‘抽屜’住宅 / ppa + Emma Blanc Paysagiste
作者:建日筑聞 來源:建日筑聞
© Philippe Ruault
© Philippe Ruault
坐落于米雷(31圖盧茲)北部社區的Ma?mat 廣場,是在1960年盛行的“大型居民區”的模型基礎上設計的。停車區域和應對交通流量的道路用的是不可滲透的地面。大型的帶狀建筑立在基地外圍,將基地圍合住。在這個貧窮社區里,復合體中心的一個購物中心客流日益減少。
© Philippe Ruault
為了振興這個地區,Promologis提出了一個項目管理團隊與米雷鎮緊密合作的城市更新項目。從2011起,這個基地屬于一項“抽屜行動”中,通過拆除和重建使基地內的當地居民獲得新居。第一階段“南Ma?mat”在2014完成,而第二階段“北Ma?mat”在2018年末完成。
© Philippe Ruault
如今,整個項目被大型木質圍欄串聯起來,圍欄內有八棟住宅樓。南面的公共廣場容納了一個露天市場和一排共有產權房屋底層的商鋪。曾經完全內向封閉的基地,如今變得開放而可滲透。在居住區周圍的木質區域增加了這個新社區的認同感,就像一個木質的有人居住的景觀性公共公園。
© Philippe Ruault
© Philippe Ruault
南北軸上的一條步行小徑和自行車道重新建立了舊中心與北米雷的聯系。一條新道路讓人們可以東西向穿行,并合理地重新組織了從內部到社區外部的交通流線。
© Philippe Ruault
人行中央廣場有每周一次的集市,有商店以及許多協會組織在房屋底層的鋪面……一些能使這個居住區生氣勃勃的空間。這個建筑項目通過與外部建立一種和諧關系,并與自然緊密聯系,來試圖回應潛在購買者“對房屋的渴望”。
© Philippe Ruault
夢想中房屋的樣子總是與擁有一個陽臺、一個花園或是有能看見廣闊天空的視野從而與自然緊密接觸的渴望聯系在一起。帶有植被覆蓋的雙層高陽臺是此住宅的特色,使這個一層層疊加的住宅樓給人一種獨立房屋的感覺,創造了類似“樓中別墅”的樣式。
© Philippe Ruault
© Philippe Ruault
這個住宅集公寓的優點(實用,經濟,舒適)和獨立房屋的優點(內外空間連續性,寬敞專用的外部空間,與自然親密接觸……)于一體。
© Philippe Ruault
© Philippe Ruault
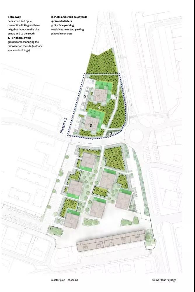
項目圖紙
項目區位
平面圖
立面圖
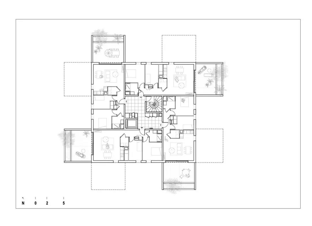
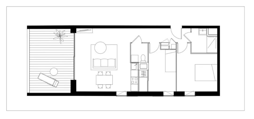
住宅平面圖
住宅剖面圖
分析圖
項目信息
建筑師:Emma Blanc Paysagiste、ppa architectures
地址:31600 Muret, 法國
竣工年份:2014(第一階段);2018(第二階段)
總用地面積:13,300 m2 (第一階段用地面積)/ 2,826 m2 (第二階段用地面積) / 5,000 m2 (公共廣場面積)
攝影師:Philippe Ruault、Airimage
.END.
注:本文轉載自建日筑聞,版權歸原作者所有。

