“北山棲鳶”- 深圳蓮花山頂公共衛生間,廣東
作者:gooood谷德設計網 來源:gooood谷德設計網
基地解讀
蓮花山頂公共衛生間升級項目位于蓮花山頂,深圳福田中心區中軸線上,南側為小平銅像廣場,西側臨金桂路,人流量較大。北側與建設中的蓮花山頂展廳相隔一座小山坡。東側植被茂密,景觀極佳。
▼東側鳥瞰
▼項目區位
蓮花山頂公共衛生間作為深圳蓮花山頂環境提升工程的重要組成部分,與展廳共同組成了山頂建筑群,為登山群眾提供觀展、休憩及如廁場所。蓮花山頂公共衛生間緊鄰小平像廣場,位置重要而特殊;高峰時期,山頂廣場單日游客量可達到五萬多人次,年游客總數達千萬人次,公共衛生間升級不僅要滿足大人流下的如廁需求,還被寄予了深圳“公廁革命”示范項目的期望,建成后的公共衛生間將以先進的設計理念、人性化的設計細節、最高的選配標準、最優的建設水平成為打造代表深圳城市形象的新名片。
▼蓮花山頂公共衛生間緊鄰小平像廣場,與展廳共同組成了山頂建筑群
▼建成后的公共衛生間成為打造代表深圳城市形象的新名片
場所營造
隱于山林
實現建筑與自然的和諧相融,是我們設計的首要原則。在總體布局上,建筑以休息長廊串聯南北兩翼的男女衛生間,打通金桂路一側廣場與東側山林的視覺通廊,東側主體以吊腳樓的方式輕輕落在山坡之上,恰似一只鳶鳥棲息在山林之間。
▼建筑以休息長廊串聯南北兩翼的男女衛生間,東側主體以吊腳樓的方式輕輕落在山坡之上,恰似一只鳶鳥棲息在山林之間
一軸兩翼
蓮花山山頂公共衛生間的主體功能由四部分組成,休息長廊與觀景平臺作為空間主軸串聯起北側的女衛生間、南側的男衛生間、中部的母嬰室、殘疾人衛生間及第三衛生間。休息長廊對整個建筑具有統領作用,既是動線主軸也是景觀主軸,兼有避雨及等候功能,沿南北主要景觀面設置有寬敞的休息長椅,同時還設有自動售賣機、手機充電插座、分類垃圾回收等便民設施。
▼休息長廊與觀景平臺作為空間主軸串聯起北側的女衛生間、南側的男衛生間、中部的母嬰室、殘疾人衛生間及第三衛生間
因借體宜
計成曾在【園冶】中提到,園林巧于因、借,精在體、宜。“因”者:隨基勢之高下,體形之端正,礙木刪椏,泉流石注,互相借資;宜亭斯亭,宜榭斯榭,不妨偏徑,頓置婉轉,斯謂“精而合宜”者也。“借”者:園雖別內外,得景則無拘遠近,晴巒聳秀,紺宇凌空,極目所至,俗則屏之,嘉則收之,不分町疃,盡為煙景,斯所謂“巧而得體”者也。
如何因借是我們在設計中反復思考的所在。以休息長廊主導的流動空間中,通過實墻、柱廊、穿孔板、格柵等不同界面的限定和引導,實現空間的延展和轉折、景致的層次和多變,從而獲得流暢豐富的感官體驗。
▼剖軸測-如何因借是設計中思考的重點
借景營園
休息長廊東西向布置,可充分釋放其觀景屬性。南向休息座椅正對小平像廣場及南側綠化小廣場,視野開闊;北向座椅的對景為北側小山丘,安靜宜人;座椅的朝向避開了西側人流較大的金桂路,東側在母嬰室和家庭衛生間門口設置休閑臺階等候區及觀景平臺,東側郁郁蔥蔥的山林與鱗次櫛比的城市遠景盡收眼底。男女廁所的內部設計同樣考慮了景觀的利用,如女廁的廁格排布充分考慮了使用人群的排隊習慣及心理需求,清晰便捷的同時也有景可賞。
▼景觀利用分析
▼建筑沿金桂路一側外觀
▼南向休息座椅正對小平像廣場及南側綠化小廣場,視野開闊
▼休息長廊起始處
▼休息長廊東西向布置,可充分釋放其觀景屬性
▼東側在母嬰室和家庭衛生間門口設置休閑臺階等候區及觀景平臺,東側郁郁蔥蔥的山林與鱗次櫛比的城市遠景盡收眼底
引景入室
基地不僅賦予建筑以強烈的“自然屬性”,同時也提供了將其自然屬性發揮到極致的有利條件:由于東側登山路標高較低,并無視線干擾,男女衛生間的主體空間均可靠東側布置并采用全開敞的處理,引景入室。居高遠望,山林近景及城市遠景如畫卷般180°徐徐展開,山海城融合的美景,令人身心放松,是山頂公衛的最奢華的配置。
▼建筑基底東側登山路標高較低,無視線干擾,提供了將其自然屬性發揮到極致的有利條件
▼男女衛生間的主體空間均靠東側布置并采用全開敞的處理,引景入室
▼洗手間內的景觀視野
公共與私密
開敞的布局和流動的空間也給設計提出了一大挑戰,即如何解決私密性與公眾性的矛盾。以男廁為例,私密性從強到弱依次為小便斗區、廁格區、洗手區,其中洗手區具有一定公共性,設計以千里江山圖、格柵、石材墻面依次遮擋,通過精準計算,剛好使得廁所內的私密區域避開了行人的視線。
同時,小便斗區域也避免了東側觀景平臺和南側山頂小平像廣場一側的視線干擾。在此基礎上以金屬網簾進行區隔遮擋,進一步增強了小便斗區域的私密性,體現細致入微的人性關懷。
▼視線遮擋分析
▼男廁入口-私密性從強到弱依次為小便斗區、廁格區、洗手區
▼洗手區具有一定公共性
▼男廁用金屬網簾進行區隔遮擋,進一步增強了私密性
高差與尺度
公廁主體較西側廣場標高下沉600-900mm,使其建筑體量于廣場一側獲得宜人尺度,通過吊頂與廁格的空隙將東側山林的綠意滲透進來,建筑以謙虛的姿態融入環境之中,成為自然的一部分。同時長廊與衛生間之間的高差也將公共區域與相對私密的男女廁所區域顯著區分出來,起到提示作用。
▼建筑尺度-建筑以謙虛的姿態融入環境之中,成為自然的一部分
▼高差處理-長廊與衛生間之間的高差也將公共區域與相對私密的男女廁所區域顯著區分出來
保留與重塑
在重塑場所景觀的過程中,基地上的雜木灌木被規整清理,樹徑較小的普通喬木被遷移至公園其他位置,三棵姿態優美的高大喬木得以保留。在這里,自然是空間的主角,樹與廊相依相生,一起見證光陰荏苒、歲月變遷。
▼在重塑場所景觀的過程中三棵姿態優美的高大喬木得以保留
▼保留樹木與休息長廊
人文提升
千里江山
公廁沿廣場一側人流較為密集,我們在此設置了兩列穿孔金屬板屏風作為保護私密性的視線屏障。同時,將北宋名畫《千里江山圖》以參數化的方式進行像素處理,對應穿孔板的孔洞排布,以藝術化的形式向市民重現這一千年名作的風采,賦予了休閑廣場濃厚的人文氣息。
▼明暗關系提取
▼參數化對應孔洞
▼男廁千里江山圖
▼女廁千里江山圖背面
▼女廁千里江山圖光影
▼女廁千里江山圖夜景
設施
在城市文明不斷進步的進程中,公廁的設計已由單一功能向藝術和服務綜合提升。新建公共衛生間面積約950平米,男廁布置有16個衛生潔具,女廁布置有25個衛生潔具,男女廁衛潔具比例達到2:3,極大的提高了高峰期服務能力,切實解決了女廁排隊等候時間過長的現實問題。
▼平面設施布置
與此同時,設計在細節方面也充分考慮了多種使用需求:部分男女衛生間廁格設有助老助孕設施和折疊嬰兒座椅,廁格外設有空置提示燈,除常規配置外,男女廁所內還設有吊扇、滅蚊燈、應急照明等設施。
母嬰室內設有純凈水機、溫奶器、護理臺、潔污分離雙水池、兒童安全座椅等,第三衛生間的布置考慮了父親帶女童、母親帶男童及成年子女照顧行動不便的父母等多層面家庭如廁需求。母嬰室、殘衛及第三衛生間采用平移式自動門,方便推嬰兒車、輪椅的人群使用。
▼殘疾人衛生間、第三衛生間入口空間-第三衛生間的布置考慮了父親帶女童、母親帶男童及成年子女照顧行動不便的父母等多層面家庭如廁需求
▼廁格外設有空置提示燈
▼母嬰室室內
夜間廁格內照明采用頂光結合U玻內壁燈的方式,照明設備選用4000k色溫,保證照度均勻充足的同時,給人以溫馨舒適之感。
▼保證照度均勻充足,給人以溫馨舒適之感
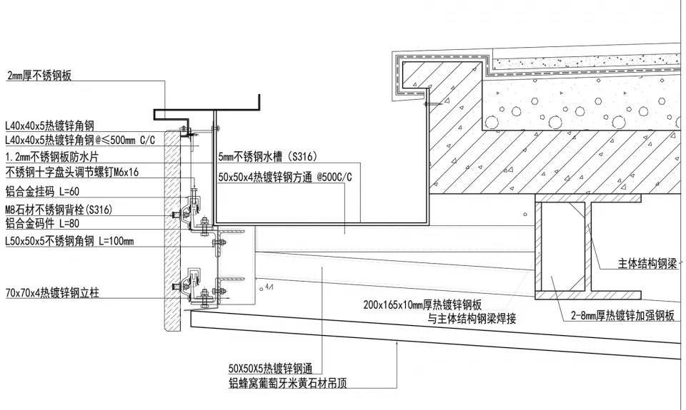
材料與建造
采用廁所主體的基礎部分為鋼筋混凝土結構,地上主體鋼結構,以盡量縮短工期;主體外墻采用葡萄牙米黃砂巖,休息長廊吊頂采用陽極氧化鋁板,男女衛生間吊頂采用石材蜂窩板。廁格采用耐久性較好的抗倍特板。公廁主體以吊腳樓的方式落柱于東側山坡上,將建設對基地環境的破壞降到最低。建筑采用雨水回收裝置等環保措施,提高水資源綜合利用水平。
▼結構分解圖
▼千里江山圖節點
休息長廊檐口:以陽極氧化鋁形成略帶反射、平整光潔的吊頂面,營造出微妙的光影效果和活潑生動的公共場所氛圍。
▼休息長廊檐口節點
衛生間檐口:以石材蜂窩板與檐口石材共同組成具有雕塑感的建筑檐口,石材蜂窩板吊頂與石材墻面渾然一體,仿佛整石雕琢而成。
▼衛生間檐口節點
▼休息長廊檐口及衛生間交接細部
生態措施
設計充分利用公廁位于山頂開闊地帶的地理優勢,實現最大程度的自然對流通風。通過平面均勻分布的開口設置,導入自然季風,通過屋頂下的遮陽空間的降溫,形成舒適的低溫氣流。即使在最悶熱的夏季,公廁及休息長廊內皆可保持舒爽的體感溫度。
▼通風分析
公共衛生間層高4.5米,上設天窗,室內空間高挑疏朗,明亮清爽,采光通風俱佳,解決了普通公廁陰暗潮濕、氣味難聞的問題。廁格采用落地設計,在馬桶后側的墻內設有排氣管井,可第一時間將廁格內的異味排除,保持整個公廁的空氣質量。在洗手池區域的墻體內設送風管井,鼓風機抽取新鮮空氣通過送風百葉吹干洗手池一側地面,避免地面濕滑,排除不安全因素。
▼公共衛生間層高4.5米,上設天窗,室內空間高挑疏朗,明亮清爽,采光通風俱佳
項目信息
項目地點: 廣東省深圳市福田區蓮花山頂
設計指導:肖誠
主創建筑師: 楊洋
設計團隊: 李文 何順鵬 莫穗聰 綦曉
總建筑面積:950平方米
設計時間: 2018年
竣工時間: 2019年
.END.
注:本文轉載自gooood谷德設計網,版權歸原作者所有。

