上海虹橋藝術中心
作者:建日筑聞 來源:建日筑聞
© 舒赫
© 舒赫
滬西新地標
天山電影院坐落于上海天山路,曾是滬西最為知名的影院之一,但隨著上海新虹橋地區的飛速發展,如今的天山路已然發展成一條繁華的商業街,老舊的天山影院與其周邊林立的現代建筑、商場未免略顯不合。
© 舒赫
© 舒赫
© 舒赫
© 舒赫
因此,長寧區政府決定對這一國營影院展開一次改擴建,并更名為上海虹橋藝術中心。經三輪歷時五年的設計招投標競賽,BAU最終勝出,并獲得了上海天山電影院改擴建設計合同。
© 舒赫
© 舒赫
© 舒赫
功能多元化
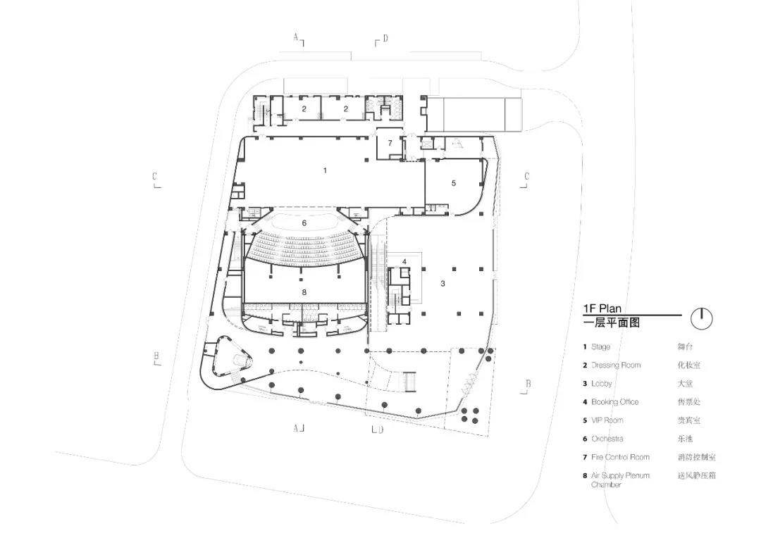
改擴建后的天山電影院更名為虹橋藝術中心,不僅擁有了七間不同體量的電影放映廳,同時也包含了一間1000座的中型劇場。由于電影院和劇院有著不同的觀眾群,通常被視作兩類不同的文化娛樂場所而獨立建設。
分析圖
© 舒赫
© 舒赫
© 舒赫
© 舒赫
© 舒赫
而本項目則通過公共大堂區域將兩大功能相互銜接,并在劇院和電影院之間打造出一大過渡空間,不僅確保了兩大功能區各自的特色,也促進了影視與表演藝術的交融,吸引不同的觀眾群。
© 舒赫
© 舒赫
不同元素的融合
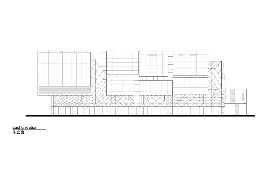
為了能夠更加清晰地表現出劇院及電影院兩大功能,BAU在外立面設計上采用了兩種截然不同效果的立面材料——傳統的劇院采用了傳統的石料,宛如整塊巨石,下方由圓柱及大堂的旋轉樓梯支撐;而現代化的電影放映廳則采用了極具現代風的金屬板外立面,猶如一個個金屬盒,相互堆疊,最大的放映廳則架設于街角。
分析圖
© 舒赫
© 舒赫
© 舒赫
© 舒赫
© 舒赫
室內公共大堂內安設了售票處、咖啡館、臨時展場、活動展區等設施,游客可在小憩的同時,眺望繁華的室外廣場及街景。(本項目的景觀也是由BAU所設計)
© 舒赫
© 舒赫
© 舒赫
© 舒赫
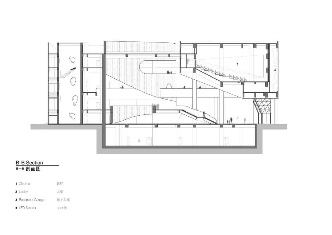
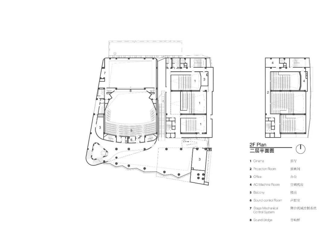
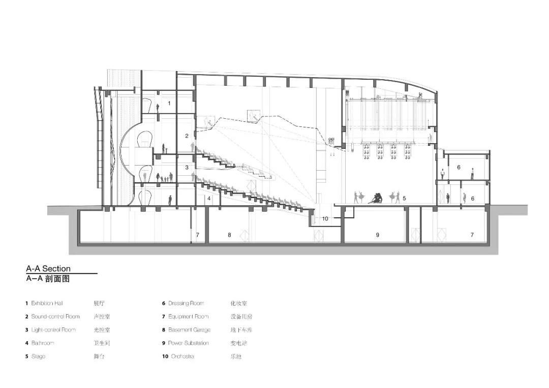
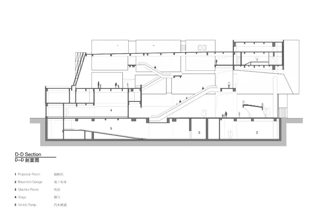
項目圖紙
總平面圖
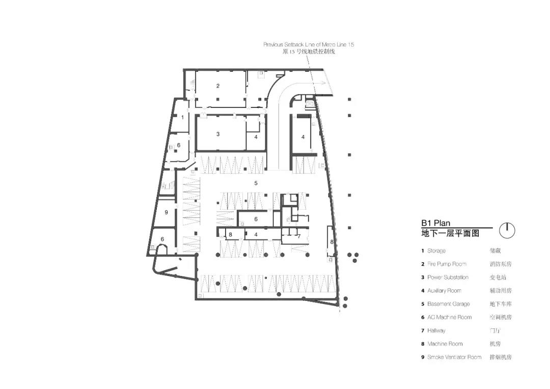
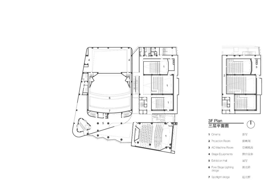
平面圖
立面圖
剖面圖
項目信息
建筑單位:BAU建筑事務所
地點:中國上海長寧區天山路888號
項目年份:2006-2016,2016年竣工
建筑面積:14,300平方米
類型:公共劇場+電影院綜合體
BAU項目組成員:
建筑組:JamesBrearley,Steve Whitford,蔣涵,羅懷利,劉帥,宋慧,楊慶安,夏文,EmmaRytoft,榮昱,李福明
景觀組:RobinArmstrong,羅莉,梁永勤,程琪
.END.
注:本文轉載自建日筑聞,版權歸原作者所有。

