戴森工程技術學院
作者:建日筑聞 來源:建日筑聞
© Peter Landers
WilkinsonEyre完成了為戴森工程技術學院設計的本科生社區。這個由木制模塊化房屋組成的景觀社區擁有一些公共設施和一個交流學習中心,它位于Wiltshire的戴森Malmesbury校園內。除了建立一種新型學生宿舍,該項目在設計、總體規劃和工程方面取得了突破,實現了能夠快速施工的真正模塊化預制建筑技術。
© Peter Landers
© Peter Landers
© Peter Landers
戴森工程技術學院引領了一種將高等教育校園融入到商業、研究和發展背景中的新型學習模式。在這個社區里,新一代工程專業的學生將生活在那里,他們與戴森全球工程團隊一起工作、學習,最終拿到工程學位。在材料和建設方面的開拓性方法,以及對學生幸福感的新思考,呼應了貫穿整個校園的創新精神。
© Peter Landers
© Peter Landers
© Peter Landers
該社區可容納50名戴森工程技術學院的學生和訪問戴森的工作人員。高品質的生活艙是由一家工廠的交叉層壓木材(CLT)制造的,實現了快速現場組裝。這些艙體以單元的形式被布置,兩到三層樓高,它們創造了一個受歡迎的社交空間,為這個位于工業建筑旁邊的校園增添了一道引人注目的風景。
© Peter Landers
© Peter Landers
一些群組中包括了懸挑高達3米的艙體,這充分利用了CLT的結構特性。這些艙體在設計時也考慮了CLT的聚熱能力,它們為學生提供了高質量且節能的生活空間。在美學方面,艙體的內部空間由木材裝飾,包括廚房和浴室,它們創造出溫暖自然的生活環境。
© Peter Landers
© Peter Landers
幸福感是設計的一個主要考慮因素,每個艙體都能實現自然通風,且擁有大面積三層玻璃窗,每個窗戶的角度都是精心設計,以保證居住著擁有開闊的視野。艙體外部覆蓋有鋁制雨幕板,根據其在每個單元內的位置,設置了植物覆蓋的屋頂。
© Peter Landers
© Peter Landers
© Peter Landers
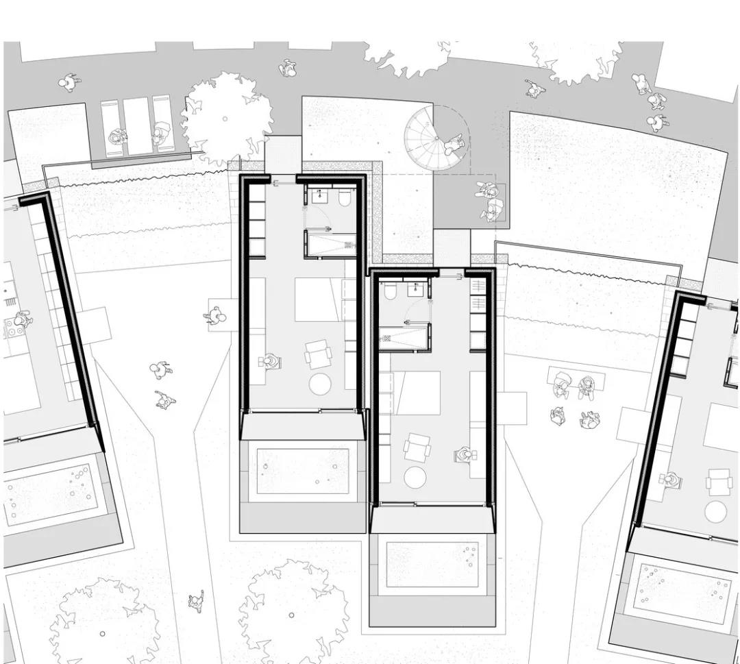
每個艙體的尺寸為8米x 4米,它具有開放式平面,包括一個入口區、與之相鄰的淋浴間和衛生間、一個中央臥室區域和一個工作/生活空間,這種布局是為了得到充足的天然光。艙體是在場外預制的,在被運輸到現場之前,每個單元都已完成組裝,包括定制家具和內置存儲。
© Peter Landers
© Peter Landers
© Peter Landers
在新月形場地內,這些艙體沿著周圍景觀路堤的曲線,以各種群組形式排列。每個群組最多由六個單元組成,包括一個位于中間入口層的共享廚房和洗衣房,以及一個帶有接待和存儲的入口區域。為了營造學生社區的感覺,每個艙體都擁有獨立前門,較低的艙體通向景觀花園,較高的艙體則通向蜿蜒的地面坡道和通往樓上的樓梯。
© Peter Landers
© Peter Landers
© Peter Landers
動感的艙體組織為社區增添了一種非正式居住特征。綠色空間和道路規劃了居住者在社區中的移動路線,連接了居住區和位于中心的社區俱樂部(稱為Roundhouse)。
© Peter Landers
項目圖紙
平面圖
單元平面圖
立面圖
剖面圖
局部剖面圖
項目信息
建筑師:WilkinsonEyre
地址:Malmesbury, 英國
主創建筑師:WilkinsonEyre
項目年份:2019
室內建筑面積:單元倉面積:26平方米,總面積1,612平方米
內外建筑面積:roundhouse 1,060平方米,屋頂 200平方米,艙體32平方米
.END.
注:本文轉載自建日筑聞,版權歸原作者所有。

