斯蒂文?霍爾“盒中樂器”方案贏得捷克音樂廳競賽
作者:建日筑聞 來源:建日筑聞
© Steven Holl Architects
斯蒂文?霍爾建筑師事務所和Architecture Acts贏得了捷克共和國奧斯特拉瓦音樂廳設計的國際競賽。該方案獲得了七人評審團中的六人支持,擁有1300個座位,緊鄰現有的文化之家,被設計為“一個完美的聲學樂器”。
© Steven Holl Architects
這座新建筑是與Nagata聲學公司合作設計的,將為該國領先的當代管弦樂團Janacek愛樂樂團提供演出空間。該設計通過將主廳靠近建筑后部的現有公園來屏蔽城市交通噪音,而長廊上的新入口可以上升至現有中心的頂部。新舊之間戲劇性的對比為這座城市創造了一個文化地標。
© Steven Holl Architects
© Steven Holl Architects
建筑就像一個光滑的鋅盒子里裝著由混凝土和楓木制成的“儀器”,其平面為擴展的葡萄園式平面。該設計受到捷克作曲家Leos Janackek的影響,他的時間理論指導并賦予了內部幾何學的秩序。隔音墻板有三種類型:“Znici”、“Scitaci”和“Scelovac”。
© Steven Holl Architects
© Steven Holl Architects
該方案預計將于2023年開始實施。
© Steven Holl Architects
項目圖紙
場地平面圖
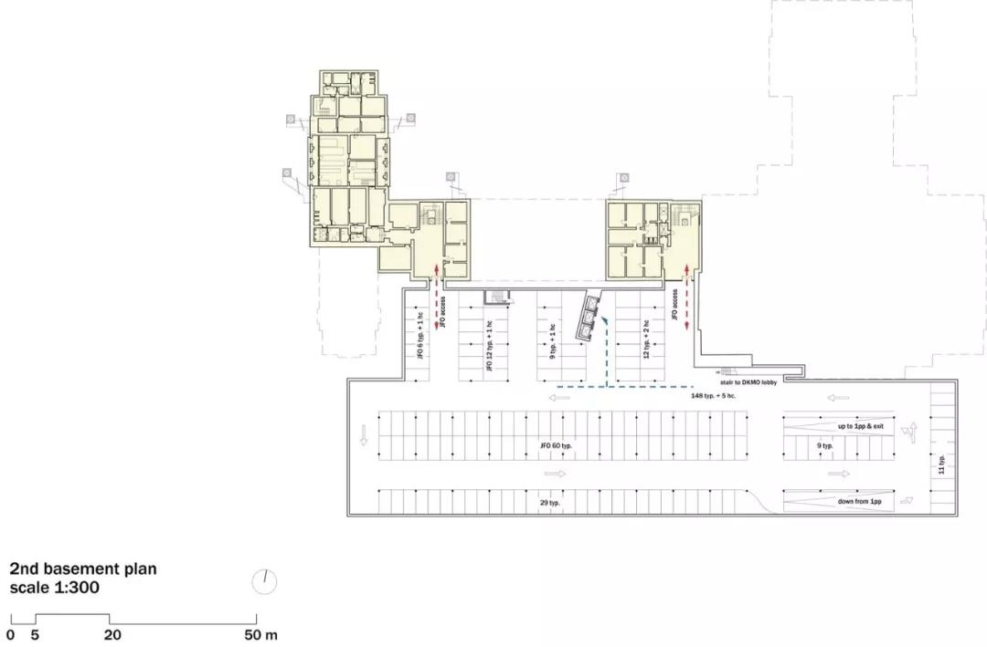
負二層平面圖
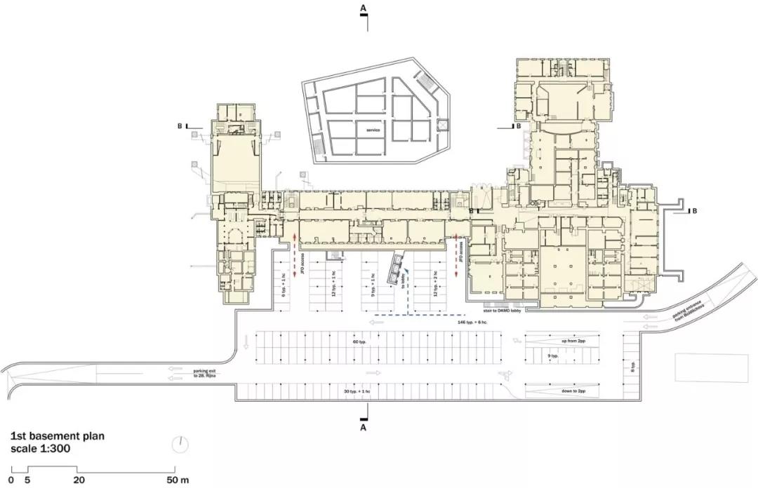
負一層平面圖
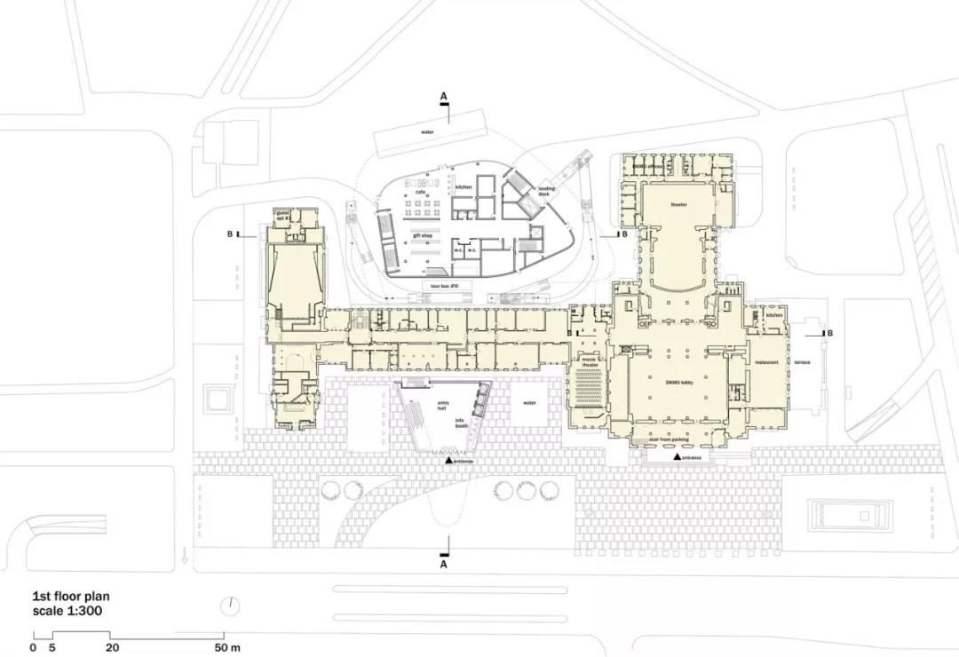
一層平面圖
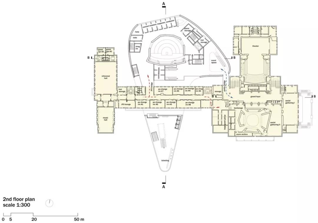
二層平面圖
三層平面圖
四層平面圖
立面圖
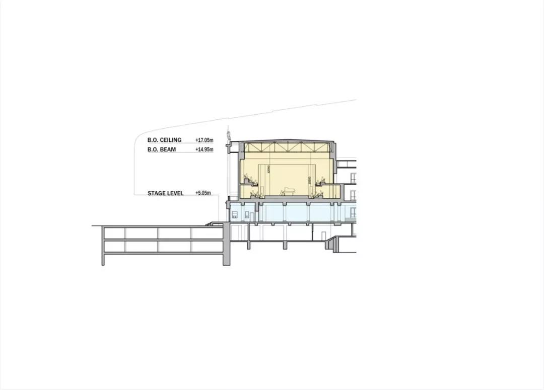
剖面圖
分析圖
模型圖
草圖
.END.
注:本文轉載自建日筑聞,版權歸原作者所有。

