錯動的平衡 - 開化縣1101工程及城市檔案館,浙江
作者:gooood谷德設計網 來源:gooood谷德設計網
該項目是受開化縣城市建設發展有限公司委托,在景區入口處設計一處城市檔案館和人防指揮中心及住建局三大功能要求的綜合辦公樓。項目地理位置優越,南側現狀為多層排屋,北側為植被豐富的低矮山體,東側山谷腹地幽靜而深遠,西側距離錢江源頭芹江江畔僅幾步之遙,登上山頭便可遠觀江水。
在如同陶淵明的《桃花源記》中記載一般的青山綠水之間建造一座兼具開放的參觀功能和私密的隱蔽工程的較大體量的多功能多流線的多層建筑,并充分尊重原有地形地貌,是這一項目的挑戰之處。
▼項目鳥瞰圖,東南向航拍
設計首先將人流密集的城市檔案館置于底層與半地下室;再將食堂置于二層靠近西側道路處,將人防指揮中心布置在二層靠近山谷腹地處,利用折板將下兩層體量隱于山體之中;最后,將住建局辦公置于折板之上,通過懸挑等手法使建筑有一種于山體之上的視覺效果,最大程度的利用景觀資源。建筑主要的辦公部分功能采用一個漂浮在折板平臺上三層高的長方體盒子,純粹而簡潔的形體順應南側折板平臺走勢,并與北側山體等高線平行布置;同時,盒子在東側懸挑于三層以外約12米,使盒子與下部折板平臺形成了在錯動中取得平衡的一種形體組合。
▼形體生成
▼項目鳥瞰圖,西南向航拍
建筑采用黑白灰色系以體現開化山水城市及中國山水畫卷中的具有人文意境的建筑色調,待山中云霧繚繞時,建筑的基座消隱在山中,上部灰白色的盒子猶如漂浮在山中,同時站在不同的平臺上觀遠處山景和江景,形成了一幅建筑與周邊山體和天空融為一體的感覺。
極簡潔的建筑形體線條融合著虛與實,光與影的變換,設計既成功地解決了包括城市檔案館、人防指揮中心、辦公等諸多功能空間,又和諧地呼應著周圍的山勢,體現了人與自然和諧共處的建筑設計思想。
▼項目外觀,折板與盒子在錯動中取得平衡
基地內有一條小路連通北側山體做為人們日常上下山的通道,設計為了充分尊重現狀場地和諸多外圍的景觀資源,提出了不同標高平臺的解決方案。即將人流量較為密集的城市檔案館分布在底部一層,通過坡道與樓梯等連接不同標高的平臺,猶如北側山體等高線的延續,使下部建筑與山體自然融為一體。這不僅恢復了原有上下山通道,同時多標高平臺又成為當地市民和使用者駐足觀賞周邊風景的理想場所。
▼項目外觀局部,設置不同標高的平臺,上部三層盒子灰白色的仿石材拉毛多彩真石漆墻壁中嵌著極細的深灰色窗框
▼一層平臺處建筑形體關系
▼二層平臺處建筑與山體的關系,通過樓梯與三層平臺相連
▼二層平臺局部,下山通道通過樓梯連接到各層平臺
▼三層平臺處建筑與周邊環境的關系
▼層層退讓平臺
▼建筑外觀局部,依山就勢
▼建筑外觀局部,一條小路連通北側山體,作為人們日常上下山的通道
東西端的框景窗洞是典型又非常有效地取景手段,上部三層盒子灰白色的仿石材拉毛多彩真石漆墻壁中嵌著極細的深灰色窗框,透明度極好的玻璃窗戶如同取景框一般,把山谷入口最美的部分作為一副永不褪色的畫卷,嵌入了建筑之中。至此之后,冬去春來,云卷云舒,草木凋零又蔥蔥。人們身處穩定舒適的建筑物內部,卻又無距離感地享受外部的自然美景,形成了一種建筑內外的空間連續性。
▼建筑西立面外觀,與東側山體呈現出高低錯落關系,東立面采用框景窗洞
▼建筑東立面外觀局部,上層的盒子懸挑于三層以外約12米
▼建筑東立面局部,橫向與豎向形體穿插
▼建筑東北側外觀局部
▼與自然對話
項目使用至今已經兩年有余,每次回到基地現場置身在建筑的每個平臺和外圍的山體小路上,越發的能感受到建筑與環境已漸漸的融為了一體,人們越來越喜歡在這里工作和交流,這也許是我們最初設計理念最有意義的價值體現。
▼從樓梯空間仰望
▼建筑夜景外觀
▼建筑主入口夜景,設有水平舒展的折板基座
▼一層平臺夜景
▼項目模型照片
項目圖紙
▼一層平面圖
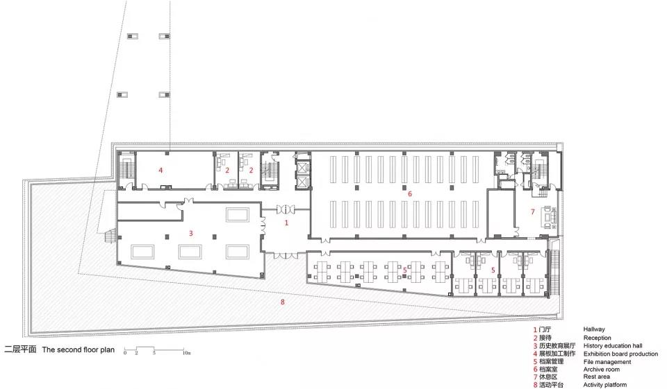
▼二層平面圖
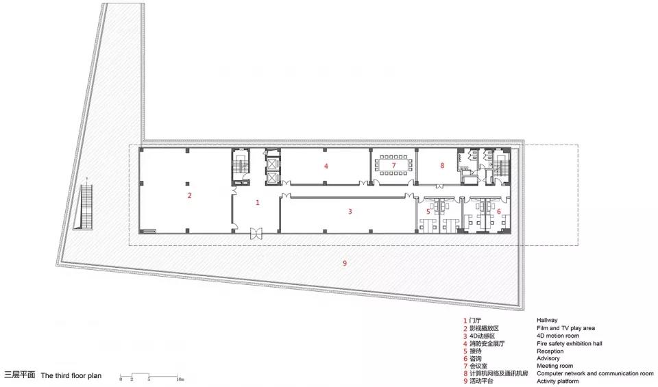
▼三層平面圖
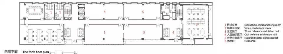
▼四層平面圖
▼五層平面圖
▼屋頂平面圖
▼立面圖1
▼立面圖2
▼1-1剖面圖
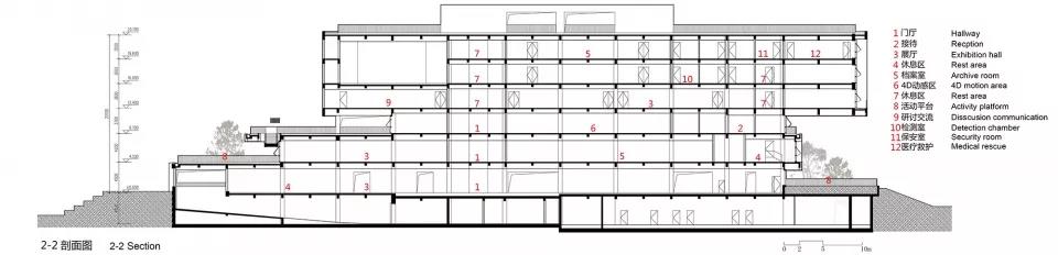
▼2-2剖面圖
項目名稱:開化縣1101工程及城市檔案館
設計單位:浙江大學建筑設計研究院有限公司
設計師:范須壯、朱愷、施明化
項目地點:浙江省衢州市開化縣鳳凰中路
項目類型:檔案館、辦公
用地面積:7118平方米
項目面積:12206平方米
.END.
注:本文轉載自gooood谷德設計網,版權歸原作者所有。

