車輛的容器 - 道峰山停車樓,首爾
作者:gooood谷德設計網 來源:gooood谷德設計網
道峰山停車樓最初由首爾市政府規劃,是首爾和議政府這兩大都市交界處的新交通系統的一部分。同時,作為本項目的客戶,首爾大都會基礎設施總部(Seoul Metropolitan Infrastructure Headquarters)希望在本項目中額外設置一系列包括咖啡廳和休息空間等在內的公共設施。
這種功能性的需求使得設計團隊不得不從一個全新的角度來構思和設計這座停車樓。因此,本項目不再僅僅是一個將通勤者與交通聯系起來的結構,更是一個將人與人彼此聯系起來的場所和城市環境。
▼停車樓遠景鳥瞰圖
在本項目中,設計團隊通過重新構思建筑圍護結構的性能,從根本上重新構建出一座停車樓??紤]到傳統停車樓中存在的主要問題之一——都是一個單獨的巨大體量,道峰山中心停車樓的設計團隊提出了一個具有創新性的設計概念,即在建筑的外圍護結構中插入一系列彼此分離的金屬帶。
這七個金屬帶彼此配合,共同組成了停車樓的外表皮,并在視覺上創造出一種與城市環境相關聯的建筑語匯,更避免了停車樓的巨大體量在城市環境中造成的支配感。值得一提的是,根據材料在自然通風和透光等方面的性能,設計團隊最終選擇了半透明的玻璃板、穿孔金屬板和金屬百葉這三種可滲透材料來打造上文所提到的金屬帶。
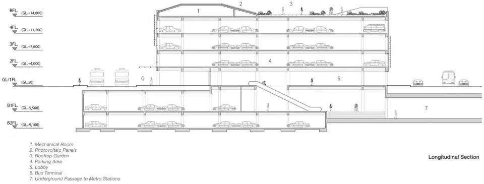
▼停車樓局部剖******及其空間細節
▼停車樓爆炸軸測圖及其表皮細節
▼停車樓近景鳥瞰圖
▼停車樓外觀遠景
▼停車樓外觀,在建筑的外圍護結構中插入一系列彼此分離的金屬帶
▼停車樓外觀局部
▼停車樓外表皮,在視覺上創造出一種與城市環境相關聯的建筑語匯
▼停車樓外表皮局部,彼此分離的金屬穿孔板和金屬百葉構建出建筑一側的外表皮
▼停車樓外表皮細節,金屬穿孔板和金屬百葉有助于通風和采光
▼停車樓外表皮局部,半透明的玻璃板、穿孔金屬板和金屬百葉這三種可滲透材料單獨出現或兩兩組合
▼停車樓內部,半透明玻璃板與穿孔板交替出現
▼停車樓內部
▼停車樓內部的光影效果
通過設計建筑的屋頂空間,“將停車樓作為一個公共空間”這一本項目的主要設計概念得以實現。在屋頂空間中,外表皮的金屬帶變成了一個人造的景觀,創造出一個公共花園和廣場。由傾斜屋頂打造而成的人造地形則在建筑與道峰山景觀之間構建出一種視覺聯系和體驗式對話。
▼屋頂平面圖
▼屋頂的公共空間,傾斜的屋頂與道峰山的周邊景觀形成視覺聯系
總而言之,本項目成功地向人們展示了一種新型的停車樓結構。它向大眾證明了停車樓不僅僅是車輛的儲存容器,更是一個城市社區空間和新人際關系的發源地。
▼停車樓夜景鳥瞰圖
▼停車樓夜景外觀
▼停車樓局部外觀夜景
項目圖紙
▼區位分析
▼總平面圖
▼平面圖
▼剖面圖
.END.
注:本文轉載自gooood谷德設計網,版權歸原作者所有。

