vivo總部,聚集現代城市功能四要素
作者:建日筑聞 來源:建日筑聞
© vivo
園區主入口 ©王洪躍
vivo公司的新總部建于東莞市長安鎮的工業區,距原來的總部約3公里。不成文的,長安被一條公路一分為二,南側是工業區,北側為生活區。在城市面貌上,二者呈現出極大的反差。在工業區舊的、紛亂的、不那么讓人喜歡的表象下面,卻潛藏著巨大的活力。
©王洪躍
vivo新總部包括主辦公樓、實驗樓、綜合樓、3棟塔樓公寓、接待中心和2棟停車樓等9棟建筑。中國建筑設計研究院有限公司負責了全部建筑設計和景觀設計。
© vivo
接待中心及主辦公樓 ©王洪躍
從辦公樓大堂看綜合樓 ©王洪躍
在園區中,我們設計了一系列完整、純粹的幾何形體和空間,通過一套連廊系統將它們有機的連為一體,塑造了豐富的庭院、廣場、露臺、公園……
空中連廊 ©王洪躍
空中連廊 ©王洪躍
與一般的工業園或科技園區不同,vivo新總部是一個承載一部分人幾乎全部生活的場所。《雅典憲章》提出的現代城市功能四要素——“工作,居住,游憩,交通”,都包含在園區之內。
綜合樓西側籃球廣場 ©王洪躍
項目從設計伊始到落地建成歷時6年,歷經無數次討論,而幾乎每一次討論都會圍繞著或松或緊的效率和便利性、舒適度、美觀、空間張力等方面權衡取舍,都在試圖讓設計無限地貼近生活。
從綜合樓看公寓區 ©王洪躍
為了適應廣東陽光強烈、多雨的氣候特點,我們采用一套連廊體系將全部建筑聯系起來,在頂部種植綠化,除了遮陽擋雨,又創造了一個立體的線性公園。
從波浪庭院看實驗樓 ©王洪躍
上班、下班、一日三餐、交流、辦公、運動、會議、聚會、生產、貨運、人行與車行……,園區類似一個小小的城市,需要理順數十條交通流線,也是在梳理更多種生活的可能性,做到宏觀統籌和精細化設計相結合。
總平面圖
簡潔而優雅的橢圓形主樓圍繞一個巨大的綠化庭院建造,營造出一種強烈的中心性和凝聚力,在主樓內環,使用者可以清晰的感受到彼此,進而感受到一種活力,促進人們交流與合作。
© vivo
©王洪躍
辦公樓東北側 ©王洪躍
辦公樓中庭 ©王洪躍
辦公樓中庭 ©李淼
辦公樓頂層內環廊 ©李淼
辦公樓大堂 ©王洪躍
綜合樓的方形中心庭院是一個極具舞臺現場感的場所,人們在這里匯聚、停留、休憩、甚至表演……
© vivo
©王洪躍
綜合樓 ©王洪躍
綜合樓及連廊 ©王洪躍
綜合樓北側 ©王洪躍
綜合樓內庭院 ©王洪躍
綜合樓內庭院 ©王洪躍
綜合樓內庭院 ©王洪躍
職員餐廳室內 ©王洪躍
辦公樓室內水吧 ©王洪躍
在園區的中軸線上,是一系列豐富有趣的景觀廣場和連廊,直至盡端的vivo park,多彩的植被,和緩的流水,構成了優美的園區環境。
辦公樓內庭院 ©王洪躍
白色金屬穿孔板與清水混凝土 ©王洪躍
這一系列空間場所共同組織成一個系統,它們各自獨立,相互呼應,各具性格,具有豐富而有清晰的秩序感、富于張力的節奏感、以及可以被多層次、多角度感知和解讀的空間透明性。
從綜合樓透過金屬穿孔板看辦公樓 ©李淼
白色金屬穿孔板與清水混凝土 ©李淼
項目圖紙
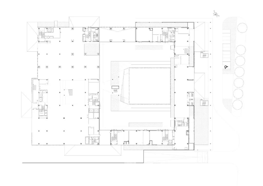
辦公樓首層平面圖
辦公樓立面圖
辦公樓剖面圖
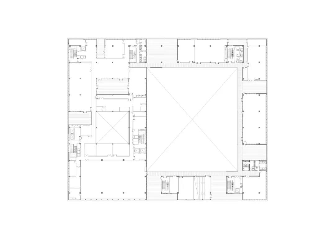
綜合樓首層平面圖
綜合樓三層平面圖
綜合樓立面圖
綜合樓剖面圖
綜合樓剖面圖
項目信息
建筑師:中國建筑設計研究院
地址:濱海新區,長安鎮,東莞市,廣東省,中國
主創建筑師:徐磊,李淼
項目經理:席志剛
建筑設計團隊:孟海港,朱吟,孫婧,張華
建筑面積:189000.0 m2
項目年份:2019
.END.
注:本文轉載自建日筑聞,版權歸原作者所有。

