廣州白云國際機場綜合信息大樓
作者:建日筑聞 來源:建日筑聞
© 馮蔚
廣州白云國際機場是中國三大樞紐機場之一,為滿足持續、快速增長的航空業務量和未來信息化發展的需求,在機場工作區新建綜合信息樓,助力于加強機場整體把控,統籌運行資源,有效實現全區域、全流程一體化管理。
© 馮蔚
從空中俯瞰機場,綜合信息樓順應整體片區肌理,與周邊環境融為一體,消隱在一片井然有序之中。從市區前往航站樓,機場大道沿途建筑保持統一序列感,與林木交織掩映,綜合信息樓和而不同,協調又賦有特色。
U 型體量分析圖
真正的創意,并不是為了標新立異而表現出與眾不同,創意是基于對設計問題的完全了解。在對白云國際機場進行了全方位的調研之后,將所有情況進行梳理,歸納出城市關系、立面形象、功能組合三大核心問題。我們期望,站在未來某個時間節點回望現在,綜合信息樓能如吉奧·龐蒂所說的那樣:“建筑之所以留存下來,因為它是藝術,因為它超越實用”。
© 馮蔚
城市關系 / 與機場對話:設計建筑從城市設計入手
白云國際機場以航站樓為中心分為南北兩大工作區,綜合信息樓位于南區,靠近廣州主城,且與機場大道僅一條綠化帶之隔。從城市角度審視,面對先有機場工作區后新增綜合信息樓的命題,確立了其服從片區、協調周邊的角色定位。
© 馮蔚
空間塑造
圍合而筑、肌理融合建筑布局采用開口朝東的U型圍合,既保證了臨街建筑群西側展示面的連續性和完整性,又能與東側公安指揮中心辦公樓的反向圍合形成良好的對話關系;與此同時,兩者環抱出開敞的內部景觀庭院,為辦公人員提供了一處靜謐、舒適的休息場所。
© 馮蔚
界面塑造
局部協調、呼應周邊在U型圍合的基礎之上,為了與南側已建辦公樓共同形成統一、連續的界面形象,先將綜合信息樓南翼局部降低一層,形成高度的統一與過度;再將西側立面局部突出,并采用相近的造型肌理,達成形式上的協調;最后在西北角營造標志性廊架空間,強調主入口昭示性,同時成為沿街展示界面的點睛之筆。
© 馮蔚
立面形象 / 與藍天對話:數字化的信息云端
追根溯源,廣州白云國際機場得名于南粵名山之一,自古就有“羊城第一秀”之稱的白云山。在立面構思中,秉持一脈相承的策略,自然聯想到將白云與科技相結合,讓綜合信息樓與時代共呼吸的美好愿景。因此,確立了“數字科技、信息云端”的設計理念,也借此與藍天呼應,契合機場藍天白云的印象特征。
立面拆解
整體造型把控,通過銀白色豎向桿件形成整體感和科技感,凹凸的形體變化塑造更具立體感的白云形象,多層次幕墻體系豐富立面細節。以通透玻璃面構成建筑的皮膚,滿足維護、采光、通風等基本需求;再以序列桿件形成高低起伏的流動界面,仿如穿上一件時尚的衣裳,行云流水之間,展現出信息云端的科技氣質。
© 馮蔚
在時尚衣裳的編織中,對不同方位桿件的深度及間隙因需制宜、精細控制,賦予其功能屬性。西側加大深度,降低西曬,提高能效;機房處適當加密,避免陽光直射,營造陰涼的室內溫感;值班用房外延續韻律,保障充足采光及舒適的觀景視野。因項目處于飛行可視區,故將第五立面也納入重點,進行一體化打造。內庭院地景融入“數字雨”概念,營造出科技與自然交織的情境,置身其中,感受自然與科技的雙重洗禮。
© 馮蔚
功能組合 / 與功能對話:高效運轉的最強大腦
作為白云國際機場的“幕后總指揮”,功能組織的重要性不言而喻。采用“人機分離”的策略,將人活動的空間與機房設備空間動靜分離;同時憑借方正的平面布局,保證空間使用效率的最大化。
© 馮蔚
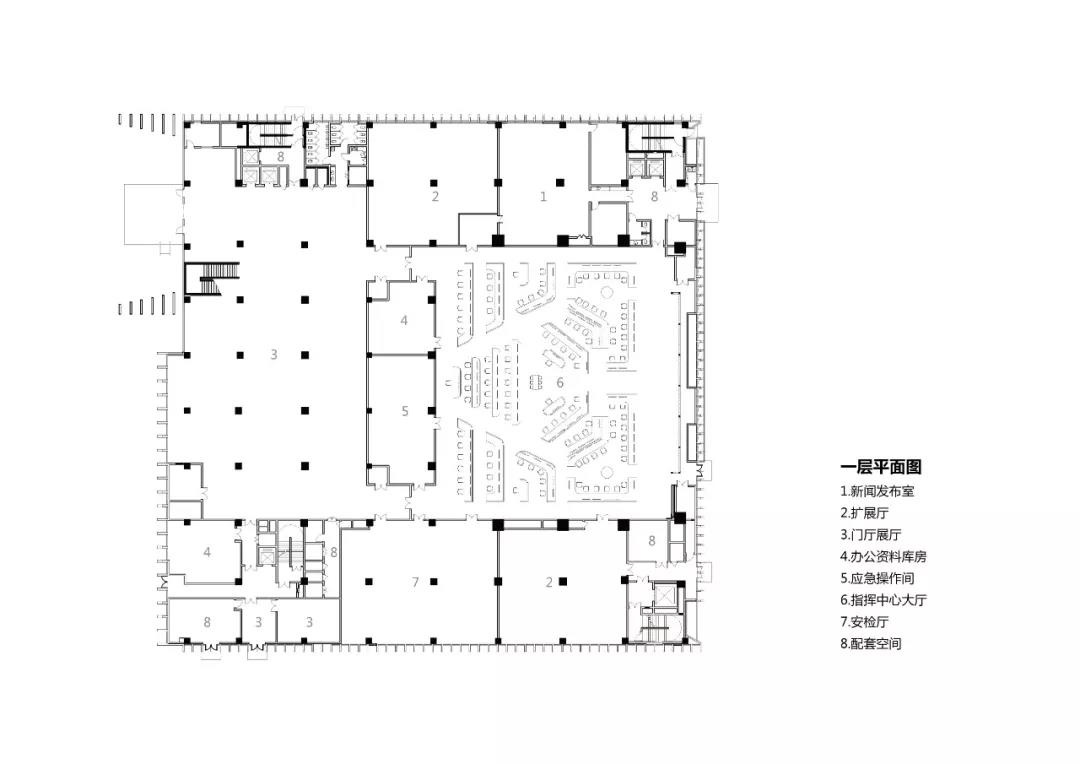
將各種功能空間進行歸納、整合,形成5大功能體塊:運行控制中心、展示大廳等大空間用房設置于底層,其屋頂作為景觀內庭院,為辦公人員提供舒適的休憩場所;信息技術處理等相關數據機房設置于南樓,集約高效;值班用房等人流較多的功能空間設置于北樓,具有更好的城市觀景面;南北樓之間通過辦公室、會議室、新聞發布室等輔助空間相連,方便到達;頂層則設置為使用頻率較低的檔案室,滿足功能需求。運行控制大廳作為綜合信息樓的核心,將外立面的設計母題引入室內,通過連續云型燈帶營造出“信息云端”的科技氛圍。
© 馮蔚
© 馮蔚
好的設計只是一座建筑生命的起點,項目引入BIM技術,對設計、施工、運營、維護進行全生命周期化管理,使其任憑時間歷練,始終煥發出屬于自己的流光溢彩。
© 馮蔚
© 馮蔚
項目圖紙
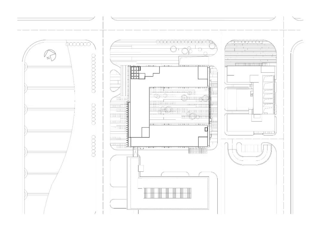
總平面圖
一層平面圖
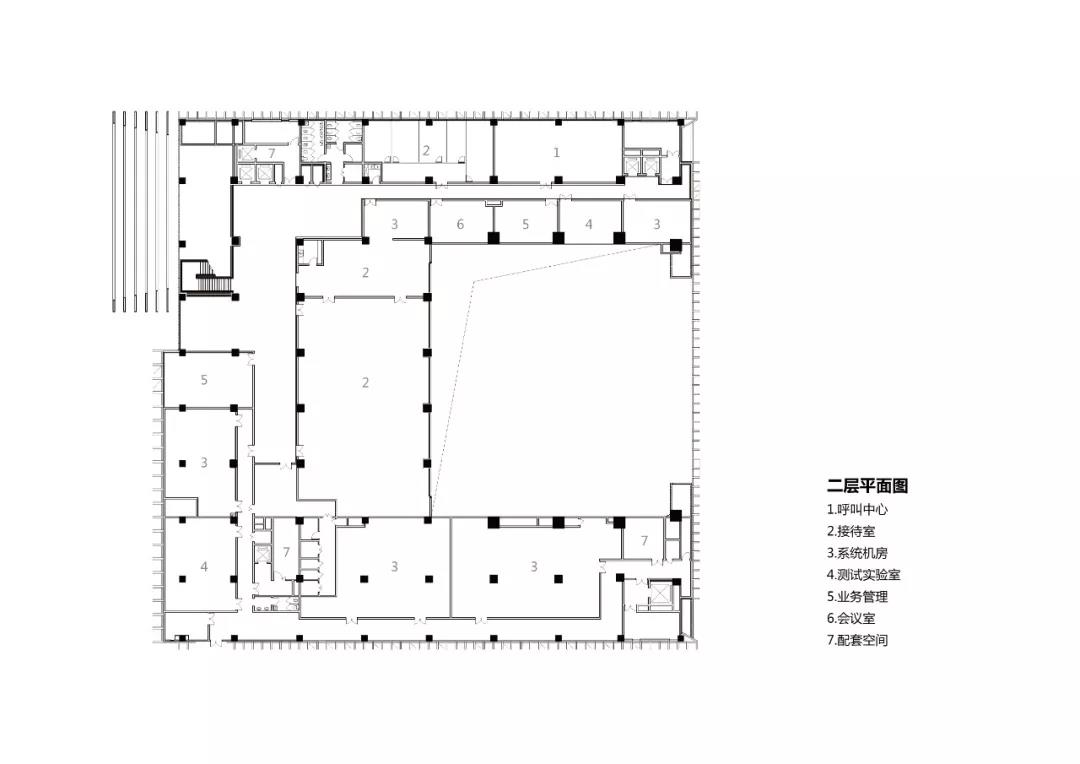
二層平面圖
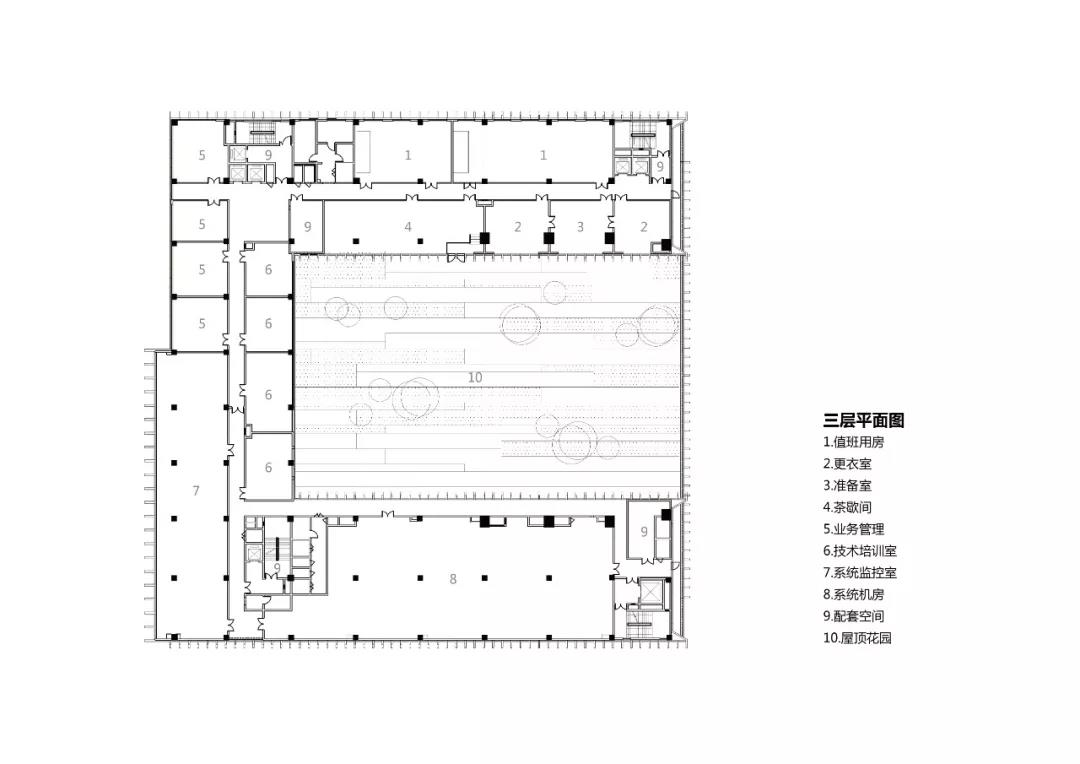
三層平面圖
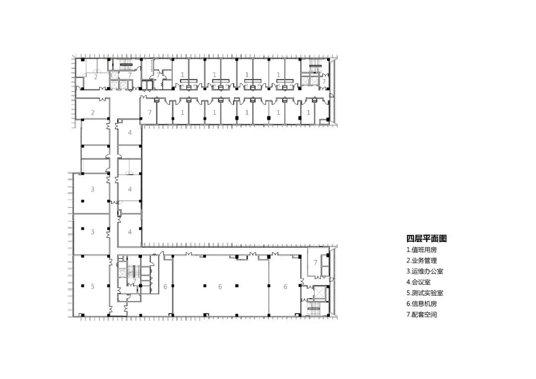
四層平面圖
剖面圖
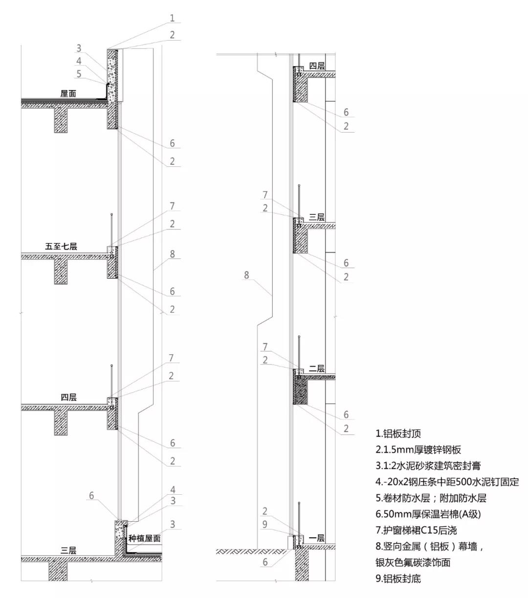
大樣
項目信息
建筑師:武漢中合元創建筑設計股份
地址:白云國際機場東南工作區,廣州市,中國
主創設計師:晏曉波
設計指導:侯進
設計團隊:羅婷婷、夏琰、熊炳寧、楊璐、李喆、吳文卉
建筑面積:32710.0 平方米
項目年份:2017
攝影師:馮蔚
.END.
注:本文轉載自建日筑聞,版權歸原作者所有。

