書之庭園 - 景山學校圖書館改造,北京
作者:gooood谷德設計網 來源:gooood谷德設計網
圖書館位于景山學校主教學樓內部,被走廊環繞。原為中學部外借書庫,沒有自然通風采光。主入口因樓上學生電視臺地面的局部降板,形成僅2米的壓抑結構高度。書庫封閉入口讓同學們即使每天經過,也會常忽略這個圖書館的存在。
空間內部維持著上世紀九十年代建設初期格局,燈光昏暗,三層以書架支撐的簡易樓板,堆滿書和古籍,沒有開放閱讀的空間,只有書庫的查找和借還功能。在信息時代的校園,這樣年久失修的空間讓很多珍貴的書籍只能處于沉睡狀態。
▼項目概覽
學校最初提出的設計需求是,改造后希望在原有已非常局促的空間里增加兩個班可教學空間,一個獨立的電子閱讀室,古籍修復及展示區,同時需將容納十萬余冊圖書。根據空間共性與合理時間管理達到分時共享。面對這些需要更多面積才能完成新功能需求,我們提出了一個讓校方出乎意料的設計思路:將原三層1200平米設計面積調整為兩層800平米 。
▼改造前后對比圖
▼設計需求匯總
打破了原有壓抑的三層簡易樓板式書庫格局,將空間高度重新界定為更加舒適的上下兩層。通過調整各部分空間高度,空間共享,空間優化后滿足所有使用需求。上層以豐富體驗的開放閱讀區為主,下層以目的型借閱和密集書庫為主。面積的縮小是為了空間的提升,設計的重點在如何給校園內部一個新公共空間,既是圖書館,也是自主學習交流的社區。
▼設計概念圖
主入口拆除原有封閉感的墻和門,吸引學生們走進圖書館。流動的玻璃弧墻模糊了室內外的邊界,拓展了開放的界面寬度,并把門的方向轉向走廊,投影燈在加強區域照明的同時,也明確指引的入口的位置。帶狀LED顯示屏讓文字信息從圖書館內部流動到外部入口空間 。
▼入口
咨詢臺作為圖書館老師和學生們交流溝通的界面,從主入口連續流動至辦公入口。在三個標高上串聯起多個區域 ,復合了存包、三個辦公位、收納、圖書分檢操作等多種功能。
▼圖書館查詢及還書處
▼在三個標高上串聯起多個區域
開放閱讀區由流動自由的曲線書架進行空間合理劃分,中間低矮四周圍合,視線在空間中通透。結合現狀中空間高差和新的需求設計了三個不同地面高度,形成了豐富空間層次的多個閱讀區。如同由書圍合成豐富空間層次的庭園。
▼圖書館上層空間概覽
▼開放閱讀區由流動自由的曲線書架進行空間合理劃分
▼上層中心區域
▼中心下沉閱讀區
原有照明與通風嚴重不足,我們創建了一個模擬天窗效果的吊頂系統,在這些仿結構“井字梁”里面集中組織照明、新風及空調等各種設備管線,將原有雜亂暴露的結構和管道藏于其中。新風系統將外部新鮮空氣引入室內,精確定量的設計滿足任何狀況的使用需求。
同時前置的PM2.5過濾裝置保證在任何天氣下圖書館內空氣的純凈。中間凹進部分的軟膜天花,用最接近自然光線的色溫,形成如天窗的光井。這個綜合系統提供了設備所需高度,同時拉伸視覺高度,可聯想到有天井采光的屋頂。
▼頂部構造解析
▼模擬天窗效果的吊頂系統
弧形的空間元素與上部的空間相呼應,樓梯順應空間的偏轉形成上下層主聯系。扶手上方的光線作為方向引導。通過視線分析,確定各個區域視覺重點位置,設計之初就將綠植立體配置在各個空間里,讓圖書館充滿清新和生機的閱讀氛圍。
▼聯系上下層的主樓梯
▼下層的開放閱覽區
▼下層綠植區結合閱覽椅
項目完工拍攝時,圖書館已經開始試開館。設計最初設想的場景一一實現,這里如同社區中微花園,有溫如暖陽的光線,有下沉小廣場,有綠樹邊的座椅。這樣的情境對于用地緊張的傳統校園空間更顯珍貴。
空間和設施整體改造后, 除滿足藏書和借閱書籍的基本功能外,開放課堂區和電子閱覽室能開展閱讀指導課、交流展示、小組討論、學生社團活動等,打造出復合功能的開放式現代學習空間。作為老校園中的局部改造更新的實踐,這個圖書館如同植入的原有傳統校園空間系統中的新內核,激發了傳統教學樓的內在的活力,更開放的面對不斷變化未來。
▼開放課堂區(小組討論模式)
▼開放課堂區(上課模式)
項目圖紙
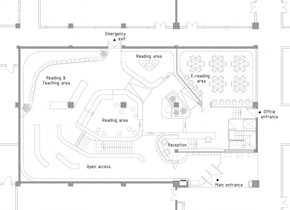
▼入口層平面
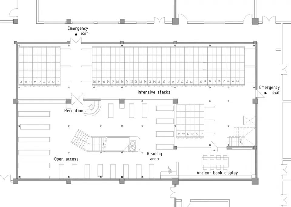
▼地下層平面
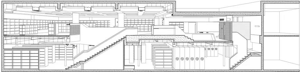
▼剖面******圖
設計方:回囙建筑
項目設計 & 完成年份:2019
主創及設計團隊:趙暉 汪湘君 李學思
項目地址:北京市東城區燈市口大街53號
建筑面積:800㎡
攝影版權:金偉琦
.END.
注:本文轉載自gooood谷德設計網,版權歸原作者所有。

