江山烈士紀念館
作者:建日筑聞 來源:建日筑聞
生命的折枝
一、項目概況
浙江江山是方紅色熱土,為銘記歷史、緬懷先烈、警示未來,當地政府決定興建江山烈士紀念館。項目選址于城市西側山地公園的最南端,用地東向以西山路與城市為鄰,北接西山公園,南、西兩側鄰近原有公共墓園。基地東西最大落差約18米,南北落差約12米。
二、設計立意
面對戰爭,我們秉持中性的歷史觀。我們認為,戰爭的正義性、政治性固然重要,然而,戰爭更是無數普通生命和家庭的一首挽歌。基于江山紀念館相對有限的革命歷史資源,我們提出以普通戰士作為紀念對象,通過建筑化模擬展現“戰士”——戰爭中最基本的個體生命的最后的生死壯舉,進而引發觀者對戰爭的思考、對生命的思考,從而更為珍惜和維護當下的和平環境。如此,設計最終選擇以“生命的折枝”作為創作立意。
西向全景
三、設計展開
開放性
紀念館坐落于西山休閑公園的起點,而西山休閑公園定位為市民休閑活動的場所,為此,烈士紀念館的設計似應嘗試弱化常規紀念建筑的凝重肅穆,而尋求更為開放親和的特質。
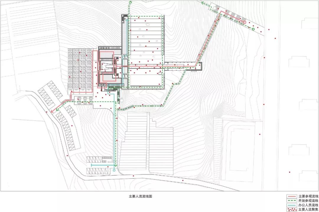
流線圖
開場的紀念廣場
南向入口景觀
開放性首先在于紀念館同城市及自然順暢的鏈接關系。具體為:東向通過景觀臺階與西山休閑公園主入口和城市對接,西、南向則與現狀支路與城市相連,北側還留置出口與山體游步道相接,紀念館南側還布置有開敞的景觀游步道等。上述多向入口和動線集結成網,從而形成了一個可穿越、可駐留、可休憩、可省思的立體開放的紀念場所。
次入口廣場
西入口室外通道
開放性,還在于在用地東側設置有大型臺地式紀念廣場。廣場約78米縱長38米橫寬,結合南北近4米的高差,設置階狀綠化、紀念林地、紀念長廊、和平塔等。紀念廣場既能滿足常規的紀念性活動,同時,草階綠植構筑的廣場配備有座椅、涼廊、公共洗手間等,有著親和舒朗的人本氛圍,使得此地有如西山公園的南向“紀念客廳”,充分彰顯了開放性特征。總體而言,項目呈現為外部景觀區、紀念館區、生態墓園區“三區并置、層層遞進”的總體特征,實現了“休閑氛圍”與“紀念氛圍”的開放融合。
剖面圖
西立面
紀念性
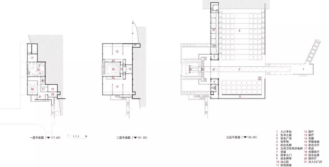
在上述開放性基礎上,建筑的紀念性主要通過東西向空間軸——“生命之路”的構建予以體現。
生命之路
和平塔
此空間軸從模擬戰士最后的生命歷程入手,拉絲石材鋪砌的路徑表面嵌置條形燈帶,猶如戰士在戰場上奔跑的足跡;足跡由東而西,由前區穿越紀念廣場、戰爭之門,直至白玉花環后的紀念方庭上空起翹、折斷、墜落,最終與墓園融為一體,抽象呈現“奔、折、落、歸”的生命歷程。
生命之路
紀念廣場既以建筑與片墻圍構,總體雙向對稱,有著隱約的莊重的氛圍;南側紀念長廊留白為篆刻紀念主題的相關信息,石墻與日影的推移,有如時間與逝者的低語;林地南側,和平塔默然而立;臺地廣場上更特別植栽78棵廣玉蘭樹,希冀以純潔的白色之花作為對生命的追思與緬懷……
白玉花環
而在紀念方庭,在10米跨度、30度斜向凌空出挑的極富張力的“折枝”挑板之下,條狀塊體有如碎片般散落搭接,象征著生命的瞬間隕落;塊體表面,同樣選刻有戰士的時間信息,使紀念方庭成為整個紀念主軸空間與主題的鮮活高潮。而方庭西向墻外即是墓園,隨形就勢、層層跌落的石階花圃,清肅整潔。墓池以黑灰礫石和銹紅鋼板為底,冬青樹和映山紅圍護青石墓碑,象征著烈士的歸宿與重生。
紀念方庭
紀念方庭
詩性
設計的詩性,在于將紀念借由生命之路進行參與性表達。“奔—折—落—歸”,看似是建筑化的動作模擬,實意是通過詩性的抽象,讓觀者能夠循著足跡參與烈士生命最后時刻的特殊進程,漸生體會從而有感而發。這既是物理性的動作呈現,更是逝者與觀者在同一時刻的生命混響。
入口過廳平臺
設計的詩性,更在于時空和生死的多主題的耦合。以生命之路的起點、紀念庭院中的隕落、烈士墓園的回歸來對應生命的“生—死—眠”歷程,恰好也是暗合了從城市走向自然以及“東—西—東”的時空輪回,一如漫山的蒼翠林木和墓園中的紅白杜鵑,四時更替,生而不息。
紀念長廊
四、結語
即使是平實的服從
抑或是崇高的信仰
這一刻 這些人
都將身體******于震天的炮響
即使是為著家園的破碎
抑或是為著國度的存亡
這一刻 這些人
都曾縱身躍入歷史的汪洋
正因為 正因為這些人
這些裸露與縱身 怯懦或果敢
使我們得以跨越
跨越曾經的苦難
因而 今天 今天我們是否可以
以這樣一種方式
以生命的折枝
以集體或個人的名義
記憶這些無名史書上的戰士
畢竟這是他們的戰場
更是他們的故鄉
這首小詩是我們6年前設計初始的思考記錄,而今,這個小小建筑終于得以實現。在此期間,行為的情景復現、空間的折轉開合、主題的多重隱喻、時間的遞進回環,是一直縈繞于心的話題。
墓園回望
從墓園看建筑
我們希冀,項目最終能呈現上述所有方面的融合,也能確切成為現當代紀念建筑創作思潮的融匯并發展。2018年4月4日,正值清明前夜,紀念廣場上的廣玉蘭一夜凋零,“白玉無瑕、曇花一現”,這令人無盡唏噓的場景難道不正是所有烈士短暫生命的特殊寫照嗎?而若置身于歷史長河,這些由著戰爭的名義、瞬間的生死,又何嘗不值得所有觀者稍稍駐足并鄭重回想?
項目圖紙
總平面圖
總平面圖
總平面圖
平面圖
項目信息
建筑師:浙江大學建筑設計研究院有限公司
主創建筑師:葉長青、史國雷
地址:西山路,江山市,浙江,中國
設計時間:2013年1月—2014年3月
竣工時間:2018年4月
基地面積:13100平方米
建筑面積:1650平方米
.END.
注:本文轉載自建日筑聞,版權歸原作者所有。

