Josefhof 療養中心,是建筑是景觀是人居
作者:建日筑聞 來源:建日筑聞
該項目將建筑與景觀融合在一起,旨在為該地區創造人與自然之間的和諧氛圍。設計場地屬于該地區典型的果園草地。三個狹長的結構被設置在類似競技場的場地中,使得建筑有時看起來像是盤旋在地面上,有時則是嵌入到地形中。
為了讓景觀滲透到建筑之中,建筑師設計了種植果園草地的中庭。S山及其周圍的丘陵森林和草地的景觀是Josefhof空間布置的主要影響因素。入口區域、餐廳和酒吧提供了朝南和朝北的視野。底層結構交錯排列,讓屋頂與上層建筑的圍墻底端平行。
自然地形的景觀在結構之間延續。所有房間都有良好的文化景觀視野。研討會區和繁忙的初級保健診所不僅擁有良好的景觀視線,還提供了通往自然的便捷地面出口。沐浴和桑拿區位于建筑南部的地形基礎之上,在那里可以欣賞木屑小徑與池塘景觀。
軸測圖
從接待大廳開始,所有區域都是無障礙的,可以讓人們快速進入。與立面相反,簡單緊湊的窗戶結構被遮擋,避免了太陽直射。最佳隔熱立面和背陰的中庭滿足了建筑的能源需求。建筑的承重結構采用高度預制化這一十分經濟的建筑方式。
這些房間由木材模塊組成,內部裝飾完善后交付給建筑工地。房間由自然材料主導,強調療養中心中設施的重要性。貫穿建筑的景觀也使用了自然材料。天花板上的明確而經濟的柱網作為建筑的承重組件。
所有的房間隔斷、固定裝置和建筑圍護結構都是在裝配式結構中制造的。這使得建筑具有足夠的開放性和靈活性,便于今后的改建。承重結構、窗戶構件、墻壁構件以及門等構件的連接,在可能的情況下慎重選擇對天然二氧化碳中性材料,這有助于實現盡可能低的一次能源消耗。
精選的優質材料清晰地組合在一起。我們希望利用盡可能自然、無毒和來自可再生原料的材料,以及節約使用現澆混凝土和塑料。建筑技術概念要遵循低技術方法,同時優先考慮自然遮陽和通風解決方案。
此外,粘土作為一種天然的生態建筑材料,利用其結合污染物和調節(空氣濕度)的特性,改善了室內氣候。因此,房間和浴室之間的內墻將涂上粘土。從房間內可以直接看到,中部和南部的屋頂被規劃為種植薰衣草的綠色屋頂區域。北中堂也定期進行大面積綠化。
綠化改善了周邊地區的小氣候(在夏天冷卻周圍空氣,吸附細顆粒物和污染物),提供了更好的隔音效果,延長了屋頂覆蓋層的壽命。屋面保溫采用巖棉(隔音效果較好,不易燃)和瀝青板防水材料(天然建筑材料,易于回收利用),這被視為最佳的、最合理的生態建筑添加物。
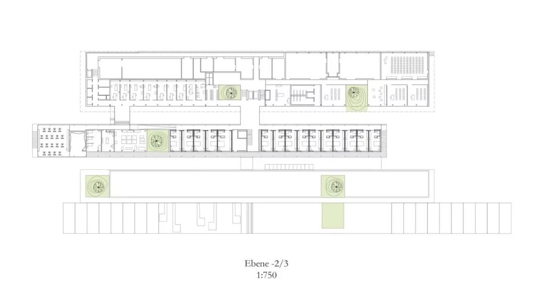
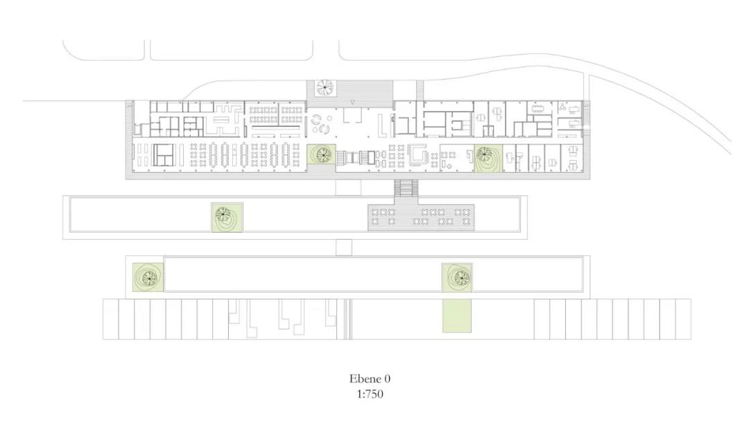
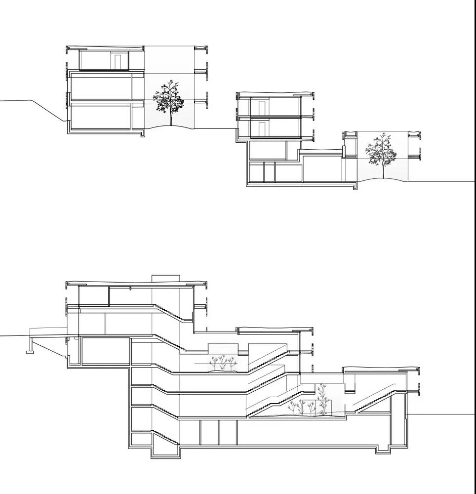
項目圖紙
場地平面圖
首層平面圖
二層平面圖
三、四層平面圖
六層平面圖
立面圖
剖面圖
項目信息
建筑師:Dietger Wissounig Architekten
地址:Haideggerweg 38, 8044 格拉茲,奧地利
設計團隊:Dietger Wissounig, Stephan Schmidt, Patrick Steiner, Gernot Moser, Bettina Gossak-Kowalski, Jan Müller, Stephan Brugger, Claudia Pittino, Matthias Holzner
建筑面積:13500.0 m2
項目年份:2019
.END.
注:本文轉載自建日筑聞,版權歸原作者所有。

