銜接與整合 - 日本牙醫協會大樓
作者:gooood谷德設計網 來源:gooood谷德設計網
該項目位于佐賀舊城的遺跡附近,周圍遍布著政府辦公樓和博物館等行政及文化建筑。基于佐賀牙醫協會以培養成員技術和促進牙科發展為首要任務的核心理念,該項目在協會成立100周年之際,為構建“開放的牙醫社會”提供了理想的當代建筑方案。
▼建筑外觀
佐賀舊城的小巷和水道至今維持著原來的面貌,牙醫協會經辦的職業學校就位于其中一條街道的深處。除了作為牙醫協會的辦公地點,該建筑也用于教學和租賃,大樓的主廳保持了獨立,一層的體量在各個方向上都擁有寬闊的開口,便于街道上的人們進入。
▼周邊環境
塔樓的體量較為緊湊,主要用于培訓和辦公。獨立大廳和辦公塔樓通過巨大的屋面被整合為一座一體化的建筑,并通過屋檐下的門廳形成空間上的連接。這種布局方式也從某種程度上展現了“開放的牙醫社會”的理念。
▼獨立大廳+辦公塔樓
▼入口大廳
▼門廊
▼首層演講廳
▼會議室
▼辦公空間
▼研討室
▼研討室細部
各層的窗戶大小各有不同,屋檐和露臺的寬度也根據空間的功能而有所變化。具體考慮的方面還有空間舒適度、與周圍建筑的關系、平面布局、朝向以及熱環境等。盡管辦公樓的面積十分有限,每層只有約12×12平方米,但與之相連的開放式大廳使得人們能夠在這里感受到周圍城市以及佐賀平原的廣闊風景。
▼屋檐和露臺的寬度根據空間的功能而有所變化
▼享有廣闊視野的休息室
不同體量的銜接和整合解決了來自內部和外部的各種問題,例如建筑平面布局和場地環境等。原本,這類建筑通常僅供少數的內部成員使用,如今它變得更加開放,成為了一座屬于多數人的“共享建筑”。
▼檐下露臺
▼建筑夜景
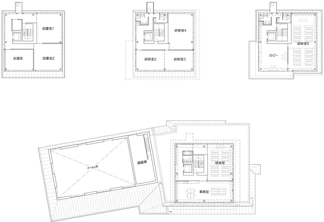
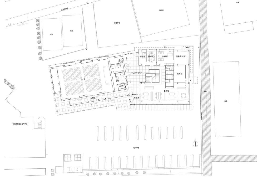
項目圖紙
▼場地平面圖
▼首層平面圖
▼2-5層平面圖
▼南立面圖
▼剖面******圖
.END.
注:本文轉載自gooood谷德設計網,版權歸原作者所有。

