大連理工大學管理與經濟學部樓
作者:gooood谷德設計網 來源:gooood谷德設計網
每個大工人都有一個灰磚夢,每個經管學子心中都有一座八角樓……建筑植根環境,建筑孕育氛圍。
▼教學樓鳥瞰圖
首先作為人文學科學院樓,其建筑除滿足自身的功能外,更為重要的是能提供相對恰當氛圍的學習和交流場所。其次作為獨立的學院,需要有自己獨立圍合的內向空間。而不同的圍合空間之間,都需要體現不同學院氣質空間的同與異,不同的功能分區之間的空間銜接和過渡以及建筑內部空間,均需要體現人文學科的特征。地塊西南角,以及與南側主校園的過渡空間均需要建筑自身與之相協調。
▼教學樓外立面局部,設置拱形入口
灰磚、石頭、拱窗和入口弧形門廊……通過精心延續校園環境文脈,追求細節體現建筑的文化底蘊與空間的人本性,把校園建筑上升到精神的層面。
▼入口弧形門廊
本項目充分研究理工大學區域的區位條件,有效利用自然資源和人文資源,合理布局,處理好學部內幾大功能區塊的相互關系,全面考慮建筑形象,確保從各個角度都能給人良好視覺感受,并尊重基地周圍的現狀環境,在建筑設計中盡量保持謙遜的姿態,不張揚。
▼功能分析圖
▼入口鳥瞰圖,確保從各個角度都能給人良好視覺感受
▼主入口廣場,立面墻體略帶弧度
▼主入口廣場和立面
穿行在陽光和燈光交替照耀之下的大臺階,徜徉于不同層面的室外交流露臺,體會著不斷追尋新的知識高地的內在力量。
▼二層的室外交流露臺
▼陽光照耀之下的二層平臺
在磚和石頭呈現的經管學部空間里,從墻面銅制泄水口溢出的斑駁水漬和東側綠化駁坎上的石質校園標示,都在講述著這數年建造的故事;拱窗和入口弧形門廊投下的影子,慢慢的從地面移動到墻上;黃昏時分的鳥兒在西側主入口廣場上飛快地盤旋,時而停在了入口銘牌旁的黑松上。
▼教學樓的八角樓
▼八角樓室內,設有天窗
▼教學樓室內
▼教學樓樓梯
▼教學樓的拱廊
項目圖紙
▼總平面圖
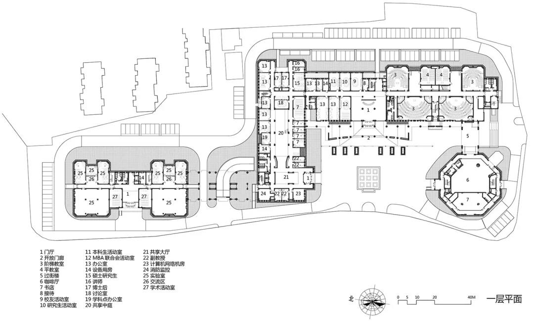
▼一層平面圖
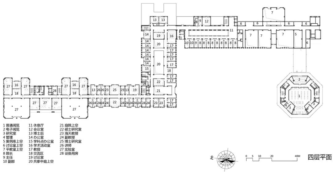
▼四層平面圖
▼五層平面圖
▼立面圖
▼剖面圖
項目名稱:大連理工大學管理與經濟學部樓
設計單位:浙江大學建筑設計研究院有限公司
主創設計師:吳震陵
設計團隊
建筑:陳瑜、施明化、張元升、張揚、胡頻飛
結構:金振奮、陳剛、程柯、沈金
給排水:陳激、方火明、王小紅
電氣:鄭國興、韋強、楊文征
暖通:楊毅、邵春廷、任曉東
智能化:楊國忠、李向群
景觀:湯澤榮、吳維凌、王潔濤
地點:遼寧大連
業主:大連理工大學
基地面積:25451平方米
建筑面積:35998平方米(其中地下5893平方米)
建筑層數:地上6層、地下1層
結構形式:框架結構
.END.
注:本文轉載自gooood谷德設計網,版權歸原作者所有。

