春暉路青年公寓
作者:gooood谷德設計網 來源:gooood谷德設計網
煙臺市春暉路位于煙臺市萊山區,周邊原為文教和輕工業集中區域,附近有煙臺大學、山東工商學院和中科院研究所等大學和教育培訓學校。近年來的城市發展使得該區域逐漸成為萊山區的中心地帶,大部分工廠搬離,留下許多空置廠房。春暉路泊寓項目場地就在這樣一個處于更新中的前工業區域,現場有三棟建筑,分別為原有工廠的辦公、倉庫和設備用房。設計任務是將該小型園區改造成一個活力共享的青年居住社區。
▼項目概覽
煙臺多山、陽光充足,而且有著極長的海岸線,是典型的中國北方海濱城市。在本設計中,我們希望能夠從城市氣質的角度切入,賦予該海濱城市青年公寓的獨特建筑空間調性,并帶來當下年輕人共享社區的優秀生活品質。
▼一個活力共享的青年居住社區
▼場地位于更新中的前工業區域
▼項目鳥瞰
場地北側的春暉路上,兩排郁郁蔥蔥的行道樹幾乎遮擋了整個建筑沿街立面,而場地東側面對的是培訓學校的開闊綠地。于是我們大膽地將立面的主次關系調整,將面對東側開闊場地的一面作為建筑主立面:建筑首層在東側打開,作為整個青年公寓的客廳和公共活動空間;原有場地上的三棟建筑的東側山墻面也采用統一、連續的方格子形式語言作為青年公寓的主要外部特征。
▼體量生成分析圖
▼建筑主立面
▼三棟建筑的東側山墻面也采用統一、連續的方格子形式語言
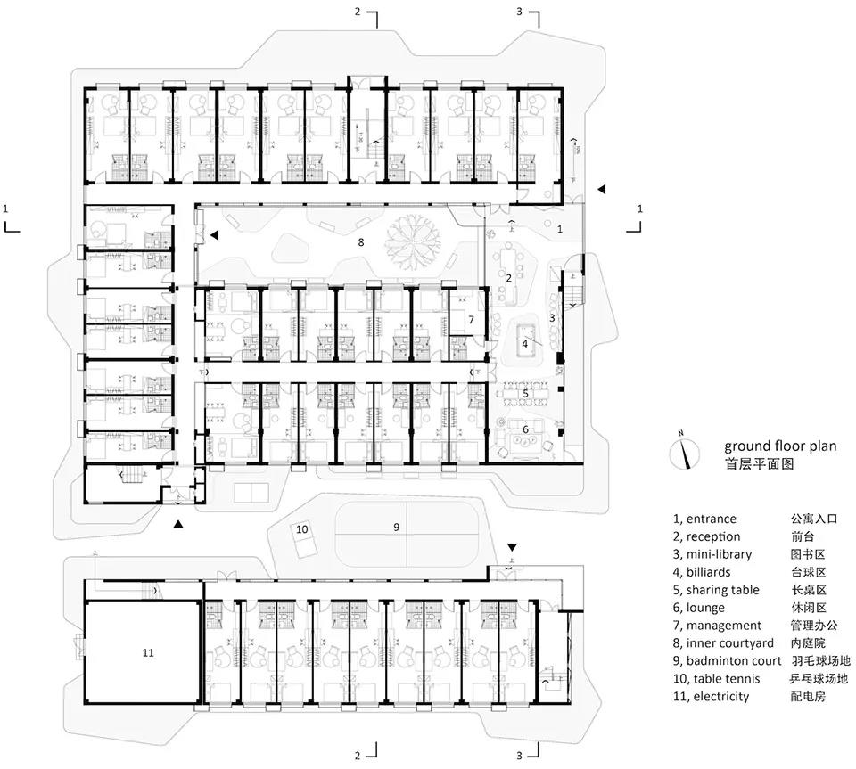
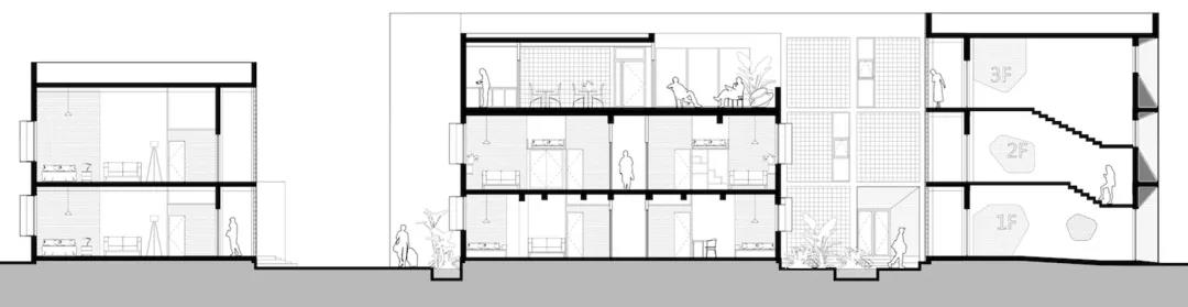
原北側三層高的建筑進深較小,為了得到較舒適的套內居住空間,設計中加建了一條外走廊來串聯各部分的公共交通。該走廊的外墻面為極具文藝氣質的玻璃磚,半透明的玻璃磚墻和新增的入口門廳一起形成了一個內向的靜謐庭院。該走廊同時也連接了原有二層高的倉庫屋頂,屋頂新增了陽光房,作為青年公寓的餐廳、公共廚房、洗衣房和健身房功能;屋頂平臺面對東側開闊場地,是該青年公寓最重要的戶外社交和休閑場所。
▼北側三層高的建筑加建了一條外走廊來串聯各部分的公共交通
▼走廊的外墻面為極具文藝氣質的玻璃磚,半透明的玻璃磚墻和新增的入口門廳一起形成了一個內向的靜謐庭院
▼不同灰度的鋪地像是沿建筑一圈的裙邊
被賦予正面性的東立面山墻采用的是簡潔樸素的方格子語言,我們通過格子內墻面傾角的變化帶來了對整個東立面的藝術化處理。內墻面的深淺橙******模擬不同傾角下陰影的投射,而在一個陽光明媚的早晨,不同的時間段也有著豐富有趣的光影效果。這種大面積白墻和橙******的傾斜墻面的對比,也呼應了碧海藍天下文藝范兒的城市氣質。
▼通過格子內墻面傾角的變化帶來了對整個東立面的藝術化處理
▼內墻面的深淺橙******模擬不同傾角下陰影的投射
▼大面積白墻和橙******的傾斜墻面的對比,呼應了碧海藍天下文藝范兒的城市氣質
加建的走廊面向安靜的內庭院,其立面材料主要是半透明的200mm見方的玻璃磚。白天,柔和的光線透過玻璃磚照進建筑走廊和樓梯間,明亮并且舒適,如果身至庭院里,則會時常看到走廊里有人經過的光影浮動;夜晚,室內照明點亮了走廊和公共區域的橙******墻面,淡淡的鵝黃透過玻璃磚滲透出來,像溢出的橙汁,給年輕的人們家一般的溫暖感受。
▼軸測圖
▼內庭院
▼內院連接入口門廳,是進入公寓內部的第一印象
▼夜晚,淡淡的鵝黃透過玻璃磚滲透出來
景觀介入主要表現在對內外兩個院子和屋頂平臺的處理上。內院連接入口門廳,是進入公寓內部的第一印象,因此內院采用白色礫石和植物結合的方式,營造一個相對安定的庭院空間;建筑的外部景觀處理以硬質鋪裝為主,不同灰度的鋪地像是沿建筑一圈的裙邊,作為景觀空間對建筑體量的烘托。內外院子和屋頂平臺都采用了島嶼狀的圖形劃分,試圖給直角的建筑外部空間帶來自由靈活的景觀形式。
▼內庭院鳥瞰圖
▼屋頂平臺鳥瞰圖
▼半透明的200mm見方的玻璃磚
▼立面與藍天相呼應
▼內院鋪設白色礫石
公寓部分共102間,因原有建筑的不同柱網尺寸產生了5種戶型,進深從5.6米到7.6米不等。公寓單元的空間設計根據進深不同分成了三到四個模塊分區,依次是入口/衛生間、起居空間、睡眠空間、以及延展工作空間,每個部分采用不同的墻面色彩和家具搭配進行區分。原有倉庫建筑的二層較高,因此設計中還加入了LOFT戶型,讓起居和休閑空間與睡眠空間垂直分離。公寓單元的這種系統化的處理方式加大了套內的空間感,同時也通過明確的功能分區提升了居住空間品質。
▼單元戶型圖平面及軸測圖
▼單元一點******圖
▼入口門廳
▼公共休息區
▼光線透過玻璃磚照進建筑走廊和樓梯間
▼公寓單元室內
在《藝術作品的本源》中,海德格爾提到:“作品之為作品,唯屬于作品本身開啟出來的領域……作品存在就是建立一個世界” ,對于建筑作品而言,建立一個世界也可以理解為營造一個場所。在煙臺春暉路青年公寓項目中完成的這種改造方式無疑是實驗性的,它不只是對原有建筑進行功能性地整理,更是努力尋找一個能夠與海濱城市和青年社區的精神內涵所契合的建筑和空間氣質。
我們通過對原有建筑正面性的轉換,重新調整了建筑與周圍城市的關系;通過在建筑立面上對于色彩和光影藝術化的植入運用,給青年公寓塑造出獨特的可識別性和空間場所;我們還通過對入口公共區域和靜謐庭院的內外空間處理,營造出青年社區的共享生活方式和居住空間體驗。
▼夜景
項目圖紙
▼建筑模型
▼一層軸測圖
▼二、三層軸測圖
▼總平面圖
▼一層平面圖
▼1-1剖面圖
▼2-2剖面圖
▼3-3剖面圖
▼西立面圖
項目名稱:煙臺春暉路泊寓
建筑/室內/景觀設計:MAT 超級建筑事務所
主持建筑師:唐康碩,張淼
設計團隊:婁云彬,吳明雨,張爽,劉慧賢
設計時間:2018.07-2018.11
竣工時間:2019.04
建筑面積:3220平方米
.END.
注:本文轉載自gooood谷德設計網,版權歸原作者所有。

