浙江中德(長興)國際產業合作園
作者:建日筑聞 來源:建日筑聞
© CreatAR Images
浙江長興是亞洲最大的白色家電生產基地之一, 浙江中德(長興)國際產業合作園作為浙江省首批國際合作產業園,總體規劃為5平方公里,核心區塊0.82平方公里,核心位置規劃確立的啟動區占地面積10公頃,將建設標準廠房及研發辦公室和生活配套等公共配套設施。
© CreatAR Images
© CreatAR Images
園區全部采用高標準進行分期建設,要求打造既“安居”又“樂業”, 功能復合的德式“產業社區”。FTA受邀為 浙江中德(長興)國際產業合作園進行了產業園的總體規劃設計、啟動區的建筑設計及展示中心的室內設計。
© CreatAR Images
© CreatAR Images
可持續設計對于國際產業園項目來說不是選擇,而是必須。面對日益迫切的減少碳排放和保護自然資源的需求,規劃方案的一大亮點就是以水域為核心建立一個“可持續性引擎”,延續水鄉脈絡,在基地內部構建一個人與自然和諧共生的生態家園,并在連續的濱水空間上設置節點,導入娛樂功能,增加人與水互動的同時將建筑功能與水景有機結合,在視覺上實現良好融合,實現建筑與水的對話。
© CreatAR Images
目前,園區的一期項目(包含四棟廠房以及一個展示中心)已經投入使用,建筑設計嚴密考慮到德國及國際企業的需求,打造合適的空間產品,使辦公與車間的產生緊密連接。
© CreatAR Images
© CreatAR Images
立面上應用鋁板與玻璃, 有節奏地組合,營造現代干練的氛圍;同時采用預制技術與整體模數化系統,從建造層面上體現工業4.0。值得一提的是,FTA在設計多種產品的同時保證部分產品空間可調整,最大限度地避免了招商及運營期的風險。
© CreatAR Images
© CreatAR Images
© CreatAR Images
建筑中也應用大量的綠色技術:室內自然通風、太陽能光熱建筑一體化系統、雨水回收系統、智能照明系統、能耗監測系統、合理采用高性能混凝土、高強度鋼以及可回收材料、增加透水磚鋪地面積等。
© CreatAR Images
展示中心的室內設計延續了建筑設計的風格,通過溫暖的木色, 混凝土質感的地面,暗色系的家具和大面積留白的墻面,以及簡潔的材質對比,營造出豐富的視覺效果,同時最大限度的將自然采光引入室內,讓遠處蔥蔥美景盡收眼底。
效果圖
© CreatAR Images
一體化設計不僅保證了項目效果與質量,還能極大節省了建設時間,時間周期縮短了至少15%。作為浙江省首批國際產業合作園之一,這里不僅是一個智造園區,也是一個濱水公園,不僅是一個展示中心,更是一個商業休閑勝地。
© CreatAR Images
© CreatAR Images
開園當天,德企沃拉博有限公司投資1500萬美元的新型汽車電機項目、德國萬可仕投資100萬歐元的醫用精密零部件項目等一批優質外資項目進行了集中簽約。長興中德產業園正在成為長興深化與德國經貿合作、引入德國先進制造業、吸收德企先進技術和管理理念,彰顯多樣性與社區性,贏得更廣泛的國際企業的青睞,推動長興制造邁入中高端智造的高地。
© CreatAR Images
© CreatAR Images
項目圖紙
平面圖
平面鳥瞰
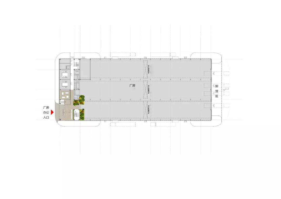
首層平面圖
二層平面圖
三層平面圖
剖面圖
剖面圖
剖面圖
項目信息
建筑師:德國FTA建筑設計
地址:發展大道與陳王路交叉口,長興縣,湖州市,浙江省,中國
建筑面積:20391.06 ㎡
項目年份:2017
.END.
注:本文轉載自建日筑聞,版權歸原作者所有。

