方圓兩面派,Ravel 青年公寓
作者:建日筑聞 來源:建日筑聞
© Ronald Tilleman
Ravel宿舍是一棟可服務800名學生的多功能、可持續學生宿舍,旨在為當下的都市環境提供積極正面的影響。同時,該項目還試圖賦予阿姆斯特丹新的都市形象,從而將阿姆斯特丹的都市和文化氛圍融合在一起。這里鼓勵與支持自行車和公共交通的出行方式。
© Ronald Tilleman
© Ronald Tilleman
© Ronald Tilleman
這棟具備復合功能的宿舍為居住者在都市環境中提供了一個多元且令人享受的工作生活空間。Ravel住宅樓具有可循環、持久耐用、細節靈活多變的特點。此外,通過對能源,環境和社會服務設施的精心管理,這棟住宅樓可以長期地保持一個高質量的居住水準。
© Ronald Tilleman
© Ronald Tilleman
© Ronald Tilleman
Ravel作為一棟服務于年輕人的公寓,旨在滿足他們舒適靈活且經濟適用的居住需求。宿舍在滿足學生對私人空間極大需求的同時,提供社交派對的空間。此外,該住宅樓還靠近城市的主要基建設施及公共交通服務體系,是當地最大的學生中心。
分析圖
© Ronald Tilleman
© Ronald Tilleman
建筑師在設計過程中考慮了每位學生對舒適且愉快的居住體驗的需求,包括單人或團隊的學習室設計、咖啡館的配備、休息室和私人用餐空間的設置等。同時,建筑師還在大樓的一層設置了一間洗衣房、一個巨大的自行車庫、庭院和獨特的運動場所。該大樓還配備了專門的醫療服務體系,附近街區的醫生會以每周兩次的頻率在大樓內為住戶提供服務咨詢。
© Ronald Tilleman
© Ronald Tilleman
此外,建筑師還在Antonio Vivaldistraat街的一側設置了一個入口,以在Boelelaan的街角創造一定的空間活力。通過移除基地原有的幾棟住房,建筑師為公共和商業混合空間的營造上提供了機會與可能。這樣一來,Ravel宿舍結合周圍的兩個公共空間,為住戶提供一份舒暢且愉悅的居住體驗。
© Ronald Tilleman
© Ronald Tilleman
© Ronald Tilleman
© Ronald Tilleman
項目圖紙
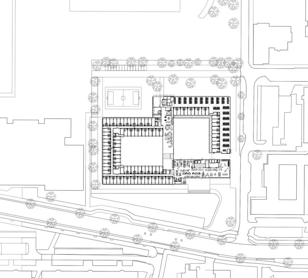
場地平面圖
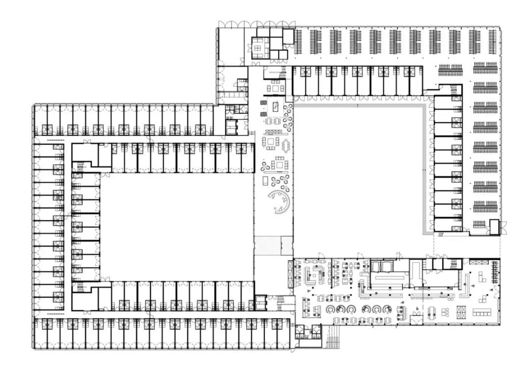
標準平面圖
屋頂平面圖
學生套房平面圖
項目信息
建筑師:OZ
地址:Antonio Vivaldistraat 5,阿姆斯特丹,荷蘭
建筑面積:24500.0 平方米
項目年份:2015
攝影師:Ronald Tilleman
設計團隊:John Bosch, Thijs Ultee, Martin de Jong, Harmen Meijer, Wilgo Elshot
.END.
注:本文轉載自建日筑聞,版權歸原作者所有。

