合肥北城中央公園中小學
作者:gooood谷德設計網 來源:gooood谷德設計網
合肥北城新區立志打造“學府+公園+居住”一體化新城區,萬科中央公園中小學作為該新區核心區域的重點學校,對于宣揚“學府社區、公園生活”的城市文化起到核心作用。我們試圖創造更多學校與社區的互動場所,來打破傳統邊界的定義。
▼小學建筑外觀
	
▼區位分析圖
	
▼總平面圖
	
小學設計上,原有的混凝土圍廊帶來的庭院空間,形成天然的人氣聚集點,為倡導交流與學習的行為提供了一種便利,弱化了學校生活與社區生活的邊界。我們將圖書館抬到連廊之上,使其展示面與核心綠地產生對話,更是對超越校園邊界的一種嘗試。
▼小學鳥瞰
	
▼小學剖面******圖
	
▼小學教學樓外觀
	
▼小學主入口
	
▼小學內庭景觀
	
	
▼教學樓外觀
	
▼庭院空間
	
	
▼連廊和戶外休息區
	
	
中學設計里,將中學前場打開,使其成為城市廣場的一部分,作為社會生活與學校活動的“緩沖空間”,校園前場“場景”功能的變換,消解了內與外的邊界線,使得校園與社區的互動成為可能。
▼中學鳥瞰
	
▼中學操場
	
▼中學建筑外觀
	
	
▼教學樓
	
▼庭院
	
▼教學樓立面夜景
	
對于圖書館和風雨操場,靠近城市界面設置,不僅可以方便獨立于學校開放經營,也可以作為學校對外的展示空間與展示面。最大限度開發學校的公共性,圖書館與風雨操場節假日對外開放,既能提高學校設施的利用率,又能回饋社區,促進父母子女之間的互動。
▼中學風雨操場
	
	
項目圖紙
▼中學軸測圖
	
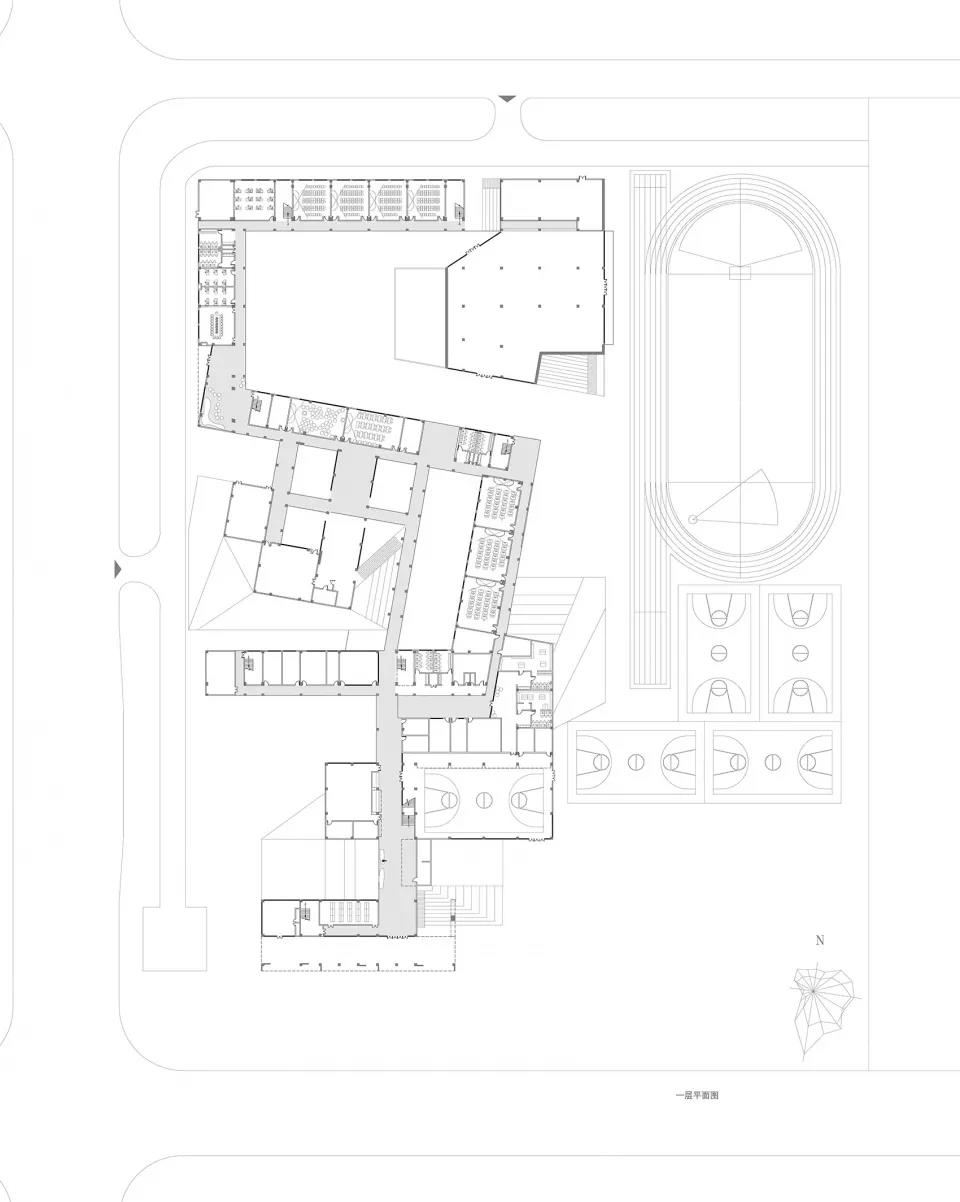
▼小學一層平面圖
	
▼小學立面圖
	
▼中學一層平面圖
	
▼中學立面圖
	
	項目名稱: 合肥北城中央公園中小學
主創建筑師:聶欣、陳海濤
設計團隊:張磊、顧航宇、吳其華、王海濤、劉奇偉、詹倩倩、王霄雯、卜楠馨、吉雍祥、武桐(排名不分先后)
項目詳細地址:合肥市北城阜陽北路與泉河路交口西南角
項目完成年份:2019年9月
建筑面積(平方米):15400平方米(小學)、21000平方米(初中)
.END.
注:本文轉載自gooood谷德設計網,版權歸原作者所有。

