華騰總部,一個充滿自然光和風的辦公空間
作者:建日筑聞 來源:建日筑聞
華騰總部地處浙江桐鄉洲泉鎮,靠近崇新公路,因周邊工廠多,每天都有大量的貨車經過。以靠建筑希望在如此嘈雜的環境中給華騰創造一個擁有靜謐山水園林意境的辦公空間,一個充滿自然光和風的空間。
01.
前序空間
傳統的辦公樓雨篷與主體直接相連,但是在華騰總部,雨篷與主體建筑之間增加了一段前序空間。如果把主體建筑比喻成一套房子的話,那前序空間就是玄關。前序空間一方面是為了把漫步空間的時間和空間維度加長,另外一方面是為了破解北入口的忌諱,讓主樓不會直接朝北,而是轉折幾次才進入,這樣的空間處理在眾多傳統的園林布局中常常見到。
前序空間分兩個部分,一個部分是起到先抑后揚中“抑”的作用,與主體建筑的山水園林宏偉敘事形成反差;另外一部分是華騰公司的業績展示空間,展示空間兩層高,不僅讓空間舒適,也讓二樓辦公部分有更好的采光。
02.
靜謐的山水園林
享受空間的美好,需要一些想象,就如同日本的枯山水,當把沙子想象成大海,把石頭想象成島嶼,才能欣賞到它的美。漫步在華騰總部的室內,可以把自己想象成山水畫中人。
與傳統園林沿著地平線展開布局不同,華騰總部的公共空間猶如把傳統園林中的亭、臺、樓、榭布局在不同樓層標高,游園的方式也從平坦或是輕微高差起伏地面到了山水畫般的山地落差,所以我稱它為“山水園林”。游走其中,隨著空間的轉換,人在其中若隱若現。漫步者可休憩,可仰望,可眺望,可俯瞰,像極了山水畫中近遠、深遠、高遠的意境。
03.
嘗試不美的材料
華騰總部延續了以靠建筑在華騰系列作品中一貫的低調作風,這次更是冒險用了每平米35元的紅色陶土面磚。只要稍有美學常識的人應該知道這絕對不是個討巧的做法,但是我們決定試試,一方面是希望把外立面的預算節省下來用在室內,以靠建筑認為建筑外立面是給人看的,眼目的******和刺激是暫時的,但是建筑內部會直接關系的使用者的日常心情,在預算有限的情況下,我們希望把更多的精力和資源用在每天在這棟建筑里的使用者。另外一方面我們就是想嘗試有沒有可能把不討巧的材料通過設計成為建筑一部分之后,它變得耐看了。
04.
表里不一的可能性
我們常常以人體的比例作為美的準則,常常討論有關建筑室內外語言一致性的問題。但從人體的解剖切面來看,皮膚、肌肉、骨骼、內臟,它們在材質和表現方式上完全不同,因為它們各自承擔的功能不同,但是它們又相互共同作用來維持一個生物體的物理和生命特征,生命體不會因為內外語言的不一致而紊亂。同理,一棟建筑的外墻是為了抵御氣候,而室內的材料是為了與人能親密接觸,它們作用不同,因此外立面材料是可以粗糙的,室內的材料盡量是柔和的,溫馨的,親近人的。
以此淺見,建筑室內外的材料表現特征可以完全不一樣,承擔各自功能,并共同維系建筑當運轉,甚至還可以混搭,比如在華騰總部,在紅色面磚的主體建筑中插入一個素混凝土的雨篷和前序空間。當內外語言符號沒有了顯性的關系,是否需要設計更強大的內在邏輯?是哪方面的邏輯?帶著這些暫時沒有完全想明白的問題,以靠建筑將會在以后的項目中繼續探索。
05.
向天空、城市、鄉村開窗
盡管華騰的立面簡潔甚至有些封閉,但是在南面和東南角各開了兩個大窗,南面的大窗是面向洲泉鎮的“城市之窗”,在三、四層,站在這里可以遠眺小鎮的容貌;東南角的大窗是面向附近鄉村“生態之窗”,在五、六層,站在那里可以看見當地農村田野的風光。在屋頂,開了天窗,讓光可以進入辦公室內部的山水園林。
06.
讓光進來
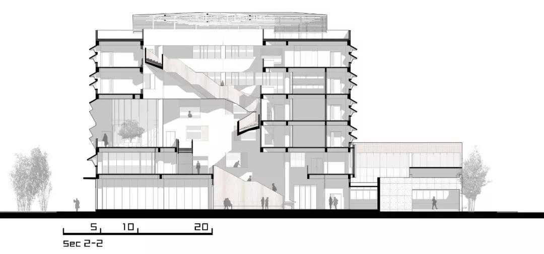
上帝造萬物先造光,可見光對受造萬物的重要性。光在以靠建筑設計的每一棟建筑里都有非常重要的作用,甚至光主導了人在建筑中的行為,華騰總部也不例外。華騰總部有六層高,我們希望光能照到一層,所以用了相對比較直白的光,但是對于五層六層的人來說,光又太強,于是我們用了遮陽板檔了大約一半的光。隨著太陽的移動,建筑內的光與影也隨之輕輕跳動,漫步其中,人可以與光對話。
剖面圖
07.
讓風進來
有自然光,再加上自然的風,山水園林就與大自然融合的,游走在山水園林意境的空間,盡管我們無法判斷風從哪里來,到哪個地方去,但是我們能感覺到它經過時一陣陣地微微輕拂,在夏天最熱的時候不會覺得熱,在冬天最冷的時候也不會覺得冷,正正好。
剖面圖
08.
移不走的柱子
在大堂大臺階的起始點,有一根柱子,從草圖上就可看到設計之初并沒有,后來結構師要加上,因為出挑已經超過五米,還要支撐六層的出挑,且出挑的邊梁還要支撐******的樓梯,結構的要求是合理的。以靠建筑也一直追求適可而止的設計,自然而然的建造,一般情況下不硬做。接下去的問題就是這么處理這根柱子,我們的處理方法是把柱子做成圓柱,保留素混凝土的質感,大臺階與柱子的交界處要有交代有處理。建成之后,這根移不走的柱子在空間中形成一股力量,與層層交錯上升的空間形成微妙的關系。
09.
墻上的草圖充當第一件藝術品
我們在設計華騰總部之初就想打破傳統辦公樓的模式,不僅是使用方式,還有空間感受,我們嘗試著把藝術空間、生態理念植入華騰總部,把辦公空間、藝術空間、生態空間的邊界打破。生態理念中如開大窗與自然融合、植物墻、空中綠化等理念很快得到實施,因為華騰本身也是在研發立體植物墻,正好有個試驗場。但是要請藝術家專門為華騰總部設計專有的藝術品還不要時間,于是原先預留放藝術品和掛藝術品的空間現在就空著,華騰沈總看我很失望,于是建議在大堂非常重要位置的一道白墻上絲網印刷上我的的草圖,算是給了精神安慰吧。
10.
永不進水的窗
當風雨大的時候家里窗戶會進水,想必大家都有這個體驗,如果買氣密性好的窗就不會有這個事情,但是當完全可以預估自己設計的建筑的窗質量無法保證的情況下,作為建筑師我們該怎么辦?我們想到了一個物理解決辦法。如下草圖,做一塊斜板出來,同時讓窗戶與立面成一定角度,這樣不管窗戶的質量如何,哪怕在極端天氣,雨水是不會進來了。水平的長條窗,出挑的混凝土板在立面上形成影子,讓立面有一種不一樣的氣質。
草圖
南立面圖
綜合下來,華騰總部的建筑和室內的總平均造價大約2800元(不含軟裝),對以靠建筑來說,這是一次“極限設計”。華騰總部是華騰系列作品的一部分,是以靠建筑十年嘗試的一次總結,也是以靠建筑未來十年嘗試的開始。
項目圖紙
總平面圖
一層平面圖
二層平面圖
三層平面圖
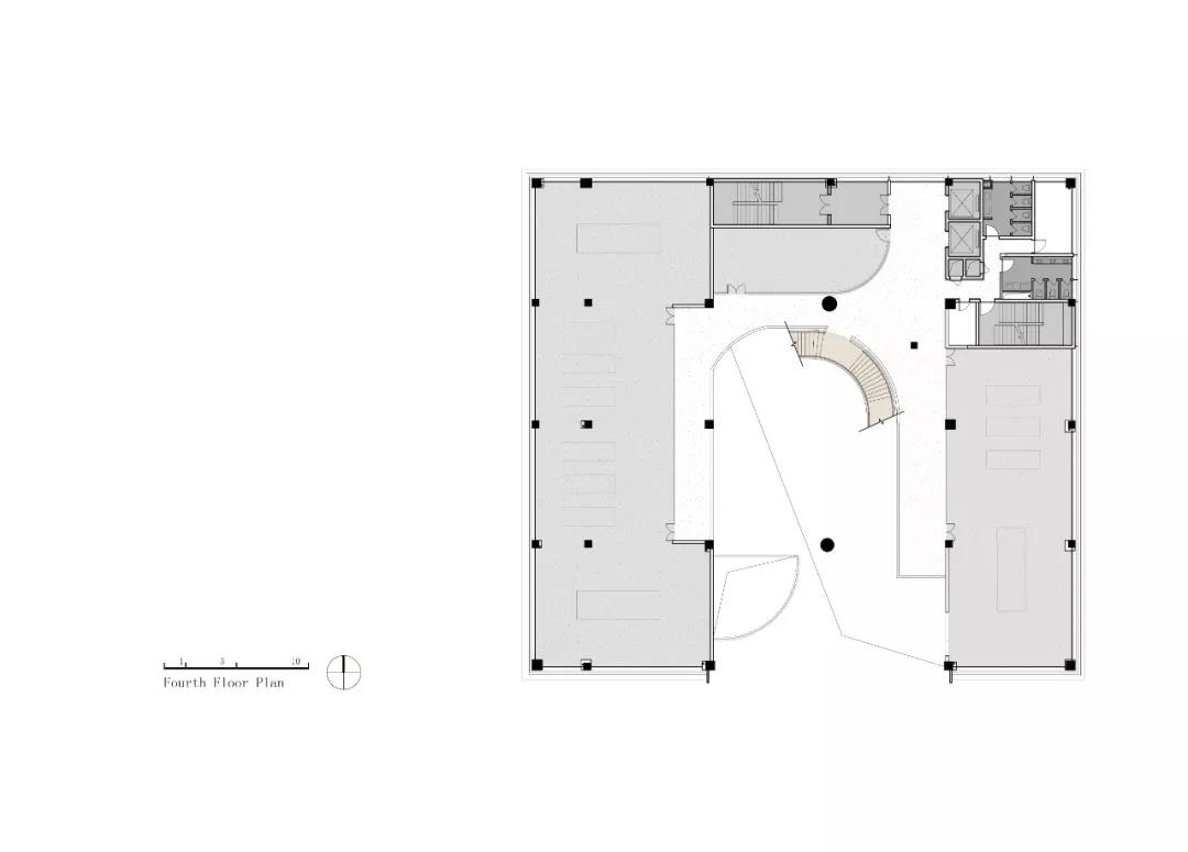
四層平面圖
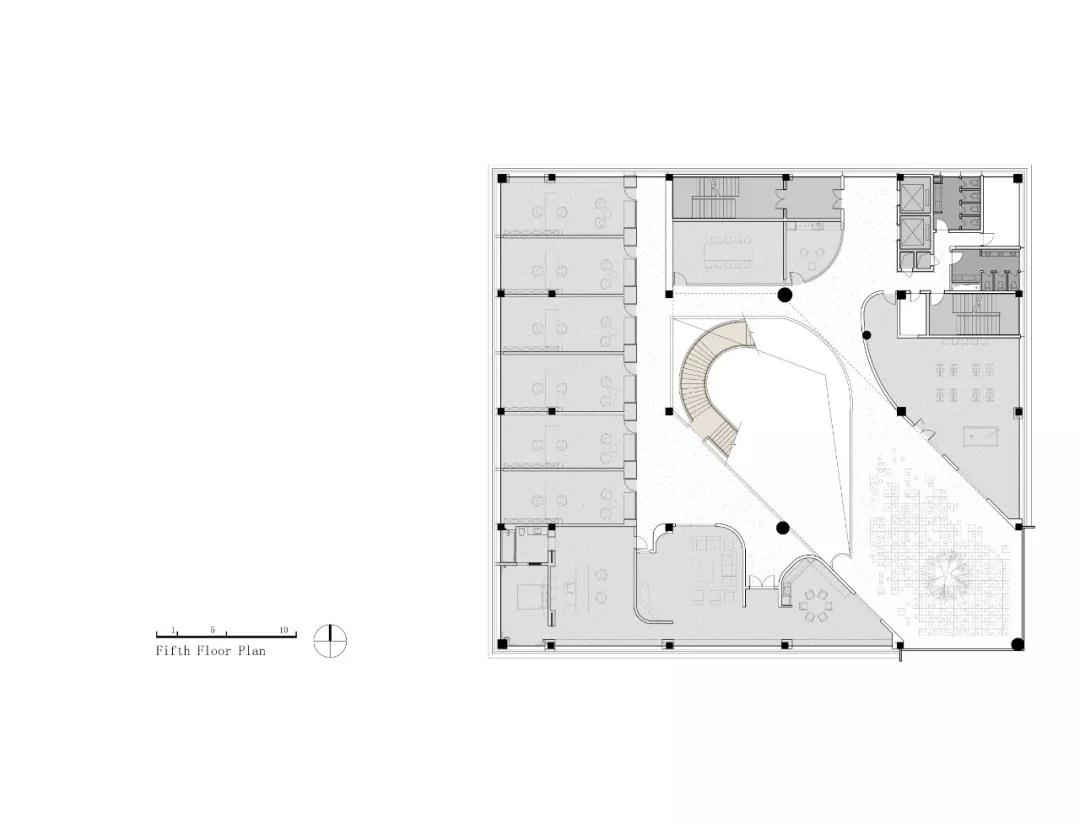
五層平面圖
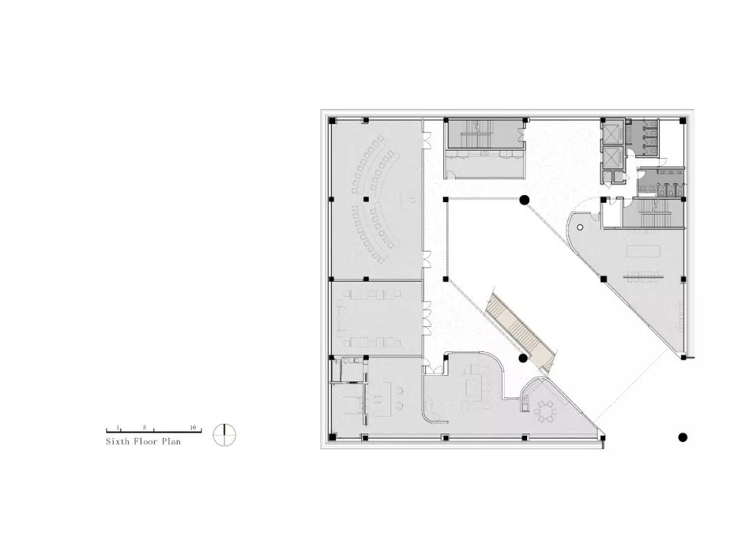
六層平面圖
東立面圖
西立面圖
北立面圖
剖面圖
軸測圖
軸測圖
軸測圖
項目信息
建筑師:以靠建筑
地理位置:洲泉鎮,桐鄉市,浙江省,中國
建筑面積:6000平方米
占地面積:1500平方米
項目年份:2019
主持建筑師:李以靠
項目團隊:徐文力、關鍵、王博、劉君存
.END.
注:本文轉載自建日筑聞,版權歸原作者所有。

