海口寰島實驗學校初中部,無界限校園
作者:建日筑聞 來源:建日筑聞
中心庭院
中心庭院
海口寰島實驗學校初中部位于海南省海口市,設計需要容納1200多名學生,并包括24個班級的教學教室、興趣活動室、學生宿舍和食堂等。項目起始于思考學校如何成為學生心靈成長的場所,而非應試教育制度的機器。
教學樓北立面
由于場地位于市區內,周邊的高層住宅建筑對場地形成了較強的包圍感和壓迫感。因此在平面布局上強調建筑的向內性,操場位于場地中心,教學樓與宿舍樓各位于場地南北兩側集中布置。教學樓內通過建筑體量對空間的劃分,進而創造出一大一小兩個庭院,形成豐富的校園空間層次與視線聯系。
中心庭院
中心庭院
看向中心庭院
看向中心庭院
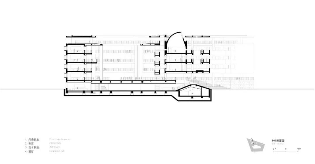
基于場地局促的條件,教學樓與宿舍樓均底層架空以釋放出更多的地面空間并使之連續。抬升至二層的教學樓中心庭院通過大臺階與操場相聯系,既是休憩交流之所,又成為面向操場的看臺。
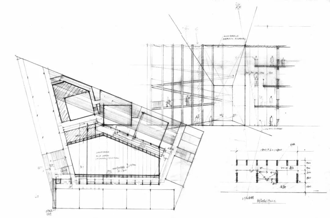
剖面關系草圖
底層架空
剖******圖
操場看臺
半室外活動平臺
半室外活動平臺
教學樓的常規教室分布于教學樓的東、南兩側,形成嚴肅有序的對外界面,興趣教室則分別以獨立體塊面向庭院展開。其中美術教室利用弧形屋頂創造均勻穩定的用光環境,音樂和舞蹈教室采用了拱形吊頂以達到良好的聲學效果。
剖面圖
美術教室
舞蹈教室
音樂教室
建筑形態同時又是對熱帶氣候的積極回應:架空以遮風擋雨,柱廊強化自然通風。屋頂活動平臺為學生提供了額外活動空間的同時,減少吸熱并降低室內溫度。
走廊聚會單元草圖
柱廊及走廊聚會單元
走廊聚會單元
學生對校園空間的使用絕非僅僅在于教學場所,更在于那些沒有明確界定功能的空間。從這個意義而言,學校即是一座城市,需要提供除上課外的多重日常體驗。建筑因此尋求空間組織的豐富性,以期包容自發的活動和激發多樣的事件,成為滋潤自由的場所。
柱廊及漫游空間
柱廊及漫游空間
坡道
漫游空間
漫游空間
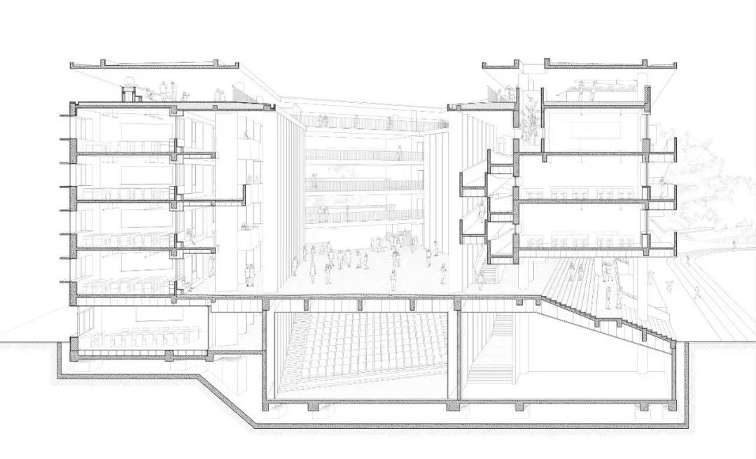
中心庭院形成了具有內聚性的場地,成為集體活動的舞臺;擴大的走廊形成了一系列突出、錯動的半室外陽臺,三兩好友可在此互相張望;曲折多變的坡道與樓梯創造出富于變化的交流機會,聯系豎向各層,青春的身影流連其間。
漫游空間
樓梯
樓梯
此外,考慮到“體驗”與“探索”也是青少年認知成長過程中的重要環節,設計在中心庭院東側的盡端創造了一個充滿趣味的塔形空間,抽象的白色高塔外部被水景環繞,內部以鮮明的色彩、豎向的空間尺度和奇妙的光線共同營造出充滿想象力的體驗。
塔形空間
塔形空間內部
塔形空間內部
結構上,由于寰島特殊的地質條件,項目采用了特殊的隔震結構,教學樓建筑整體坐落于由數個隔震器支撐起的空腔上。發生地震時,隔震層底部的阻尼樁可以通過自身變形有效吸收地震能,使建筑主體結構形變量降至最小,充分保證結構的安全性。
教學樓西入口空間
教學樓西入口空間
項目圖紙
總平面圖
半地下室平面圖
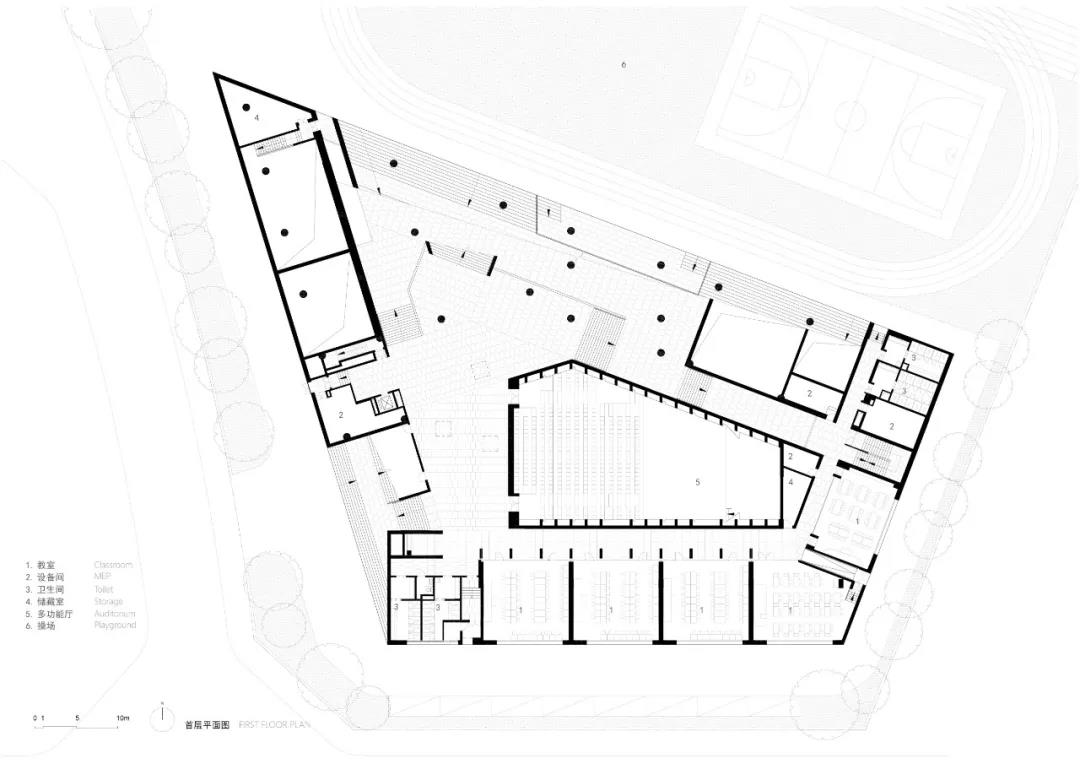
首層平面圖
二層平面圖
標準層平面圖
六層架空層平面圖
剖面圖
剖面圖
1:500整體模型
1:100教學樓模型
1:100教學樓立面模型
1:100教學樓剖面模型
1:100教學樓剖面模型
項目信息
建筑師:跡·建筑事務所(TAO)
地址:海口市,海南省,中國
基地面積:14108平方米
建筑面積:19020平方米
項目年份:2018
主持建筑師:華黎
項目建筑師:沈麗君
設計團隊:李若星、閆亞東、張曉驍、張鋒、Luca Ronchi、郭聰、金龍強、田濤、梁卓嘉、譚笑、劉舟行、曹鵬飛、秦銘煊、盛智棋、魏鳴宇、梁國培、尹謙謙、曲悅、許鈺、高兆佳
.END.
注:本文轉載自建日筑聞,版權歸原作者所有。

