深圳推出中國最酷車庫與公交站
作者:gooood谷德設計網 來源:gooood谷德設計網
當代城市面臨越來越復合型的矛盾和問題。透過業態空間的疊加和互動,市民將獲得更豐富的體驗,從而激發更高的居住價值、商業價值、文化價值、社區價值、景觀價值、品牌價值、時間價值、生態價值。
▼萬科北綠廊總體鳥瞰
項目概況
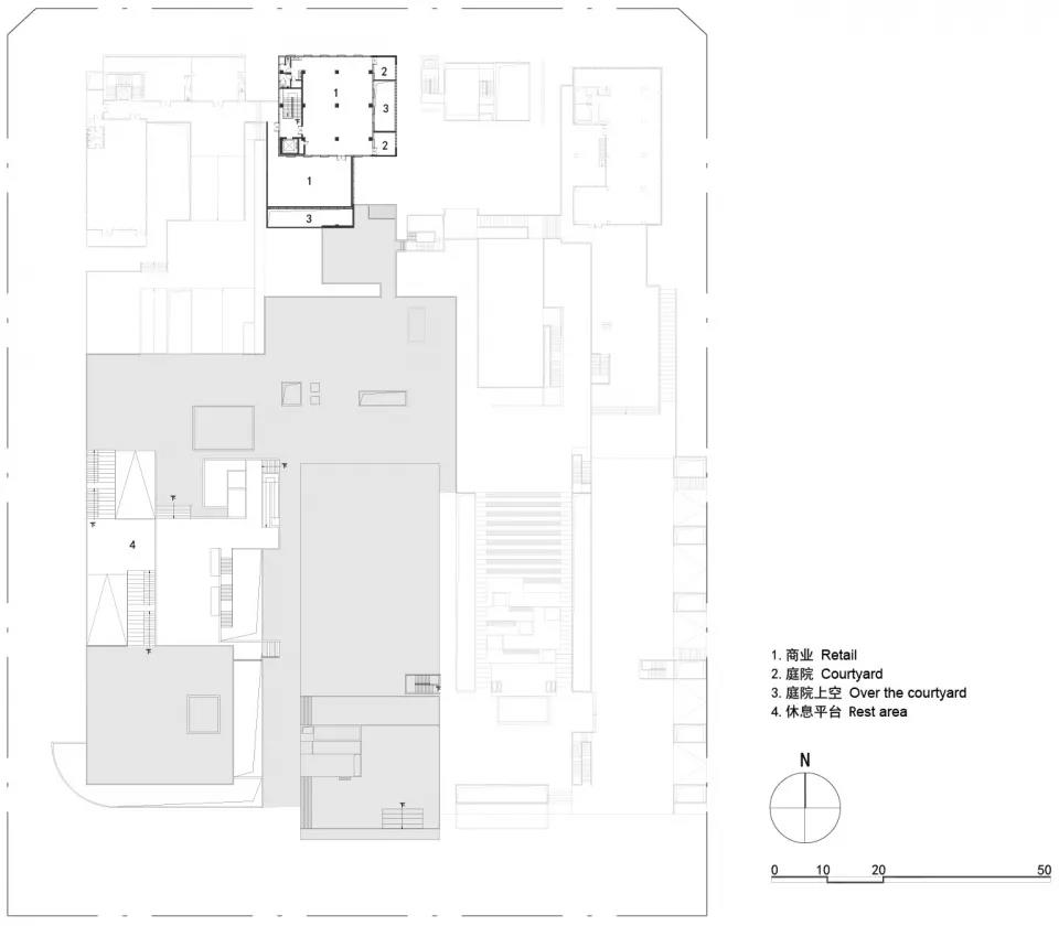
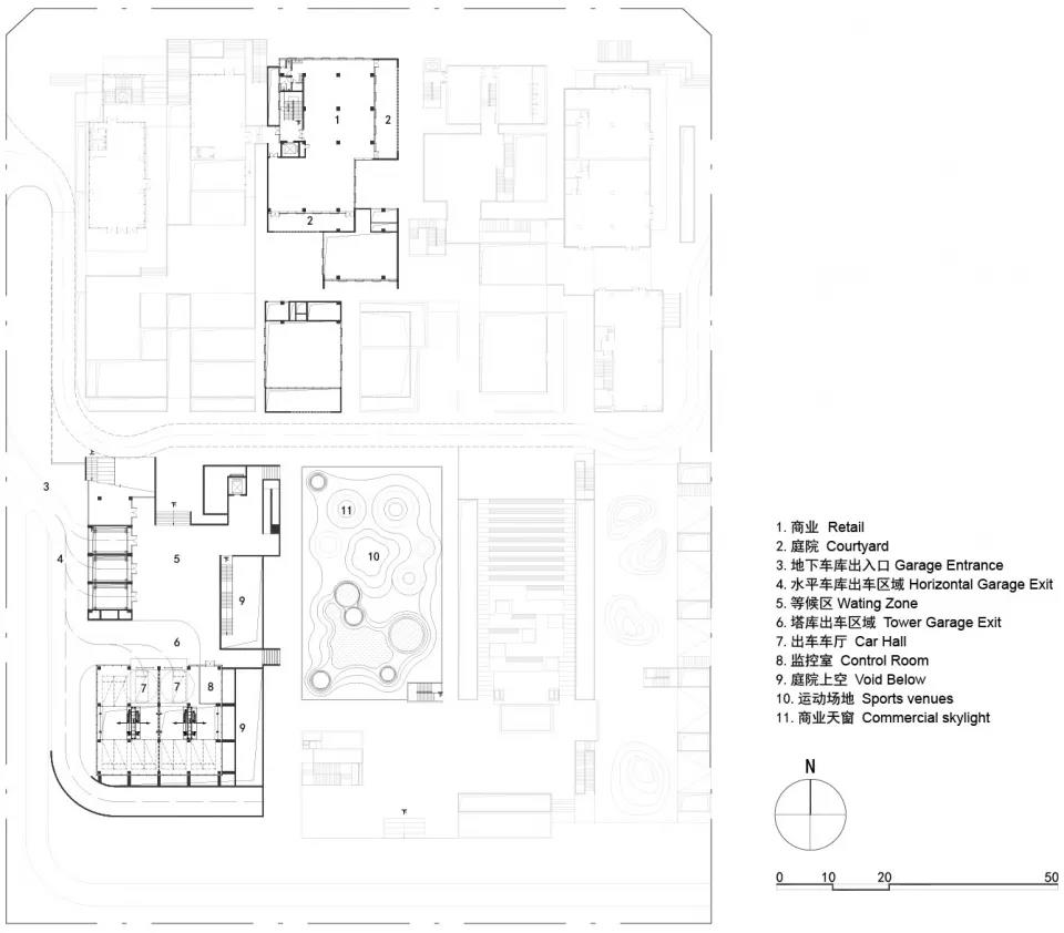
項目地塊位于深圳市南山區,屬于萬科規劃留仙洞綠廊建設項目用地中的05-01/05-02地塊,總用地面積37010.4㎡,總建筑面積41585.13㎡,地上建筑2層,地下建筑2層,建筑高度9.9m,包含了城市公園、公交首末站、商業、辦公等功能。
▼北綠廊鳥瞰
城市設計
留仙洞北綠廊設計公社以集群方式快速形成城市的多樣性。以產業鏈為線索形成有社群黏度的設計公社。在都市實踐的城市設計指引下,來自深圳,上海和北京的多個團隊共同設計了這一項目。用地被劃分為若干密集的小地塊,UV/華藝團隊負責了其中三個地塊,包括辦公、機械式停車庫、公交首末站等靜態交通設施。
▼城市設計概念
▼北綠廊景觀鳥瞰
A1地塊立體智能車庫與公交站場
停車場是城市不可缺少的基礎設施。然而傳統停車場的使用存在很多弊端:找停車位精神緊張,容易擦碰。經過一天的勞碌離開時,又時常忘記車停在哪里,在地下室焦慮地找車。既浪費寶貴的時間,又造成碳排放增加。尤其是傳統機械車庫,使用非常困難。而且留仙洞設計公社的地質條件以花崗巖為主,靜爆形成的地下空間成本非常高。如果僅僅用于停車,將是一種很大的資源浪費。
通過引入智能立體車庫,綜合性地解決了這一矛盾。首先讓300輛車的停放壓縮到一個極小的空間中,騰出大量空間用于辦公和其他使用,地下空間的價值得到最大釋放。其次,車輛環繞綠化天井和自然光庭,直接開進寬敞的機械車位停好,體驗十分舒適。到達目的性強,減少了找車位的時間及碰撞危險。
▼智能停車場
按指紋識別后,車輛被送到垂直和水平兩個立體庫停放,乘客輕松離開,用過早餐,再去上班。下班時,在手機遙控下單,穿過綠草如茵空氣清新的公園。當到達取車點,車輛已經旋轉停好,可以直接開出街道。取車點屋檐下的邊角空間設置等候咖啡廳,節省下寶貴的碎片時間。也成為園區白領和游園居民的輕松小憩場所,為公園帶來活力,讓停車的體驗更加豐滿,價值得以提升。
▼車庫布滿綠植,停車同時可以感受自然
▼地下街巷空間
本車庫不再是隱蔽的后勤設施,而成為一個獨特的亮點。通過簡潔的玻璃幕墻,讓內部車廳的機械部件和車輛的往復運動從外部得以感知,形成自然的展示效果。車庫地面的下沉和隆起, 將公園變形成為立體綠化空間。陽光和空氣引入下沉庭院,坡道緩緩的向上延伸到10米高的觀景臺,并與貫穿綠廊的空中漫步道無縫連接,使車庫融入公園立體景觀。
▼簡潔的玻璃幕墻形成展示效果
沿著空中漫步道來到位于基地遠端的屋頂球場。它是周邊居民和園區年輕人下班后的最佳鍛煉場地。社區健身的人群在這里可以遠眺整個北綠廊。
▼空中漫步道鏈接屋頂球場
運動場覆蓋在6000平米的公交站場上方,避免了露天的站場噪音廢氣對周邊的景觀傷害。在頂蓋的庇護下,乘客方便舒適地進出候車。在站場下方的空間也沒有閑置,與設計公社街道聯通,成為商業展覽設施。
▼公交站
停車,公交站場等靜態交通設施通常被認為是負面影響的空間。它們爭奪使用空間,形成消極的體驗,降低空間價值。通過疊加互動,將負面效應,轉變為正面效應, 提升了綜合價值。
▼公交站立面,設計提升空間的綜合價值
B2地塊創意辦公
三明治式的疊加模式同樣運用在創意辦公區。 公園作為上表面, 而下沉的采光井和街道形成下表面。
▼創意辦公空間結構
辦公空間打破傳統的核心筒模式,由一系列帶私家院落的辦公盒子疊加而成。在它們的縫隙交錯間,形成社交空間與街巷體驗。這些社交空間包括公園、內部院落、景觀平臺、街道騎樓、下沉庭院、和洞穴劇場。公園地形起伏,由一系列開洞將光線引入地下,這些洞口形狀起伏各異,形成上下兩個界面的有趣對話。
▼辦公盒子疊加形成辦公空間
洞穴劇場是由辦公體塊搭接而成的核心空間, 周邊設置各個環繞的視點,自然地吸引了員工的聚集活動。私家庭院和陽臺種植郁郁蔥蔥,與周邊的空間形成戲劇性的視線交流。細高而狹窄的通道既有冷巷的功能,又形成城中村式的親切感。這些空間大小錯落,四通八達, 內外交融,和北綠廊社區的空間肌理自然融合,形成豐富的游走體驗,充滿了轉過街角的偶遇。為入住的創意設計公司群落提供富有想象力的辦公環境。
▼辦公空間中的私家花園
▼冷巷帶給人新鮮的體驗
目前入駐公司包括設計,高科技,咖啡,展廳。疊加模式為入駐企業帶來各個層面上的價值增加:由于能直接接觸陽光,空氣,綠化公園,辦公人群在這里可以找到心理上的愉悅感。由于能產生聚集的活動,人群之間有視線和偶遇的接觸, 能夠獲得社交層面上的延展性。更因為這樣的空間吸引了創意與設計類的企業入駐,則有可能激發出業務上的合作。
▼辦公樓間的街巷空間
▼階梯公共空間,供人們舉辦活動、相互交流
項目圖紙
▼公交首末站軸測圖
▼創意辦公軸測圖
▼一層平面圖
▼二層平面
▼公交首末站立面圖
▼剖面圖
項目名稱:留仙洞萬科云設計公社A2、B1、公交場站
設計方:UV獨特視野建筑設計有限公司/香港華藝設計顧問(深圳)有限公司
項目設計&完成年份:2014年7月-2016年9月
主持建筑師:李甫
A2+B1:范疇,李鑫,林一鳴,王真
公交場站:林明信,申杰”
項目地址:深圳市南山區留仙洞
.END.
注:本文轉載自gooood谷德設計網,版權歸原作者所有。

