上海楊浦濱江公共空間示范段|2019WAF年度景觀大獎
作者:建日筑聞 來源:建日筑聞
清晨西側入口處往來的市民
夏日傍晚納涼的周邊居民
還江于民——黃浦江兩岸45公里貫通工程實現上海最長的公共開放空間
楊浦濱江示范段是楊浦濱江公共空間的啟動段,為楊浦濱江公共空間的建設乃至整個45公里黃浦江兩岸貫通工程都起了重要的示范作用,提供了有效的借鑒意義。
區位圖
總圖
由于密集的廠區、單位割據江岸,建筑師作為多年生活在該區域的市民中的一員,從來不曾在楊浦區段接近濱水區域。“臨江不見江”是這一區域近百年來的城市空間難題。第一次經過重重障礙步入場地,站在老碼頭上,摸著滿是印痕的栓錨樁,眺望遠處陸家嘴金融中心。我們意識到這將是城市空間的一次重要的蛻變,也將是這個城市百年工業文化歷程鮮活呈現的重大契機。
改造前現狀圖
清晨的液鋁碼頭
同水廠建筑相結合的坡道
水廠棧橋和保留的保留系纜墩
既存工業環境的挖掘和延續
將老碼頭上遺留的工業構筑物、刮痕、肌理作為最真實,最生動,最敏感的映射的記憶進行保留,也就是我們所強調的記憶的空間化和物質化。
富于工業特征的楊浦濱江公共空間
復合功能的鋼廊架
鋼索坡道廊架和奔跑的小孩
傾斜廊道詳圖
傾斜廊道施工圖
站在老碼頭上,倚靠著曾經的拴船樁,遙望黃浦江對岸陸家嘴CBD的場景,城市文化在這樣的時間厚度中得以延續。
廣場上用栓船樁布置形成的矩陣
原生態的景觀設計理念
采用有限介入、低沖擊開發的策略,在尊重原有廠區空間基礎和原生形態的基礎上進行生態修復改造。在防汛墻后腹地較大區域原本是一片低洼積水區,水生植物叢生,我們保留了原本的地貌狀態,形成可以匯集雨水的低洼濕地。大雨時能起到調蓄降水、滯緩雨水排入市政管網的作用。
剖面及節點圖
另外通過設置水泵和灌溉系統,濕地中匯集的水還可用于整個景觀場地的澆灌之用。而植物配植以原生草本植物和耐水喬木池杉為主,同時配以輕介入的鋼結構景觀構筑物,形成別具原生野趣和工業特色的景觀環境。
濕地通道方式結構示意圖
雨水花園內的鋼結構廊橋和涼亭
雨水濕地鋼結構棧橋和歷史建筑
蘆葦叢的自然野趣
基礎設施的景觀化利用
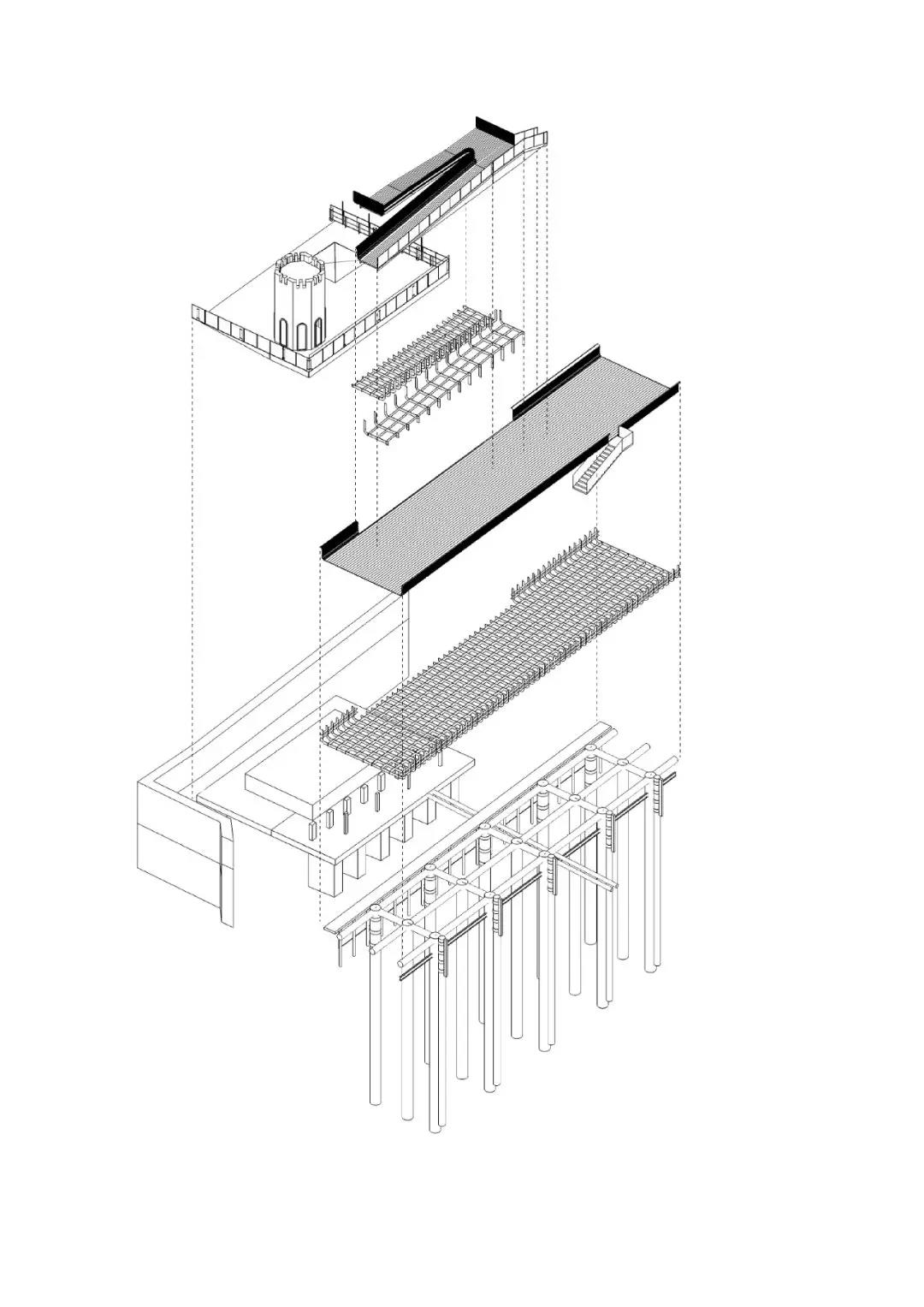
貼近黃浦江的楊樹浦水廠為公共空間的貫通提出了挑戰也提供了機會。利用水中基礎設施的結構作為棧橋的結構基礎,實現了斷點的貫通。同時將正在工作的基礎設施納入景觀設計的范疇,讓人們可以欣賞到原來難得一見的角度和景象,也為景觀設計和公共活動增添新的內涵。
1、2號碼頭間搭建的鋼棧橋
項目圖紙
歷史區位圖
生態設計
人行橋通過水廠的結構示意圖
項目信息
建筑師:同濟.原作設計工作室
項目詳細地址:黃浦江岸通北路至丹東路段,楊浦區,上海,中國
項目年份:2016
建筑面積:38000㎡
主創建筑師: 章明、張姿
設計團隊:秦曙、王緒男、李雪峰、丁闊
.END.
注:本文轉載自建日筑聞,版權歸原作者所有。

