四川彭州小石村文化大院及整體規劃
作者:建日筑聞 來源:建日筑聞
文化大院與小石村中的新居民樓
在2017年,我們應村書記的邀請對四川彭州小石村進行了一系列的建筑設計與整體規劃。如同其他龍門山區震后重建的村落一樣,小石村面臨著身份重塑的困境。我們看到的是面貌相似的居民點、簡陋的沿街磚混建筑、以及空心化的農村社區。
小石村鳥瞰
二層平臺
四川的偏陰氣候,使大多數人喜愛在開敞的室外活動;全年的降水量很大,人們又習慣性地需要遮蔽。當地人和公共環境這種有韌性的相處方式,形成了傳統的坡屋頂和大量開敞檐廊的建筑形式,也形成了“共同生活”的場所基礎。
東面夜景
沿街面主入口
而現代的快速建筑代替了傳統空間形式的同時,也破壞了藉由傳統空間而形成的生活習慣,卻并未回答:未來的社區應該具有怎樣的空間品質?應該如何構建一種共同生活的空間協議?
沿街面低矮的圍墻
西面二層室外平臺
通往文化大院的石階
由此引發了我們最本能的想法:營造一個“包容一切活動的瓦屋頂”,籍此去連接詩性的傳統與互聯的未來社區。既營造了“同在屋檐下”的一種身份認同,又讓人們走出來、讓行為發生、從空間層面進行軟性的公共治理,從而逐漸孵化出未來的鄉村社區模型。
東西立面圖
分析圖
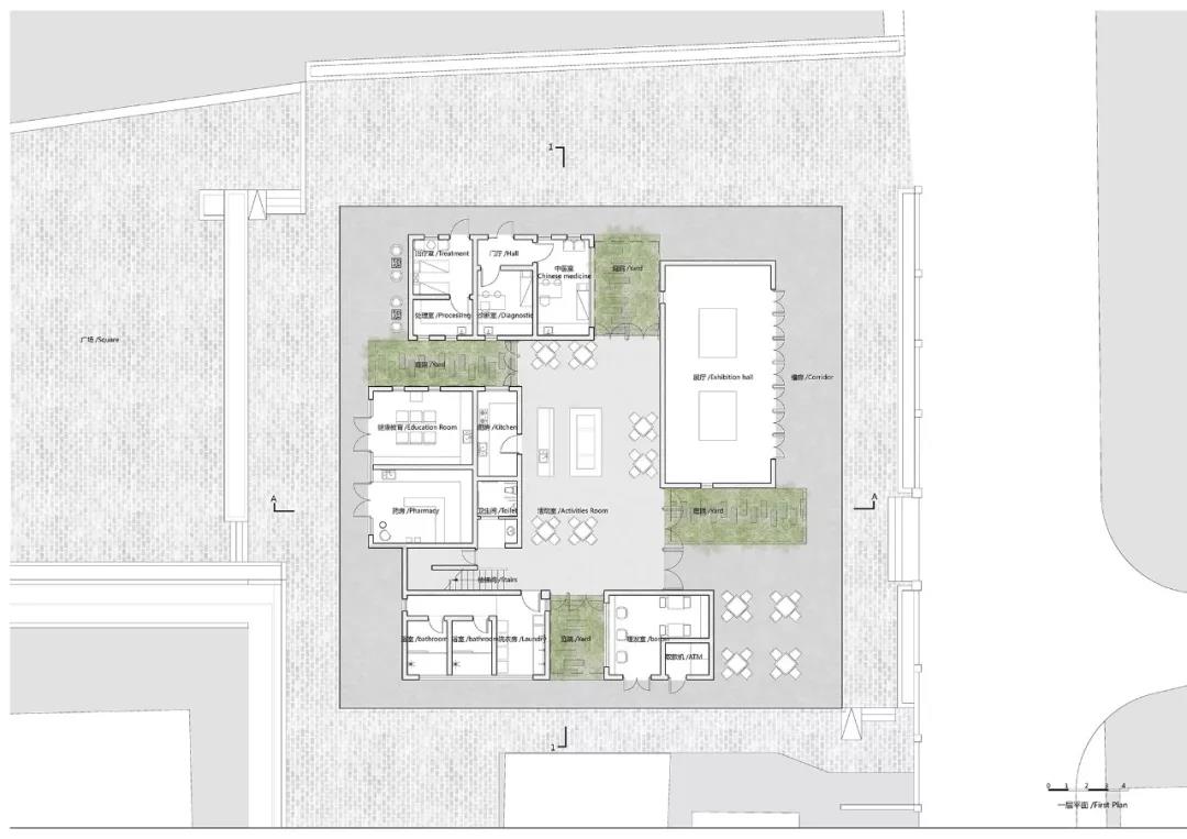
小石村文化大院項目是我們的第一個建筑實驗。位于小石村的中心,文化大院包含了日間照料中心、鄉村衛生站、鄉村夜校、健身房、忠孝文化展廳等多重公共功能,正是一個可以塑造理想的公共空間模式的開端。
庭院里修茂的竹子穿破屋頂
檐廊下帶遮蔽的戶外空間
文化大院的設計用一個占滿用地范圍的四坡瓦屋頂來統領結構、材料、細節和功能的發展。我們在屋頂的四坡分別打開四處天井,和一層分居四處的輔助空間相互呼應,為屋檐下的入口營造了看似無意識但十分流暢的進入方式;修茂的竹子從天井中生長出來,為一層核心空間和二層各房間提供景觀和與自然的親密度。
夏天附近居民自然地聚集在屋檐下乘涼
東面主入口
為實現屋檐處8米的懸挑,采用了混凝土梁挑鋼梁的形式;屋面下再用處理過的細竹吊頂,提供一種溫暖的尺度和微妙的光線折射。與此相對應的,建筑的外墻采用了黑石子水刷石的處理,地面采用素混凝土打磨,目的是將光線控制在一個明凈柔和的狀態,從而使屋頂的尺度與人的關系更加明確。墻面水磨石的尺度和分格,暗示了竹節的紋樣,與屋頂和天井景觀構成了自然、人工、抽象,三種竹意向的對話。
位于一層中心的活動室
從2018年建筑建成起,我們對“同在屋檐下”的公共空間模式持續觀察了一年,這里常會成為村民自發活動的中心區,也逐漸成為小石村對外的形象標志物。在我們對村社區未來的規劃里,將以此為中心引發一系列互聯互通的、結合生產與生活方式的屋頂空間,最終形成我們理想的鄉村社區空間模型。
室內的人工細竹吊頂
沿街展廳連續平開的木門
項目圖紙
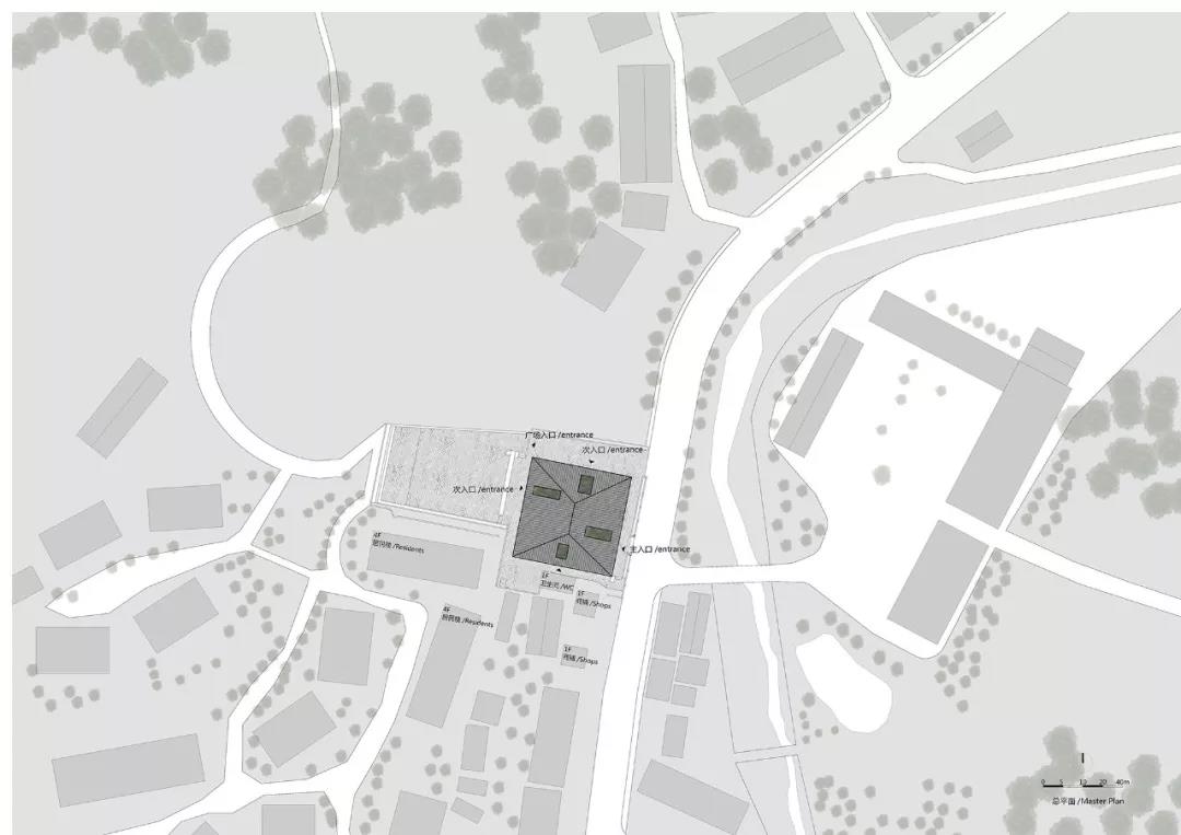
項目區位
場地平面圖
首層平面圖
二層平面圖
南北立面圖
剖面圖
項目信息
建筑師:時地建筑工作室
地址:小石村,彭州市,四川省,中國
用地面積:625㎡
建筑面積:650㎡
項目年份:2018
項目造價:93萬
主持建筑師:李燁
項目建筑師:李燁
設計團隊:張苗、王智、岳野、曾憲明、何茜(實習)
.END.
注:本文轉載自建日筑聞,版權歸原作者所有。

