南京鼓樓醫院,將醫院花園化
作者:gooood谷德設計網 來源:gooood谷德設計網
鼓樓醫院南擴項目位于南京市中心地區,基地面積為37,900㎡,總建筑面積達230,000㎡,是集住院,門診,急診,醫技,學術交流等的綜合性醫院擴建項目。2003年開始設計,2012年竣工運營。
▼建筑外觀
靈感源于中國傳統文化中對醫院一詞的解釋。西方語言中源自拉丁文的hospital一詞最初意思是召集客人,而在在中國傳統文化中,“醫院”就是“醫療的院落”。花園是外部世界與家的界限,走進了花園也就隔絕了外部世界的煩擾,身心便得以放松。將醫院花園化,不僅具有感官上的美感,更重要的是帶給人心靈的撫慰。
▼醫院入口路徑
從六個大庭院,到三十余個采光井,再到每扇窗前的一抹綠色,花園滲透到建筑的每個細部。設計者將傳統意義上的花園解構為細小的單位,編織成建筑的表皮肌理,整個系統立體而豐滿,使醫院成為了花園的載體。而花園則無處不在并觸手可及。
▼醫院全景
▼花園軸線
▼鼓樓醫院北庭院
▼將醫院花園化
▼立面夜景
醫院是現世和彼世間的連接點,是生命起始與終結之所。鼓樓醫院是1892年由傳教士建立的教會醫院,設計者試圖回歸這個傳統,簡潔純凈的設計讓醫院如教堂一般,成為與信仰溝通的場所。大量庭院和日光井的采用以及層疊通透的花園立面保障了充足的自然光照,給人寧靜安詳的撫愛,處處充盈著教堂般的詩意。
▼層疊通透的花園立面
▼室內水景
▼無處不在的日光井
▼教堂般的住院部內庭
▼病房窗景里的南京大學
▼北庭院蘆葦塘中的靜思
乳白色的磨砂玻璃,則在解決室內采光問題的同時將陽光過濾得更為柔和。針對南京地區夏季悶熱的氣候特點,立面設置側向的通風,有效帶走表皮積熱,大幅降低了能耗,成為名副其實的綠色節能醫院。
▼磨砂玻璃帶來柔和光線
▼室內立面
▼花園立面外觀
模組化設計即合理分配了內部醫療功能,又方便了醫院在運營中的調整和成長。由模組化設計所帶來的批量標準采購使得結算造價最終控制在5300RMB/㎡,成為當代最節省造價的醫院典范。
▼醫院內部空間
▼會議中心
▼走廊
▼病房
鼓樓醫院是鬧市中的醫療之島,也是向每個市民開放的治療花園。
▼中山路看鼓樓醫院的花園立面
項目圖紙
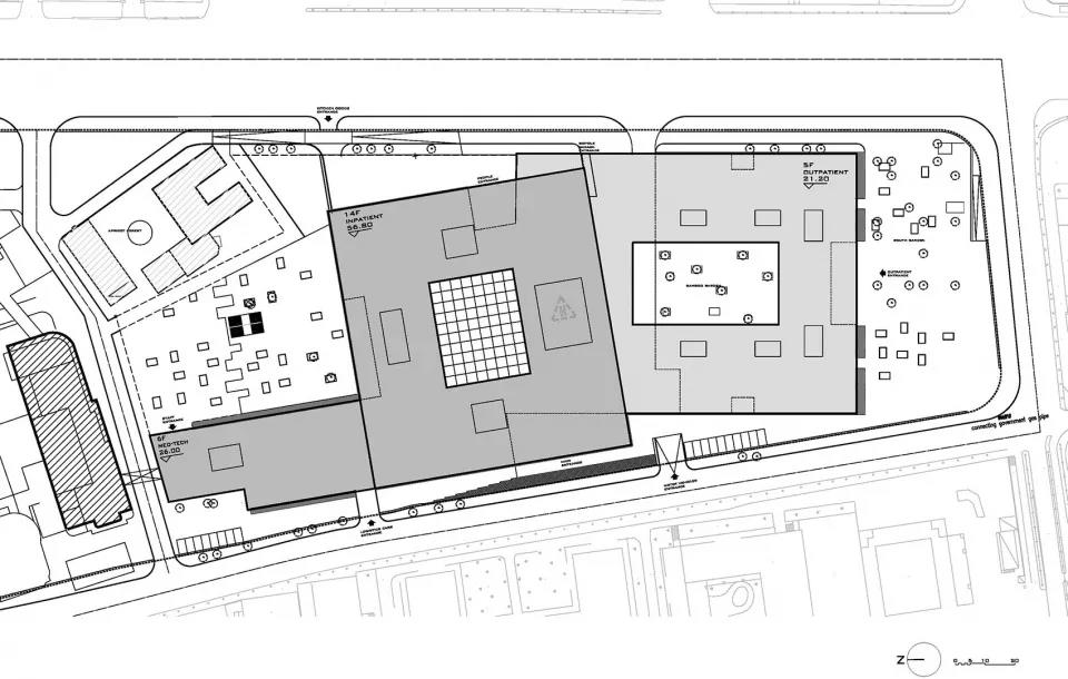
▼場地平面圖
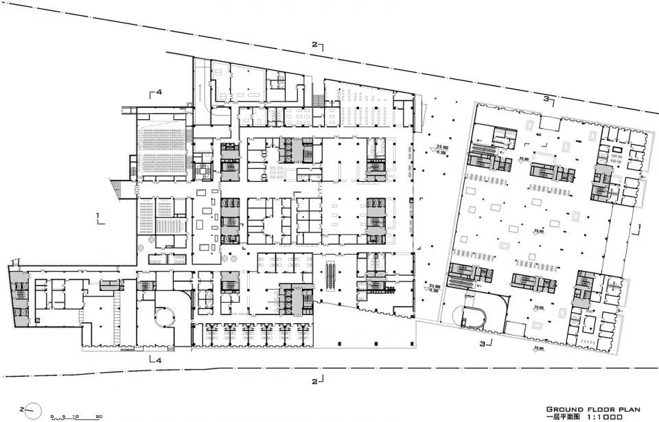
▼一層平面圖
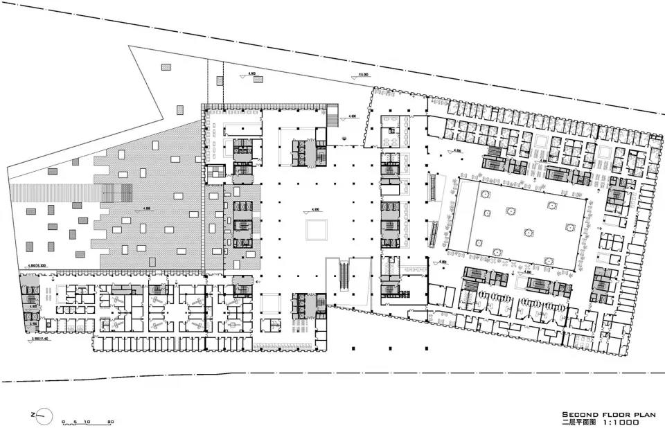
▼二層平面圖
▼三層平面圖
▼剖面圖
▼細部
項目名稱:南京鼓樓醫院
項目設計 & 完成年份 2008
設計完成于2008,項目于2012年建成并投入使用
主創及設計團隊:Vincent Zhangmao ZHANG張萬桑,Daniel Pauli,馬戎,Anja Schlemmer,Rolf Demmler, Dirk Weiblen, Bjorn Anderson,Dagma Nicker, 崔曉康, 冒鈺
項目地址:中國南京市中山路321號
建筑面積:230,000 m2
.END.
注:本文轉載自gooood谷德設計網,版權歸原作者所有。

